112㎡现代简约二居
今朝装饰西罗园店
2022-01-26
循着光的方向,一片朗阔,品味愜意生活,人生下半场的理想提案,在设计师的蓝图中,一一实现。两人步调的主场景,佐日光、木纹质理与优雅石材,砌筑沉稳色调的细腻质感,串接相知相伴的退休新旅程。

个案基本资料
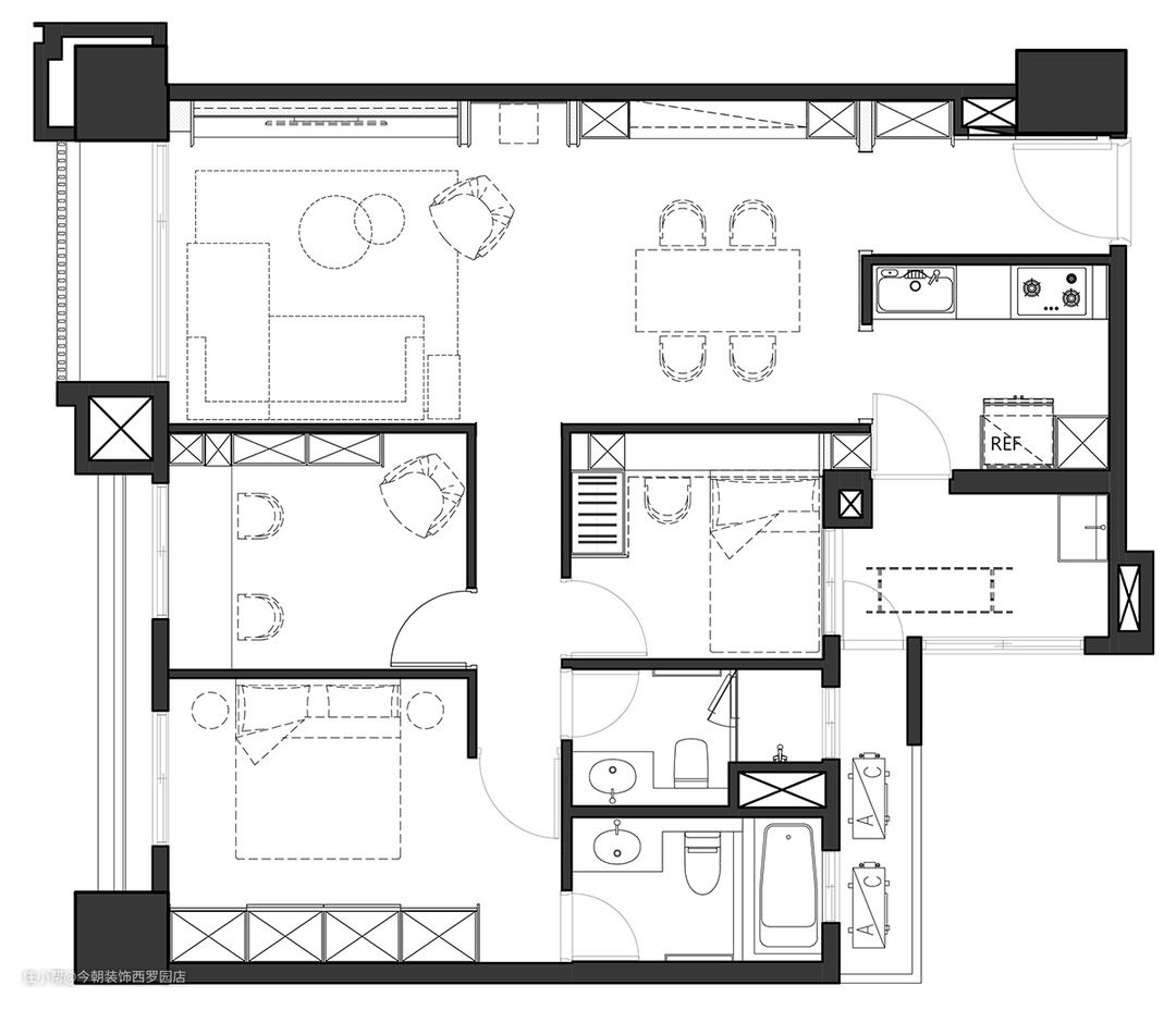
电梯大楼/面积112平米/格局3室2卫/居住人数2个大人

•增加收纳量
•客厅有适合摆放业主喜爱的书的位置
•整体呈现渐层明亮感

在不变动格局的情况下,设计师巧妙将公领域分为三大区块,透过光线明暗度调节区分场域属性,赋予层次感;融入框景概念打造轴线式贯穿连接,呼应屋主生活起居动线,两相合一,兼具机能与美感,简洁线面比例协调,勾勒舒心恬适居家氛围。

设计师再设计当面遇到的难题:主人希望融入收藏的一本书,且不要拘泥于传统形式或过于突兀,思虑周详的设计师将此需求以现代艺廊手法处理,高雅大器,秀而不俗,藉由质材、色系与立面切割等方式,营造符合屋主企盼的寧静庄重感,并同时具有新颖时尚调性。

设计主要思路和重点:光,是本案的灵魂要角,由暗转明的惊喜感,创造明朗清澈的跃动生命力,光与空间的亲密对话,梳理映照对于居住嚮往的远景。运用连贯性的选材逻辑,弱化向度封闭性,加乘天花结合光带,渲染出明亮灵动气息,任由光影穿梭之际,写下动人叙事情节。

全室光照最充足区域,挑选亮面浅色系石纹砖作为电视墙,底座沿用餐厅区的同系列大理石,一气呵成高尚尊爵感,深色木皮框出一幅耐看家景,由白色木百叶漫进的光,润透净澈,敞亮家之境地。

浅灰沙发依靠灰度壁纸墙面,如云雾肌理表面的茶几,与一袭毛绒地毯相佐,公区域互动关係增加柔美感,佇立于此,轻抚映落的光,刻划日常絮语及家宅轮廓。

天花板
方形层面平整封板并嵌入错层排列光带,交织轻盈光氛语汇,LED条灯的几何线形,方向相同,由玄关望去颇有几分引导作用,揉塑简约有型的天花视感,活泼轻巧,平衡公共范围的内敛风格。


玄关设计:
援引能反映光束的灰镜,提升狭长走道明亮度,延展空间尺度,镜面以线板细緻装饰点缀,暗藏微微法式情调,另一侧则是顶天悬柜与暖白光的不落地立柜,藏纳鞋履,以整洁清爽之姿,落下第一道端景。


餐厅设计:
散发温煦质朴的胡桃木地板,内敛雅致的纹理,彰显居者气质品味,餐叙区以银狐白与原木双拼的长方桌为主视觉,搭佐抹茶绿长凳,混搭出既成熟又清新的况味。

立面镶嵌餐酒吧台,铺陈大理石、条状灯带,以及皮革纹系统柜组合,强调灯光反射与柜体呼应,尽显高贵典雅,便于摆放咖啡机与香醇红酒,朋友聚会时小酌一番的仪式感,酿出开怀微醺小日子。

动线规划:
由深邃走向光明,从窄仄步入宽敞,进阶式感受光影魅力,有如拾光而行,自在悠游解构疆界的公私范畴,与整体环境契合的简单佛堂设置,则是满足屋主的心灵寄託。

建材挑选:
大理石、灰镜、烤漆、皮革纹系统柜、超耐磨木地板、壁纸、石纹砖、LED 条灯、布纹系统板、木百叶

书房设计:
临窗处规划配有抽屉的 L 型书桌,与布纹系统板架设的书柜,拥有足够储纳量,柜下巧置一横镜面,借助天然光源反照释放空间,一抹植栽由空柜垂坠而下,绿意线条勾勒自然愜意,疗癒身心,静享轻鬆静謐阅读时光。

主卧设计:
太空灰光泽感壁纸为主要妆点素材,为卧室挹注出色压纹工艺风,搭载金属球造型灯饰,显现俐落姿态,床头柜同样走灰色系,使整体韵调更具一致性,百叶柜门有画龙点睛之效,淡淡描绘出轻美式风范。

色彩计画:
灰系调匀木质元素,金属感与灯带运用提高明亮度,多面向光感流窜於室,沉稳中伏藏时尚新潮味,而低彩度布纹及皮革纹板材,增添温朴润感,温暖流动於寓所之中,整个房间看起来休闲又舒心。