如何恰到好处的设计打造出1000平别墅的高级感(一)
北京境舍设计
2022-04-08
设 计 师:顾吉舒
项目地址:天津富力津门湖橘墅花园
项目面积:1000
项目风格:现代
项目类型:独栋别墅
项目户型:四室六厅一厨六卫
本案例中,业主年纪稍长,驰骋商海数年,阅历丰富,不喜繁复的造型和不必要的装饰,要求居家环境简洁舒适、环保健康。北京专业别墅设计师顾吉舒在与业主沟通过后,提出现代简约的别墅设计风格,融入一些中式元素与之碰撞,展现的是业主内心世界大道至简的洒脱精神。

别墅为台地式建筑,别墅设计师利用台高地面原有高度与南侧花园下挖的高度,把地下室变成了有光有景的花园层。用阶梯、造景的方式缓和落差,无缝连接前院,为空间带来丰富的享受和无限的可能性。

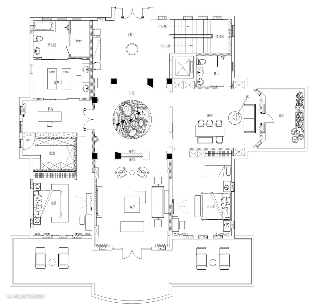
一层平面图

沧海先迎日,银河倒列星。海蓝枝型吊灯宛若天上星河,整体白色背景下,运用跳跃的蓝绿色,让空间显得更为干净。大理石柱区分了中庭位置的山石景观,塑造空间层次感。

楼梯墙设计成贯穿三层空间的绿植墙,鲜活的植物改善了过于冷静的现代氛围,同时起到净化空气的作用。镂空的楼梯,透出轻盈感,尽可能展现绿植的活力。

中庭是整栋别墅中没有直接采光的部分,设计师在顶部模仿天光,打造出天光云幕,山石耸立的中庭美景

中庭右侧茶室,搭配中式韵味的柜体和推拉门,所谓大相无形,以无形的设计理念完成传统东方意境和现代美学思想的结合,将无形幻化为有形。

中庭左侧的书房,用黛山设计的推拉门做隔断,隔而通透,圆铜灯饰缓和空间线条的锐利感,视线所达之处赏心悦目。

客厅以“山水云石”立意,大道至简,天人合一。正如水墨画上的笔触与留白,背靠前年山脉,享云山碧水,山水云间的意境,正是现代都市人的心之向往。

客厅挑空,让会客区域空间更为高阔,所谓天高水远,讲究的就是一份开阔的胸襟,彰显主人的好客之道。

老人房,在处理门宽等尺寸细节之处,饱含对长辈的尊敬与体贴,方便长辈的行动,利于舒适且便捷的日常居住生活

一层客卧多个落地窗,采光绝佳,不失幽静之感莫兰迪色系的烟蓝色软装,加深了静谧感,让在此休息的人得到充分放松