户型改造分享:魔都常见的手枪房一
大仟国际设计
2022-02-20

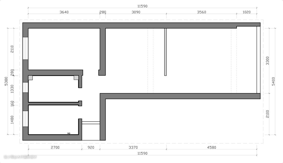
上海最常见的户型,大家因其外形简称“手枪房”,某种程度上,手枪房不仅是一个普通的住宅,更多的承载了一代人在大城市奋斗的梦想。
在家装设计圈流传着一个笑话:没做过手枪房改造的设计师,都不好意思说自己来过上海。
本案中的户型,厨卫相对一般的手枪房来说算是偏大了,即便如此,冰箱放进去后依然会很局促。另,两个卧室及客餐厅的联动也是整个案例中的重点。

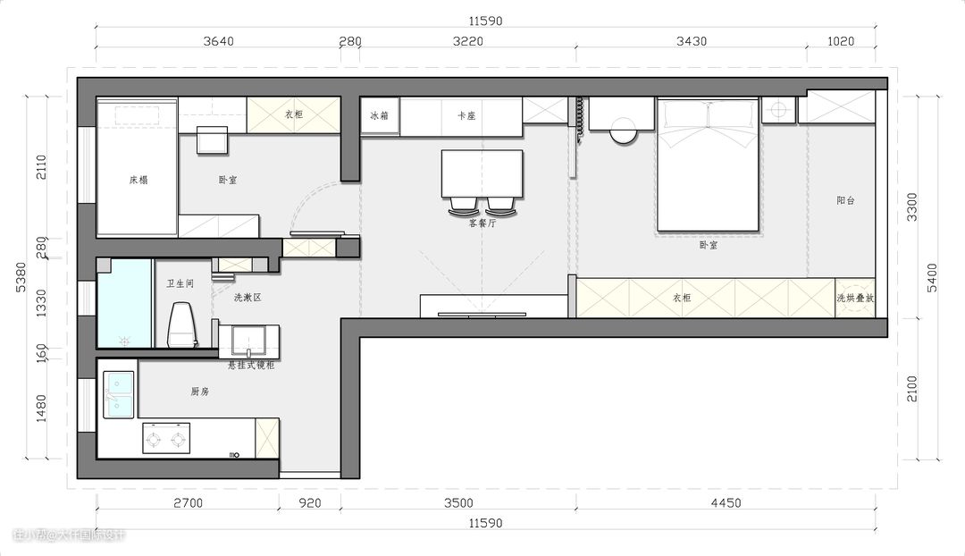
平面方案一
将次卧室原门洞改为收纳柜,从另一侧开门,实现南北通透,客餐厅一体化,留出足够的收纳及活动空间。
主卧及客餐厅隔断使用三联动移门,保证私密性的同时亦能有效扩大空间。

平面方案二
次卧室原门洞位置不变,另一侧墙体开个窗洞,借光至客餐厅。
餐桌与沙发区域完全独立,餐桌使用拉伸式。