95平米日式风格装修效果图,原木自然尽显
兰州东易日盛
2022-03-02
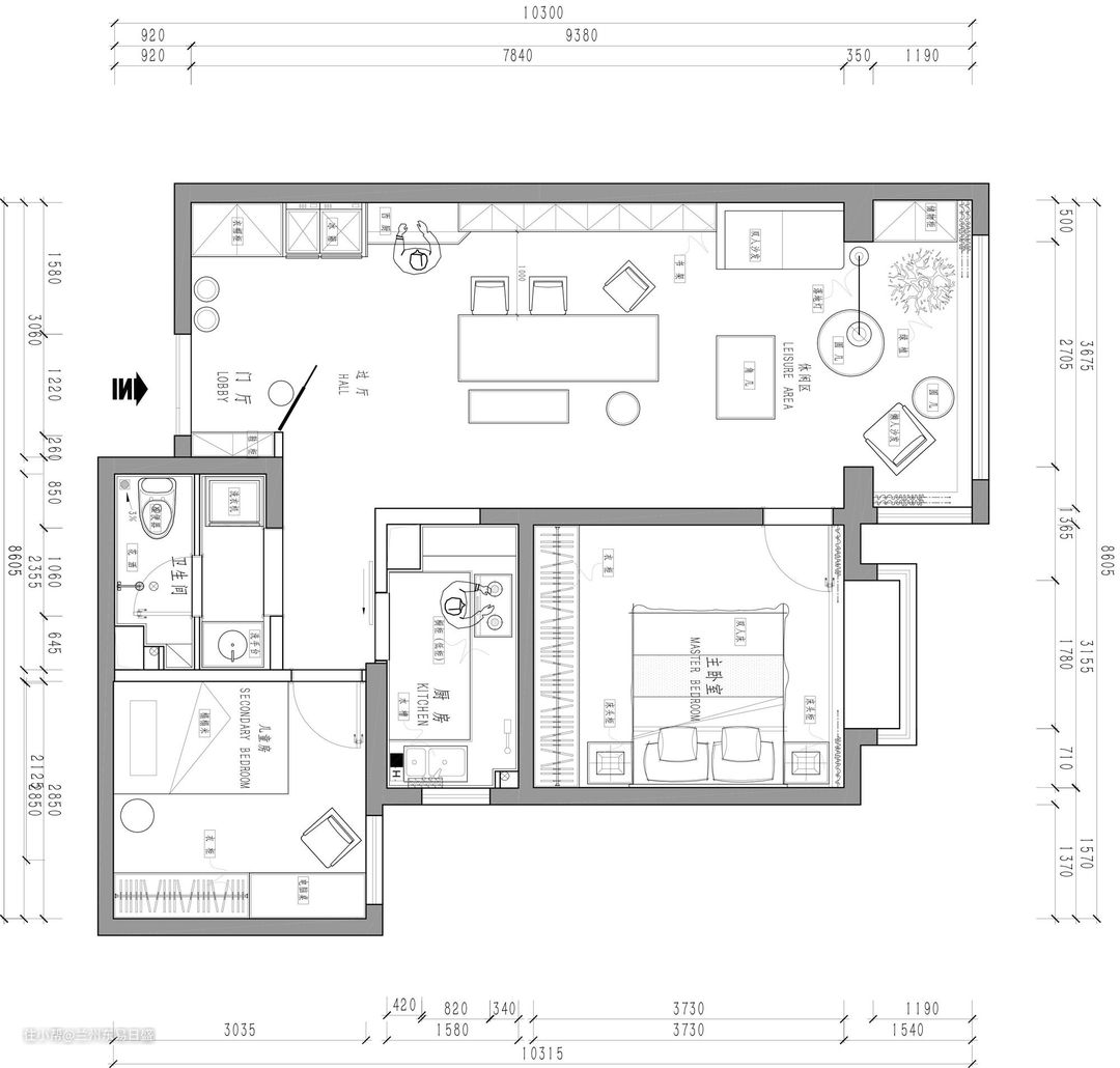
装修楼盘:广电中心家属院
装修面积:95平米
装修风格:日式
装修户型:两室两厅一卫

广电中心家属院装修户型解析:广电中心家属院装修户型是两室两厅一卫,家装设计师与业主详细的交流沟通以后,将住宅空间定义为日式风格进行装修。




日系原木风格主要就是针对常见的几何图形进行原木装饰;现代简约风格是较为简单和舒适的主调,而日式装修风格也给人非常舒适、休闲的生活体验。



点击下方免费咨询装修报价!
兰州东易日盛
2022-03-02
装修楼盘:广电中心家属院
装修面积:95平米
装修风格:日式
装修户型:两室两厅一卫

广电中心家属院装修户型解析:广电中心家属院装修户型是两室两厅一卫,家装设计师与业主详细的交流沟通以后,将住宅空间定义为日式风格进行装修。




日系原木风格主要就是针对常见的几何图形进行原木装饰;现代简约风格是较为简单和舒适的主调,而日式装修风格也给人非常舒适、休闲的生活体验。



点击下方免费咨询装修报价!