180m²现代|跃层原来还可以这样装!
改哥换新旧房改造
2022-03-08
本案的居住者是一对年轻的夫妻以及还未出生的宝宝,夫妻俩都从事服务行业,平时工作比较忙,没有过多的时间装修房屋,所以装修方式选择了全包。由于是装修小白,他们一开始选择装修风格时还不是很确定,在了解业主的生活习惯与喜好之后,设计师给出现代风的建议。
项目地址/成都-融创·玖阙府
设计风格/现代风
项目面积+项目造价/180㎡+25W
设计师/刘玲
一楼设计解析/Design analysis


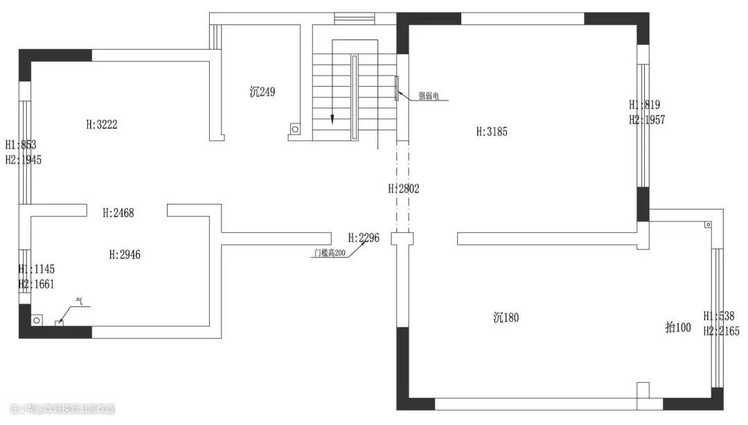
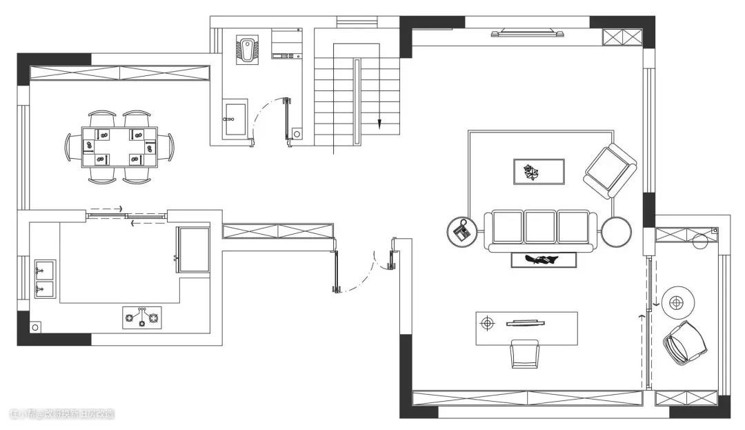
原始户型图VS平面设计图
设计亮点
①本案是一套跃层户型,一楼主要规划客餐厨、办公区以及卫生间。
②将两个空间打通,提升室内采光通风效果,也扩大了客厅面积。
③为了方便使用,将卫生间规划为“洗衣房+卫生间”形式。
客厅/Living room

设计能让居住者感受到的,不仅是视觉上的美感还有精神上的慰藉。装出一个高颜值又高级的家,是面对生活的一种全新态度。

大理石瓷砖+实木格栅+展示柜组合而成电视背景墙,将颜值与实用发挥到极致;展示柜内安装灯带,提升整体的高级氛围感;底部将石材地台做电视柜使用,方便摆放一些小饰品提升生活品质。


用沙发将客厅与办公区做简单分隔,各自独立功能区又不会阻碍与客厅之间的流动,改善室内采光通风,也方便照看孩子。整面的书柜收纳,完善空间收纳美学的同时增加了客厅的收纳力。

相对于那些镜花水月般的繁复,理性的现代风实在是一股清流,没有过多的装饰,将空间布局与使用功能完美结合,营造出高级的舒适的家居氛围。


餐厅/Dining room


路过玄关到达餐厅,餐厅与厨房相邻。岩板餐桌与皮质餐椅搭配,桌上再摆上些花草,生活仪式感瞬间就up了起来~顶天立地式的餐边柜,半开放式设计,从细节处提升整体精致感。
厨房/Kitchen

厨房利用长虹玻璃移门做半开放式设计,不影响整体空间的采光;厨房面积足够,再结合业主使用习惯设计“U”型操作台,方便使用;漆光材质的柜面有反射光线的作用,让整个厨房看起来通透明亮,舒适感满满!

由冬入春,四季变化,不过是为了赴一场人间烟火。
楼梯/Stairs


二楼设计解析/Design analysis


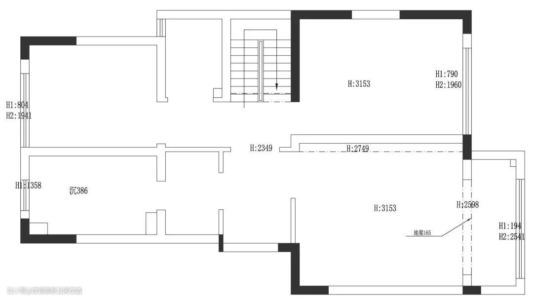
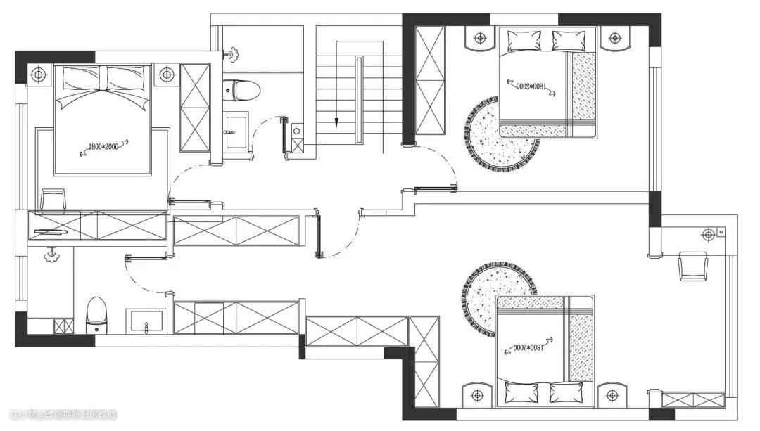
原始户型图VS平面设计图
设计亮点
①二楼主要规划业主居所,满足功能区的完善。
②将主卧规划成“卧室+衣帽间+卫生间”的形式,将多余的墙体拆除,通过借用卫生间的空间扩大衣帽间面积,并将阳台打通,扩大卧室面积,规划梳妆台功能,满足女业主对房屋的小梦想。
主卧/Master bedroom

主卧延续客厅风格,用橙色做点缀色,给空间增添了些许活力;用黑色石膏线做设计处理,提升空间层次感;床头吊灯局部照明,柔和的光线保护眼睛的同时,给居室营造出温馨的氛围。


利用墙体角度设计衣柜,在卧室与主卫之间的过道上,墙体内嵌衣柜,设计出一个长条型衣帽间,尽可能地将空间布局与功能性完美结合,美与实用杂糅在空间里,让居者可以享受到生活的静谧美好。

在阳台的角落给女业主单独规划出梳妆台功能,自带补光效果的镜子,让每一次梳妆都赏心悦目。

远处的风景,窗外的花鸟,室内的精致美好,共同组成多维度的生活,在快节奏的城市里,这里的生活理想又自由。
主卫/Main bathroom

黑白灰的配色延续整体空间的风格,将空间做干湿分区,还能延长器材的使用寿命。左右玻璃移门,有效避免开关门困难的情况。
次卧/Guest bedroom


次卧延续主卧的风格,简单又不失精致,方便父母偶尔来小住或者朋友偶尔留宿使用。
儿童房/Children room


儿童房充满浪漫色彩,粉粉嫩嫩的兔耳床,奠定温柔的氛围;兔子皮质床搭配圆润小床头柜,整体可可爱爱的;功能上,学习区、书柜齐全,满足孩子的学习要求与基本功能。
卫生间/Bathroom

没有大拆大改,精准设计,打磨细节,完善全屋舒适度;合理选择材质,风格匹配,提升整体颜值;从整体规划到细节拆改,一切以人为先。
业主在选择全包的装修方式时,心里是很犹豫的,因为网上对于全包的评论大多数是负面的,怕翻车。但是设计师的真诚态度与专业水平给了业主一颗定心丸,并且随着成果的一点点落地,他们悬着的心总算落了地。业主表示很满意此次的装修成果,还热心的将我们介绍给周围的朋友。
一套作品,从前期的规划,到最终的方案落地,凝聚着业主、设计师与施工团队的全部精力,很荣幸我们能参与到本次的项目中——品质生活,无忧置家。
-本期案例设计师-
