红星天铂三期-现代简约-135㎡-精简时尚的生活格调
西宁业之峰总部
2022-03-30
项目小区:红星天铂三期
项目面积:135㎡
设计风格:现代简约
设计说明
本案位于西宁市城中位置,本案重新审视空间的层次感,选择用简单又不失细节的手法去重塑整个空间,营造出空间的别致之感,注重和谐的视觉感官。简约的线条、纯粹的材料、利落的量体造型等元素,低调优雅但又不失整体性,这种简约而不简单的风格在现代国际风格的空间中,强调更纯粹的生活美学,更诠释出精简时尚的生活格调。
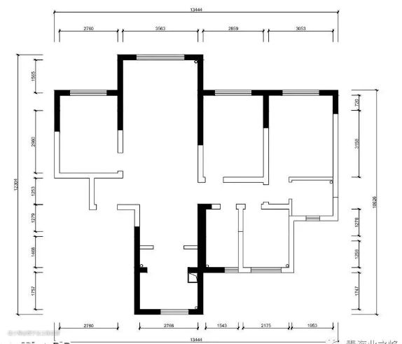
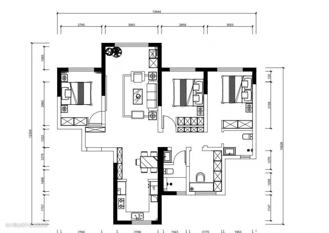
户型图

原始户型图

平面布局图
效果图


电视背景墙采用流行的嵌入式悬空设计,整个色调偏向于黑白灰,这让空间多了几分质感,吊顶采用无主灯的磁吸轨道灯,晚上开灯不会压层高,也让整个客厅温馨感十足。


客餐厅地面都是利用灰色大理石瓷砖通铺的方式,让空间在视觉上显得更加开阔,沙发背景墙采用灰白两色的拼色护墙板来设计,给人眼前一亮的感觉。


玄关柜做到了“一柜到顶的设计”增大储物空间的同时,又将空间利用率做到了最大化,玄关柜间留空上方做了暗藏式的灯带,方便主人进门放包包、钥匙之类的小物件。


餐厅酒柜也是做到了通顶设计,米白色的乳胶漆搭配白色柜门在色彩搭配上表现出了高度的统一性。餐厅选用的灯也做了无主灯,四人方桌更时尚美观,摆上一束花,让家人的用餐氛围瞬间变得温馨而美好!

卧室的面积相对宽敞,背景墙采用米白色的乳胶漆进行装饰,床头做了线性吊灯,款式非常新颖,让人感觉卧室多出了一些时尚感。整个空间简洁的同时不失高级感,让整个睡眠空间变得温馨而美好!

次卧室背景墙也是通过深蓝色的乳胶漆进行打造,地面用木地板通铺,冬天光着脚走路也不会感觉冷,床头再搭配上两边的壁灯,卧室的那一份宁静感油然而生。

次卧室背景墙则是一大亮点,通过两种不同的艺术漆打造出一款非常新颖的舒适环境。

小次卧的衣柜与书桌都是采用组合设计的方式,拉手也都是暗藏式的,风格上简洁明了,更能给人一种安静的享受。