两室两厅一卫一厨户型解析
金螳螂家眉山店
2022-03-29
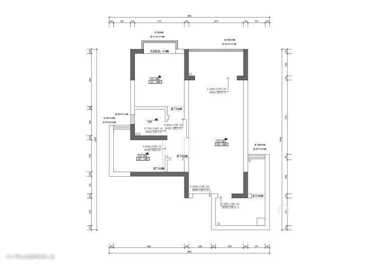
该户型为两室室两厅一卫一厨,户型方正,改动较小,厨房较小

根据客户需求,保留两个卧室,冰箱餐边柜鞋柜衔接

整体色调以奶咖为主,整体家居也已浅色为主,部分调色以丰富整体色感,冷色调可以增加空间感。小空间不适合多造型,小饰品装饰不仅温馨更出效果。

餐厅空间小,靠墙放小餐桌节约空间,墙面做些小装饰,温馨而不失格调。

卧室色调偏暖,使整个空间更加温馨,床头背景主要以挂画为主

金螳螂家眉山店
2022-03-29
该户型为两室室两厅一卫一厨,户型方正,改动较小,厨房较小

根据客户需求,保留两个卧室,冰箱餐边柜鞋柜衔接

整体色调以奶咖为主,整体家居也已浅色为主,部分调色以丰富整体色感,冷色调可以增加空间感。小空间不适合多造型,小饰品装饰不仅温馨更出效果。

餐厅空间小,靠墙放小餐桌节约空间,墙面做些小装饰,温馨而不失格调。

卧室色调偏暖,使整个空间更加温馨,床头背景主要以挂画为主
