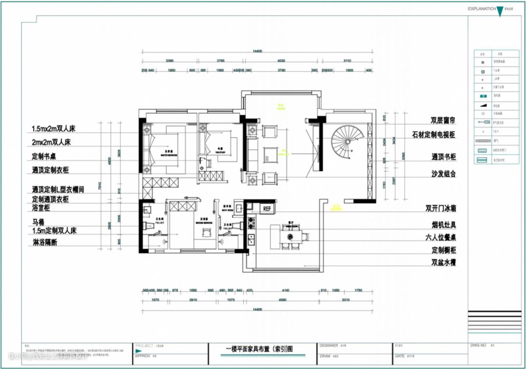
碧桂园凤凰城天悦215平现代简约风
西安业之峰装饰设计
2022-04-07
本案位于西安碧桂园凤凰城天悦,依据客户需求和后期居住习惯故将风格定义为现代简约风,该户型定位于居家温馨生活的基调,女主和儿子特别中意绿色调,绿色象征着生机活力。以浅色调贯穿,摒弃各种无用的奢华,处处表现出生活的痕迹。

客厅
客厅以会客为主,随着自然光的引入,目光向北延伸,流露处宽敞的气度,客厅,餐厅,厨房融为一体,展示了屋主开放的生活态度。


书房
书房空间结构—整体色调明亮,干净不琐碎,墙面装饰增加空间的丰富度,适当的暖色调使得空间舒适又不失品质感。

卧室
卧室空间一改客餐厅的惊艳大胆,以低饱和度的融合配色营造干净,纯粹,温馨的私域环境。床头精致的吊灯,丰富了空间的层次感。


儿童房
儿童房主打就是环境感打造出一个温暖静谧的质感空间,围合出舒适的起居中心,儿童房的选色也是多样化没有局限性主打亮色为主搭配一点高级亮色增加了不同的饰品使其保证孩子在生活中的成长环境氛围。
