114㎡现代跃层,轻奢风范!
居然之家自营家装
2022-04-08

项目地点/北京
风格/现代轻奢
设计师/陈蕊
现代轻奢风格是在空间设计的色彩搭配上,精准地把控节奏,用设计表达空间的包容性,更多的是通过人性化思考,创造一个功能性完善的生活空间。
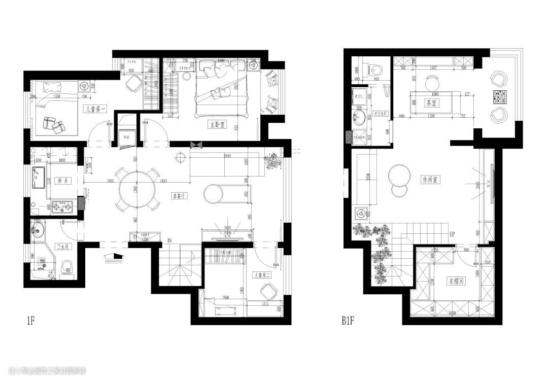
本案例位于北京中海云熙小区,套内面积为114㎡,是一处有着四室两厅两卫的住宅户型。
设计师陈蕊将这处四居室重新拆分设计,划分为一层为居住空间,下跃层为休闲空间的四室两卫格局。
#户型分析#

原始平面布局

改造后平面布局
设计师陈蕊将空间重新整合,打掉冗余的非承重墙,重新划分空间,考虑到平日屋主的生活动线以及生活需求,对全屋进行了细致的改造设计,一起来看看改造后的家吧~
客餐厅


空间以暖色系为主要基调。低调的轻奢与优雅的品味,自然元素的运用,时尚现代家具的选择,让空间有着不可抗拒的魅力。
客餐厅一体化设计,在节省空间的同时,能有效与家人沟通,产生亲情互动。地毯的铺设在视觉上产生划分空间的效果。
休闲室

沙发背景墙采用石材与木质的结合,更注重设计手法上的简洁、大气,但没有忽视品质和设计感,而是通过材质上的奢华,不着痕迹地透露出对于精致、考究生活的追求,花艺的加入增添了自然生活的气息。
生活方式如同一层层记忆在空间中渐次打开。
茶室

茶室的设计拒绝了浓烈的色彩,以一种简单、纯粹的设计语言,回归生活的本质,留存给居者更多生活想象的空间。
主卧

主卧以雅灰与暖棕为卧室主色调,给空间带来恰到好处的沉静感,注重美、形式感,原木的背景墙富有质感的灯具、舒适柔软的床品,使空间更富生活情感,彰显屋主的品味与格调。
卫生间

设计师对卫生间做了三分离设计,墙砖采用白色瓷砖大面积铺贴,整体简洁干净。黑白色调相结合,更显清爽整洁。
▪ THE END ▪
关于设计师

■ 工作态度:亲力亲为每一个项目,确保作品的最终真实落地