深圳装修,户型图320平米现代轻奢风,一站式整装服务!
深圳东易日盛福田店
2022-04-27
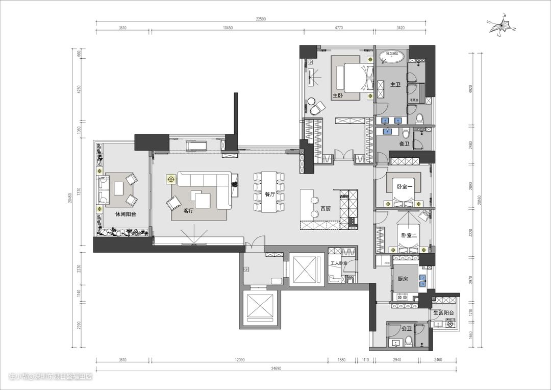
基本信息:
- 楼盘名称:深圳市南山区天鹅湖花园
- 建筑面积:320㎡
- 设计老师:巨永健
- 户型格局:平层
- 装修风格:现代轻奢
客户需求:
- 房子使用倾向:常居住
- 常住成员:夫妻二人、1个小孩和长辈1人
居住需求:
- 1、风格喜欢现代
- 2、需要3个卧室,尽可能独立卫生间
- 3、要区分中西厨房
- 4、需要提供一间工人房
- 5、女主人想要一间汗蒸房修养身心
- 6、储物空间要大

1、客餐厅空间:
客餐厅空间足够摆放沙发,餐桌椅,四周留出人通过的宽度,在落地窗位置摆放休闲椅,可随时欣赏窗外风景。单独入户空间,进门与客餐厅空间相通,空间人流路线通顺,整个空间比例划分,人流路线行走就很舒服。




2、厨房空间:
中西厨房区分。中厨有单独空间,为U型厨房,分区明确,有强大的收纳功能,所配备的橱柜非常齐全,整体功能的划分十分明确;西厨开放式,实用美观的餐桌与厨房紧密相连,营造出温馨的就餐环境,让居家生活的贴心快乐从清早开始就伴随全家人。配备1个冰箱,满足客户需求。
















户型缺点:
1、空间过道笔直狭窄
2、客餐厅空间大,而其他空间拥挤
3、储物空间小