136平新中式风,典雅的壁画,凸显不同寻常的意蕴之美!
华浔品味装饰集团
2022-05-05
根据平时的了解,这款案例的业主平时对于中国的历史文化非常感兴趣,平时所追的电视剧也都是《三国演义》之类的名著典故。
故而设计师向业主介绍了新中式的设计理念,谁料正符合业主所思所想,二者一拍即合,随机确定了新中式的设计风格,进而在此基础上融入原木家具以及多款不同样式的新中式壁画,使得整体的设计将现代精神和传统意蕴有机结合,实现了色彩、意境和神韵的创新表达。
基础信息
设计面积:136平方米
设计风格:新中式风格
所用材料:大理石地砖、原木家具、中式壁灯、护墙板、新中式壁画等
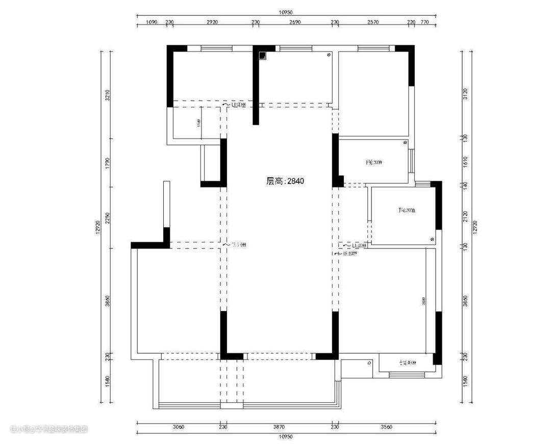
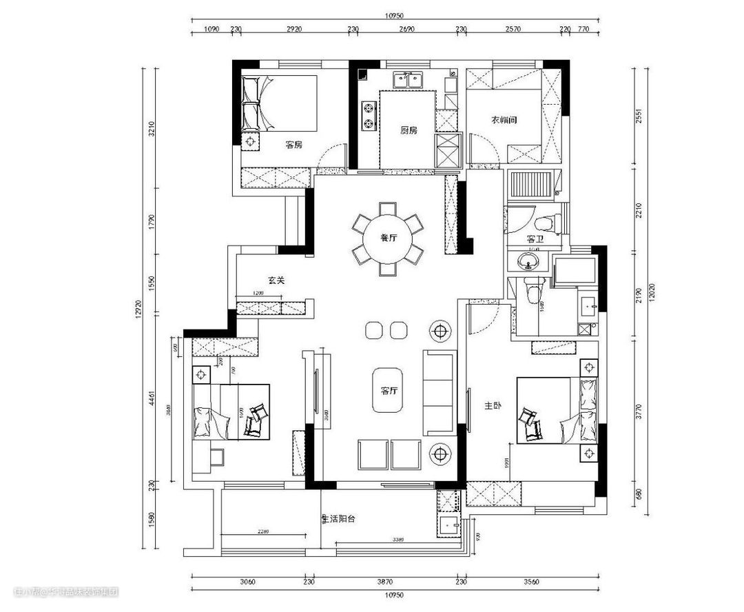
01户型图

两米八的层高能够有效的保证室内采光性,并且居住在室内不显压抑,特别宽敞。

将原本属于客房的空间分隔出一部分,进而和客厅前面共同形成超大的生活阳台一处,能够满足衣物晾晒、休闲娱乐、花草种植的生活需求。
进门后玄关自然形成90度的室内拐角,让玄关处自成一体,又能良好的保证室内生活的隐蔽性。
而主卧进门后通道设计同样也能增加生活隐私性。
通往独立衣帽间的路上打造出了一处长长的室内走廊,这里可以好好设计成一处艺术长廊,增加生活的艺术感和文化气息。
02客餐厅

新中式整体设计风格路线的确定也就决定了整体室内典雅而又庄重的基调。
浅灰色大理石通铺的工艺让客餐厅两大功能区显得更加通透,面积更为宽广。而餐厅同样采用同种款式的主灯,也加强了两大功能区的联接性。
泛有金色光泽的灯管搭配上水晶质感的灯罩,在新中式的氛围中流露出对于轻奢生活的向往与追求。
深色原木色系的沙发框架和茶几凸显着庄重的生活基调,而白色色调的坐垫配置则是形成色彩上的反差,进而突出沙发坐区的高贵。
向阳窗户处搭配了黄、蓝色调的窗帘,为客厅融入了一些更为鲜艳的色彩,使得视觉看上去不单调。

沙发背景墙整体采用对称感的设计。中国人是讲究对称美的,并且在新中式的设计理念中显得尤为明显。
浅棕色护墙板形成沙发背景墙的主要基础,在此之上打造了大理石板的悬空工艺。
两侧的中式壁灯互相呼应,非常好看。
03餐厅

头顶上方布满了灯带以及中央餐厅主灯的灯光仿佛让人沐浴在波光粼粼的暖阳之下。
餐厅中间设计了一处圆形餐桌成为餐厅整体的中心点,多把参餐椅绕其摆放,犹如众星拱月一般。
浅灰色的皮质座椅坐感柔和,色调的选择也体现出一种低调谦虚的生活态度。
一侧的酒柜设计颇具特色。浅棕色色调的原木材质较为普通,加上灯带的背景感营造仿佛有了些设计上的起色,看上去有了一定的韵味。但是设计师突发奇想,将每一层的酒柜隔断采用亚克力高光板进行交错拼接装饰,形成的效果有变化、有韵味。
04主卧

简约大气是主卧的既视感。
浅灰色色调的墙布对整体的墙面进行了铺装,让房间看上去淡雅无比。床尾正对面的墙面上向内掏空了一处墙体,进而设计成为一处电视悬挂区,再以此为依托打造了几个小壁龛作为储物格,小巧而又精致,还能够提供卧室的观影功能。

主卧一反常态的设计,内侧没有打造成为大衣柜,二是设计了一处简约的床边柜,可以随手放置小物品。并且墙上还有装饰画,让房间更加漂亮。
有人会说没有衣柜,收纳能力不能得到保障。其实大可放心。设计师将向阳一侧的墙体进行了大体积的整改,飘窗下方的非承重部分全部设计成为大衣柜,并且旁边的墙壁也全部打造成为衣柜,储物能力大大提升。
05儿童房

业主家里有一个男孩子,所以儿童房的设计采用淡淡的浅蓝色作为基础色调,一来能够体现出男孩子的阳刚之气,二来也能够体现出孩子的朝气蓬勃。

进门拐角处的竖向鞋柜设计颇有意思,让人没有想到能够利用的空间也能发挥自己收纳的价值。
06卫生间

卫生间则是采用棕色的大理石板作为墙面和地面的铺装材料,这种色调的优势便是能够耐脏,卫生更好清洁。
超宽的玻璃推拉门成为卫生间内部干湿分离的中间隔断,让房间内部的水分不外流,卫生能够得到良好的保持。