53㎡现代简约风,L形结构的两室一厅设计
海域整装(浦西店)
2022-05-09
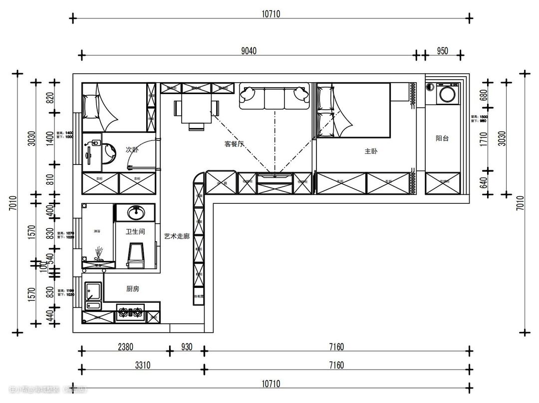
整体得房屋结构呈现出“L形”的状态,这样的结构一般来讲会存在功能空间缺失的情况,在本案例中,设计师对其进行了重新规划和布局,将必要的功能空间的面积重新分配,展现出的效果也是令人惊艳。
平面设计图

艺术走廊


一进门,首先看到的就是一条艺术长廊,依靠长廊的墙体做了整体的定制柜,涵盖了艺术收纳柜、日常收纳柜、鞋柜,实现了多功能一体收纳,不仅实用性更强了,并且给这条空旷的长廊增加了艺术性。
厨房

长廊的入门左手边是厨房,L形布局,满足基本的洗切炒的需求,同时利用上下的空间做收纳柜,上侧的收纳柜要一柜到顶,不给灰尘留空间,而且这样更好清理。为了让小厨房更有空间感,墙面是墙砖设计,具有一定的镜面效果,不仅显空间,更使得这个小小的空间更亮堂。
卫生间

紧邻厨房的是卫生间,也在长廊的左手边。干湿分离布局,墙砖设计,这里需要注意的是,干湿分离的门要设计成外开门,保证安全,同时上侧要预留空间,不能将门体做到顶,这样可以保证在淋浴时让水蒸气及时散开,也是保证安全。
客餐厅



餐厅侧:利用餐边柜将餐桌与沙发的空间区分开,同时将餐边柜与背景墙设计成凹凸布局的形式,视觉上增加空间感,也让两个空间的功能更明显。在家具的选择上,尽量以简约、轻便为主,避免给小空间增加厚重感,显得空间憋闷。
电视侧:这里利用收纳格将电视与冰箱区分冰箱做嵌入式设计,中间是带有磨砂门的收纳格,也是区分线,电视背景墙做成收纳格 ,满足日常的收纳。这样的设计实现了小空间的最大化利用。
次卧


次卧是书桌收纳柜的一体设计,简洁实用。同时,实现了收纳柜上墙,增加卧室内部的收纳空间,这里要注意,装修时一定要将收纳柜实打实的嵌入在墙体上,避免存在安全隐患。
主卧与阳台


主卧是将客厅分隔后设计而成,将阳台纳入卧室,门体采用大型推拉玻璃门,内部设有推拉帘,保证隐私也能满足日常采光。阳台不仅可以做收纳,还可以做日常的休闲用。