【御璟悦来】奶油原木风收纳与美观并存的平衡空间
重庆言正设计
2022-06-25

业主需求 / The owner needs
其实对于御璟悦来已经在二期、三期都做了不同风格的案例,这是第四的期即将接房;业主对于装修的思路很清楚,知道自己要想的暖色空间,在我们设计团队不断深度沟通明白控制预算和落地的方式与方法,也再些选择言正的设计团队。
对于风格只给了四个字:暖色、收纳,在团队从模型到PPT再到最后的成图一系列具象化的设计让业主也达到满意的程度。
—
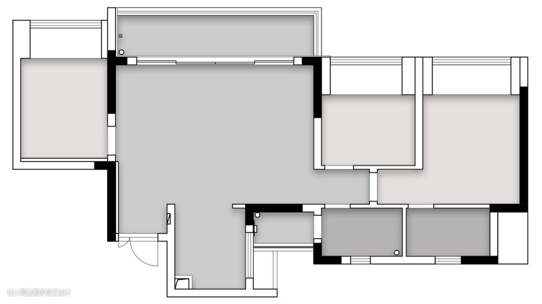
Project information
项目地址 Project location | 御璟悦来
项目面积 Project area | 110㎡
设计风格 Design style | 奶油原木风
硬装设计 Hard outfit design | 言正设计团队
软装设计 Soft outfit design | 言正设计团队

①入户区域无鞋柜通过改造让入户有换鞋区。
②客厅与厨房通过折叠式滑门让空间更具有一体化,开放与封闭式厨房收放自如。
③两个卫生间通过改造调整让其使用更方便,干湿分区使用互不影响。
④把原始飘窗拆除让卧室的使用最大化。
④多功能房主要以收纳为主,沙发床只是备用,平日在此区域工作或者放松也是一个不错的空间。

客厅 / Living room
客餐厅使用无主灯照明设计,悬浮吊顶让整体空间更具有层次感;整体色彩搭配以奶油色的漆为基调,再配上原木色面板及棕色让整体空间温暖而沉稳。


格子地毯与餐椅的相近色让整体空间更协调,半圆弧形沙与茶几及摆件增添了空间圆润感。



悬空式电视柜与悬浮式吊顶更加呼应,也更有利于做清洁;也具有收纳性。

餐厅背后的饰面板让整个空间更具有延伸感,并让进入多功能房的门隐形起来具有整体感。

餐桌上的摆件与茶几一样,以圆润为主、在此享受家人做的美食,简简单单的幸福生活,也是如此。


大家可以看到我们的SU模型与我们的最后出来的大图是一个子母关系,有了模型再有最后的成图;有些业主方也选择只要模型和PPT,而为了整体更具有形象化就会选择成图,但整体的风格走向以及造型都是前期就设计出来了的。
卧室 / Bedroom

主卧一样延续着客厅沉稳的风格,以大面积的暗橘色来给予空间稳重,再极简性的衣柜让整个空间具有层次感。

主卧的设计的SU模型与最终的万图还原性也是比较高,只是梳妆台最后换在窗边去了,增加衣柜的收纳性。

细线性的梳妆台床让整体空间除开成熟感以外,还能感受到细腻感,边摆放的绿植,凸显勃勃生机、潮气蓬勃的景象。在其他的色彩的搭配下,显得独具一格,更加突出、间的温暖舒适感~
其他空间设计内容 / Other space design contents

儿童房整体的形体及产品搭配。

我们设计所有空间都会让业主方能够更具形象化体现出来。


在设计对造型的时候 都会把整个空间的材料颜色全部都会拟出来,后期材料配色也是以这个全套PPT为主要依据。


我们一直认为设计师不是艺术家,而是和业主方一起共同的去完成双方都比较骄傲的一个作品,即美观又实用这与言正的slogan为质美而生不某而和。
—END—