96㎡北欧风三房,花园阳台+奶油色,打造阳光无敌的家!
珠海佳鸿装饰
2022-05-17
业主平时一人居住,追求的是一种清新舒适而又端庄优雅的空间氛围,因此装修的时候整体空间以温柔的奶油色为主,搭配北欧风的家具,并在细节里加入圆润的弧形元素,营造出一种独特优雅的温馨家居感。


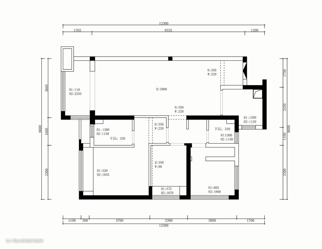
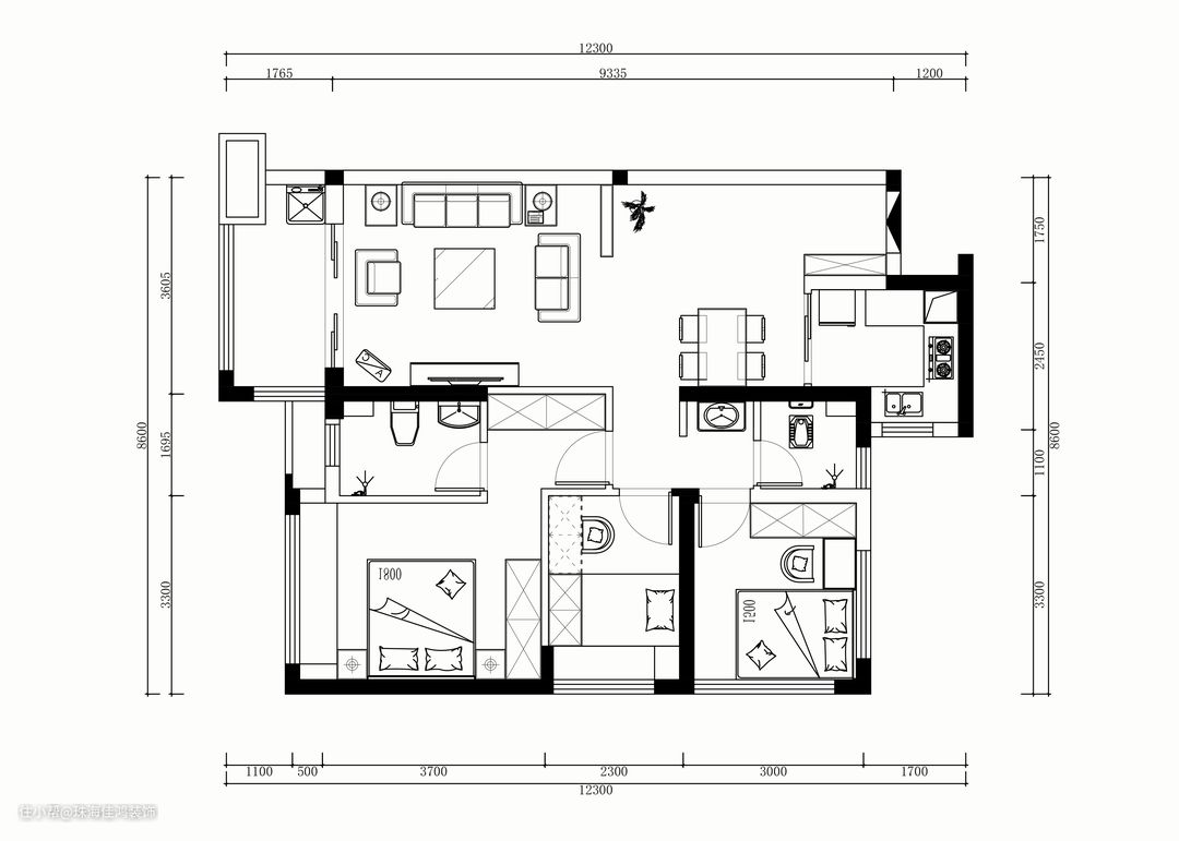
户型优化:
1.将阳台和客餐厅打通,并通铺瓷砖,扩大整体空间感;
2.公卫的户型自带干湿分离,放置浴室柜的位置有1m左右,而常规浴室柜只有800cm,因此提前和业主沟通后,放入定制的柜体;
3.客厅与卧室墙面采用分色设计,增加空间趣味感和装饰性。
玄关

衣物挂钩、卡座、鞋柜组合,储物与功能穿插布置。进门即可感受到的简约、温和、治愈的空间感,正如屋主本人对生活的态度一样,精致放松,且独一无二。
厨房

玄关的左手边为厨房区域,暖色调的氛围让做饭的心情更加舒畅。定制了U型的地柜,提供了充足的收纳+操作空间,米白色吊柜搭配黄铜拉手,优雅又精致。
客餐厅

餐厅面积宽敞,适应空间比例摆放了一个长桌,圆柱形的桌椅腿结合栅栏式的餐椅靠背,还有过道处的斗柜,木色材质在这个空间里很有自然的氛围。
硬装上打造平吊顶,以主灯+轨道灯的方式照明,目的是去繁化简,让空间更简洁。

奶油色系+鲜黄色的背景自带温暖甜美的气质,客厅阳台打通后将自然光线引入家中。一幅线条挂画十分引人注目,橘色与黑色线条相加,更显艺术优雅气息。
北欧ins风豆腐块沙发搭配造型感十足的茶几、木马椅,呈现出毫不费力的高级感。

电视背景墙以拼接手法打造,暖色艺术漆奠定墙面温馨基调。中间对称具有拱形小门洞的电视柜实用美观,视觉层次感丰富。
同时布置扫地机、净水器、智能空调,巧增客厅收纳能力,为居家生活带来便利。
阳台

多层花架上绿意盎然,搭配了圆润的单椅和小几,后方是叠放布置的洗衣机和烘干机,使休闲阳台同时具备了实用的功能。
这一处“轻松的角落”,十分适合静坐看书,或是闲时品茗,奶油蛋糕味儿的家中一半是浪漫,一半是生活。
卫生间

干区定制柜体秩序排布,有藏有露的镜柜、悬挂吹风筒、纯白台下盆、木色烤漆储物柜,静谧又柔和。
主卧

主卧延续了客厅的基调,墙面采用分色设计,利用上下的比例关系,营造出视觉上的高层高。
半高的软包床头,带着一点温柔的味道和浓浓的北欧气息,搭配色块挂画,让睡眠充满仪式感和艺术美感。

通顶衣柜中间黑色开放格设计,不显单调,结合床头背景氛围吊灯,营造优雅温柔的空间气质。
主卫

主卫内浴室柜、马桶、淋浴区秩序排布,符合日常生活动线,统一白色墙砖干净又整洁。
次卧


次卧平顶的设计给空间带来简洁、深邃的既视感。加上优渥的采光,每寸空间都透着岁月静好。
采用木质搁架与绿植插瓶装饰,丰富奶油色系背景墙,增添北欧风的清新与简洁。
儿童房

儿童房也是阳光房,静雅色系搭配活泼的柠檬黄呈现极具表现力的视觉效果。

衣柜书桌书架一体式设计,小动物造型的家具与球类的放置是空间里的小童趣。