要侘寂风,不要叙利亚风【大连装修案例】
大连品尚茗居装饰
2022-05-19

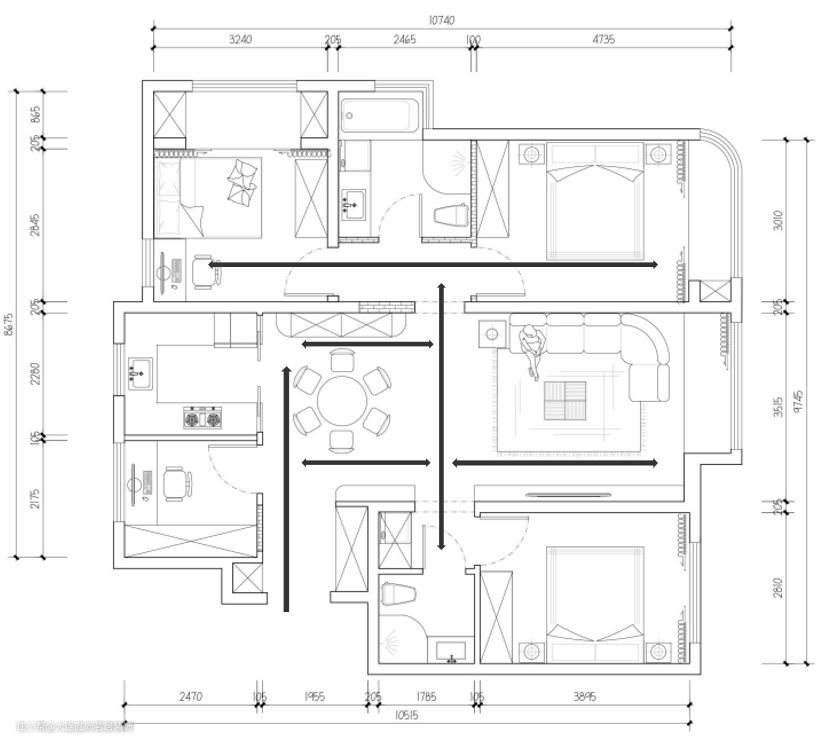
此户型为大连富力东堤湾畔二期F户124平米,套内101平米装修案例。整体格局为四室两厅一厨两卫, 赠送飘窗比较多,有独立玄关,独立厨房,入户门没有视觉禁忌,除了北卧室窗户朝向相对奇葩 外,其他功能区均比较标准。


拆除主卫生部分墙体,及部分沙发背景墙, 书房门位置挪动。

改造主卫生间使用空间,及书房门位置, 使整体动线更加集中,取消主卧独立主卫。

取消主卧内卫生间,增加卫生间鱼缸,便 于形成老人独立卫生间,一家三口公用一卫生间 的使用形式,有时主卧放卫生间不一定是个好的 决定。
改造主卫生间使用空间,及书房门位置, 使整体动线更加集中,调整沙发背景墙尺寸,合 理化父母孩子休息区于老人休息区的动线走廊, 餐厅采用圆桌,增加双动线形式。
要诧寂风,不要叙利亚风

如果真有人喜欢这种天然水泥的感觉, 并且使他演变成一种口口相传的风格, 也许这就是大家口口相传的 “叙利亚风格”
If someone really likes the feeling of natural cementand makes him evolve into a style handed down byword of mouth, then this is the legendary "Syrianstyle"

他们喜欢的是: 原生态的质感、 自由随性的布局、 解构的曲线与曲面、 质朴低调的配色、 恰到好处的留白、 天然 独特的软装、 温暖的灯光氛围
What they like are: original texture, free and random layout, deconstructed curves and surfaces, simple and low-key color matching, appropriate white space, natural and unique soft clothing and warmlighting atmosphere

诧寂原意是简陋,是独特的自然美学,是一种不刻意突出外表,强调饰物质朴的内在,并且能够经历时间考验的本质的美
The original meaning of surprise silence is simple. It is a unique natural aesthetics in Japan. It is an essential beauty that does not deliberately highlight the appearance, emphasizes the simplicity of material decoration, and can withstand the test of time

其中残缺之美极具代表性,诠释出朴素,安静的事物的素雅、 自然、粗野之特色。
Among them, the incomplete beauty is very representative, which interprets the simple, quiet things with the characteristics of simplicity,nature and coarseness.

诧是在简洁安静中融入质朴的美,寂是时间的光泽。诧寂的美学意识就是黯然、枯寂, 以粗糙,哀美之姿传达其意识。
Surprise is the integration of simple beauty into simplicity and silence, and silence is the luster of time. The aesthetic consciousness of surprise silence is bleak and withered, conveying its consciousness in a rough, sad and beautiful posture.

客厅

中国本土自古讲究对称均衡,而诧寂风本身讲究的美学原则就是不对称美学,在诧寂风的概念里,丝毫不纯在任何对称元素
Since ancient times, China has paid attention to symmetry and balance, and the aesthetic principle of surprised silence wind itself is asymmetric aesthetics. In the concept of surprised silence wind, it is not pure in any symmetrical element

残缺是诧季风意境当中的灵魂,所有元素都充斥的残缺感,物体本身的形体,质感,色彩,光泽都是绝对不完美,残缺的。
Deformity is the soul of the artistic conception. All elements are full of the sense of deformity. The shape, texture, color and luster of the object itself are absolutely imperfect and incomplete

诧寂风的已经充满岁月的沧桑,所以诧寂风里的各种物件都有破旧的痕迹,表面上虽然脏旧破烂,但也不乏一种来自岁月的自然美
The of the surprised quiet wind has been full of the vicissitudes of the years, so all kinds of objects in the surprised quiet wind have worn- out traces. Although they are dirty and worn on the surface, there is no lack of a natural beauty from the years
厨房

诧寂风整体没有太多鲜艳 的色彩,大多以深灰,浅 灰系为主,没有过于份饭 复杂的线条元素,简介穿 插乳白色,大地色,浅棕 色,重点表达出诧寂风本 身粗犷,干枯,破烂,老 枯寂的空明感。
There are not many bright colors on the whole. Most of them are dark gray and light gray, and there are no complex line elements for the meal. The introduction is interspersed with milky white, earth color and light brown, focusing on the empty sense of rough, dry, ragged and old silence.
卧室

素水泥本身粗犷,枯燥的质感,正式符合诧寂风本身的调性于氛围,素洁的肌理,极致的简约,也是营造诧寂风氛围的管件材料元素
The rough and boring texture of plain cement is officially in line with the tone of the surprised wind itself. The plain texture and extreme simplicity are also the material elements to create the surprised wind atmosphere

诧寂风当中比较管件的装饰物就是手工制品,这是最能表达当地低于文化的元素比如手工编织物,或者陶瓷,或者禅意木器
Among the ornaments of qijifeng, handicrafts are the most expressive elements of local culture, such as hand woven fabrics, ceramics, or Zen wood
结语

流行趋势就像一个圆, 兜兜 转转总会回到某一个点。
Fashion trends are like a circle. They always return to a certain point.
欢迎咨询品尚茗居,给你发更多接近您家户型的案例,免费为你提供更适合你家的设计规划。