巧妙化解三角户型,重新规划拓展空间。
大连品尚茗居装饰
2022-05-23

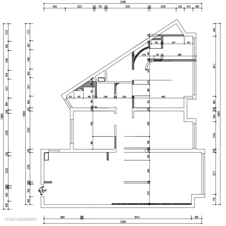
原始户型分析
存在缺陷:
1 入户玄关通道狭窄,视觉感不通透,光线不充足;
2 餐厅采光差,比较昏暗,空间使用率低
3 原有动线不分明
4 主卧使用率低,主卧卫生间无采光,空气循环差
5 门与门整体衔接性较弱,视觉美观性差
6 主卧室跟主卫墙体有斜面,空间使用率低
7 收纳功能较少
8 空间整体通风较冲,不藏风聚气 ,室内空气不融合

改造策略
1、户型有异形,所以对空间进行优化,让布局更加合理。
2、厨房行开放式处理,墙壁打通使厨房餐厅一体化,增加餐厅采光,提高空间使用率
3、书房采用玻璃隔断处理,让空间联动起来,增加客厅与书房的空间感受
4、置换主卧动线,重新划分功能区域,增加主卧开间的舒适度
5、在满足床头富裕的空间同时收纳系统,做到男女主人都有储物空间

人生需要仪式感,不然生活只是一种存在状态。仪式,是区分身份最有效的工具,是凸显自己的特别形式;适当的中轴对称,在秩序的约束下,造就言行得体的尊贵气质,家就得有里有面;横厅集待客、娱乐、休闲于一体,无缝对接N种生活方式,而阅读区则装得下读书写意,守得住自方天地。

“LDK”一体化设计,将客厅、餐厅、厨房形成开放式一体化,它将原本客餐厅区域的分割墙体打通,增加采光面,让室内更加通透,也有利于通风,空间融为一体,缩短了日常活动的动线,功能区域之间减少了墙体的阻隔,相互独立又贯通之间的互动,视觉可以增加了收纳和活动空间,为男主人手办提供展示空间。
“LDK” —K厨房(kitchen)

“LDK” —L客厅(living room)

“LDK”—D餐厅(dining room)

多功能室

卧室


卫生间

欢迎咨询品尚茗居,
给你发更多接近您家户型的案例,
免费为你提供更适合你家的设计规划。