刚需户型的那些痛点,你们家是怎么解决的?
一鸣空间设计陳眞偉
2022-05-27
刚需户型是在房价日益飙升的现代社会所衍生出来的新型名词。它将房产定位为刚需盘或改善盘,房屋的户型也就随之分为刚需户型和改善户型两种。那么,刚需户型究竟是什么意思呢?

刚需户型的特点是:紧凑的户型面积,即压缩没有必要的空间,消除长走廊; 最好是规整的空间,即没有特殊形状的空间,优化开门方式;合理分配空间,即主要和次要空间面积分配合理,充分利用景观的方位让面积宽敞.

a.定义 :
刚需房其实是根据人群来命名的,也就是所谓刚需一族。很多大城市的年轻人需要一套房子用来结婚,落户或者小朋友上学,这种户型是刚需的。

一般刚需族只能选择小户型的空间,如果有长远的打算,他们打算购买大户型,就需要选择价格低廉的房产。那么通常来说这两种房产的面积都不会太大,通常在60-90平米之间。

问题一
空间不足,需要设立多功能的空间
作为中小户型中的一种,一般都是两室一厅或者三室一厅的户型居多。那么在这种户型条件下勉强的基本空间功能齐全尚且可以满足,但是多余的功能空间就难以为继了。在这种情况下,我们需要考虑多功能空间的设计。

那么我们来看看应该怎样去将一个空间进行叠加的设计与使用呢?
①比如说我们可以舍弃固有的老套的对空间的称呼,比如说客厅,餐厅等。转而使用休闲区,会客区等名词作为分割空间的名词来使用。

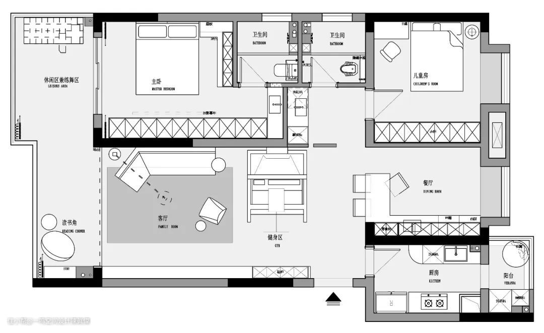
比如说上图的客厅做了一个整体的休闲空间使用,健身器材,瑜伽垫,练舞区等等。这个空间就成为了一个多功能性的叠加空间,如果说在阅读角的位置加一个书桌,又可以变为办公的区域。这种叠加又不会让空间变得很压抑,还很有效。

②在不同的时间点,同一组家具可以有不同的使用方式。比如说一个横厅设计的小户型空间里,以沙发作为软隔断隔开的餐厅空间,在吃饭的时候可以做餐桌;有客人来时,可以用来会客喝茶;工作很忙的时候也是很好的办公桌。

③还有一些墙上的空间可以利用,在刚需户型的空间,一些上墙不会难看的家居和收纳都可以向墙上靠拢来争取收纳空间。比如说这套案例用墙上的空间做收纳柜和猫主子的活动空间。

问题二
超小型卧室的利用问题
60-90平米的户型空间,通常是小两室和小三室的空间。那么这个时候总会有一个卧房房间的面积是很小的,有些甚至不超过8个平方米。在这个时候就需要别的改造方法来帮助我们利用这个空间了。

①墨菲床。墨菲床是指可以向墙上收拢的床体,在《破产姐妹》中卡洛琳就是睡在这样一张床上,需要的时候拿下来不需要的时候和上去,可以节约空间。

①榻榻米。有一些面积很小的空间,可以设计榻榻米来做收纳,休闲睡眠多种功能为一体,再配上书桌,有书房的功能适合上班族和正在读书的小朋友们。
