门窗设计玻璃压线外装好还是内装好?
Archua
2022-06-01

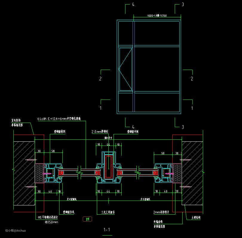
门窗设计图1:

门窗设计图2:

门窗设计图3:

门窗行业内人士看法:

1、关于压线内装和外装,若不从经济角度考虑,肯定是选内装。有许多门窗厂为了减少型材的备库的种类,降低生产成本,才会选择外装。
2、像这种压线外装的事也只有极个别门窗厂干的,就是为了利益。(说到这,我就不得不说那些监理了,门窗的质量都毁在他们手里了,国标规定7层以上不允许外开的,可是甲方、监理、门窗厂只要狼狈为奸,标准也不管用的,最后害的还是老百姓)
从设计产品的角度,内开最好做结构了,特别是外开要考虑几种方案,一种是外开用合页,一种是外开用四连杆;如果2者兼备的话,做四连杆只能用模具啃掉压线筋,这样在工时上就增加了,还不美观,得不偿失。为了压线内装就得做转换料,转换的方案也得有2种,一种是扇多固定少那就得转换固定,一种是扇少固定多那就得转换扇。因为中国人的习惯喜欢用外开的,所以市场上的产品也就乱七八糟的都有了,工装产品永远比不上家装产品,所以家装产品没一个是压线外装的。
没有规定说几层以上不允许外开,只是不建议使用外开,如果要使用要加装防坠装置,至于这个防坠装置国家没有明确规定,那就很宽广的概念了
各省标准不一样,没有说7层以上不得,很多都是不宜。

3、这个要说合理的肯定是内装,但是考虑成本的话,做外开时,很多会选择外装,至少省掉了一圈转接框,一个扇就节省了几十元上百元的,至于说那种好,前提只有一个,看预算,如果是自家换窗,建议,选内开内倒,内装扣条。
4、平开外装好,省材防水好。如果加转换料,估计业主很少愿意出那个钱。推拉窗,当然是内装。
5、上海压线外装的某个外开窗项目,台风来临的晚上,压线被吹落,光压线就补了2吨。没伤着人算是运气。
6、我主张压条内装,外装防水不好处理,我做过一个4K多的活,为了降低成本,压条外装(外开窗),当风大雨大的时候,漏水,水顺着压条槽下得安装孔渗到室内了。换玻璃时也悲剧了。
7、压线内装或外装主要考虑可靠性、安全性、操作性、经济性等方面因素。内装有防盗好(尤其楼层较低者),更换玻璃方便和安全(尤其楼层较高者或玻璃面积较大者)。工程上讲求的是质量,要为用户考虑问题,换位思考是企业的求生之路。

8、好处一大堆,到甲方那里顶不上一个价格因素!
9、压线内装的,安装拆卸更换都是有优势的。不过还得看钱画图,有时候固定压线内装,开启压线外装也不是不行,业主认可就好!
10、当然是内装好了!外装有安全和漏水隐患!内装更换玻璃也方便啊!
11、内装好,更换玻璃容易且能够防盗。
12、内装好,便于维护。防水如果处理好,应该没有问题。
13、做门窗的都知道是内装好,但是成本决定一切。
14、内装压线有好几种方式,一种是普通平开窗通过开窗处的转向框来达到固定玻璃压线内装的效果,另一种是通过反中工等方式达到内装压线的目的,对比而言,通过转向框比较方便,防水效果也好,但没那么经济,相反,通过反中工来内装压线,比较经济,但防水效果差!
建议建筑高度超过30米的楼都内装压线,更换玻璃好换,维修方便!
15、内开和内倒不用考虑压线,自然是室内的,只有外开才涉及压线内外的问题,除了成本问题,还有一个风格的考虑,如果洞口过小,用内压线,室内会很压抑,个人见解。
16、外装压线,不安全,可以从外部,卸掉压线,拿掉玻璃,防盗是大问题!
17、外装不安全的和成本没多大关系的啊!

(文章源于网络,如有侵权请告知)
18、这个一般是内装,如果想节约成本的话,可以框框拼,能省3边的转换料。
如果是层间位置做窗的话,方便玻璃安装,只能是压条外装。现在压条外装的方案基本很少。具体问题具体分析。
19、自家装肯定要内装!别人家装你让别人决定吧!出了问题就找别人去!
20、铝合金门窗起源欧洲,最发达在德国,大家可以留意观察下,国外的门窗有几个压线是内装的?多数内装是从内开内倒系统延伸过来的,和材料、防盗什么真没有什么太过大的原理关系,防水和密闭性,才是本质的需求。
21、最主要的是内装安全,一个是施工安全,另外是用户安全,外装压下扣下来进来很方便的,没什么好主张的,必须内装的。