浴缸选购安装技巧丨材质、尺寸、注意事项
上海木桐设计(西安)
2022-06-02
浴缸在前些年的家庭装修中,一直被认为是“鸡肋”般的存在,特别是在一些小户型里,安装的人寥寥无几。然而这几年慢慢发现,安装浴缸的人相比以前多了起来,除了一方面观念的改变,另外一个方面市场上也是出现了一些适合小空间安装的浴缸。下面就给大家分享一下关于浴缸最新的设计施工注意事项:



一、目前浴缸的材质主要有哪些?
目前主要的有亚克力浴缸、铸铁浴缸、钢板浴缸、人造石浴缸、木质浴缸以及软体浴缸。
1、亚克力浴缸

亚克力浴缸材料的本质就是塑料。
优点:保温效果好、质量轻、价格实惠,造型和尺寸可选性强。
缺点:容易刮花、易老化发黄、难打理卫生。
2、铸铁浴缸

铸铁浴缸就是使用铸铁作为基础材料,表面覆盖一层搪瓷。
优点:表面光滑平整、耐酸碱、易打理卫生、不易留痕。
缺点:造型单一、质量比较重、价格较高。
3、钢板浴缸

钢板浴缸与铸铁浴缸相似,区别就在于基材使用的是钢板,表面也是覆盖一层搪瓷。
优点:耐磨、耐热、寿命长,性价比高。
缺点:钢板较薄,不如铸铁坚固、造型单调、易脱瓷。
4、人造石浴缸

以几种材料混合浇铸而成的,也叫手工缸。
优点:表面光洁度高、保温性能好、一体成型可反复打磨。
缺点:不耐划、价格比较高。
5、木浴缸

由木板拼接而成,外加铁圈箍紧的一种浴缸。
优点:保温效果好、易清洗、可定制。
缺点:工艺水平层次不齐、长时间易变形开裂、易发霉。
6、软体缸

有特殊材料制作,整体是软的,淋浴就和躺在沙发上一样舒适。
优点:触感舒适、安全性高、保温性好、耐用。
缺点:价格过高,一般要3W以上。
选择推荐:人造石浴缸>铸铁浴缸>钢板浴缸>亚克力浴缸>软体缸>木质浴缸
二、浴缸尺寸指引
1、常规浴缸尺寸
不同长度的浴缸匹配不一样的沐浴模式,市面上常见的不同长度的浴缸有:

坐泡式木桶浴缸长度约为1300mm,高度约为750mm,宽度约为750mm;
坐泡式浴缸长度约为1500mm,高度约为650mm,宽度约为750mm;
半躺式浴缸长度约为1600mm,高度约为600mm,宽度约为750mm;
全泡式浴缸长度约为1800mm,高度约为600mm,宽度约为750mm;
2、浴缸空间人体尺寸

人体在进入浴缸前,需要一定的站立空间,最小空间宜为600mm*1100mm
3、不同大小卫生间匹配浴缸尺寸
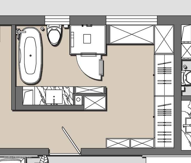
①方形卫生间

长度和宽度大于1800mm以上的卫生间,一般靠窗放置浴缸。

这种卫生间适合的浴缸尺寸:
长度1500-1800mm,宽度700-800mm,适合半躺式或者全泡式浴缸。
②长条卫生间

长度在2700mm以上,宽度在1500mm左右,同样将浴缸靠窗放置。

这种卫生间适合的浴缸尺寸:
长度1100-1450mm,宽度700-800mm,适合短款的坐泡式浴缸。
③小长条卫生间

长度在2250mm左右,宽度在1500mm左右,垂直于窗户放置浴缸,后面同一方向还能放置一个洗手柜,浴缸侧边为马桶。

这种卫生间适合的浴缸尺寸:
长度1300mm,宽度700-800mm,适合坐泡式的单角弧形浴缸。
④小空间卫生间

当一个方向小于1400mm,另一个方向也不够宽敞(总面积小于3㎡),需要根据实际情况来确定浴缸位置。

这种卫生间适合的浴缸尺寸:
长度宽度在1200mm以内,适合坐泡式的三角浴缸或者日式的深坐缸。
⑤大空间卫生间

当卫生间面积大于8㎡,比较宽敞的时候,可以专门做一间浴室来放置浴缸。

这种卫生间适合的浴缸尺寸:
长度1800mm以上的全泡缸,还有就是直径大于1800mm的圆形双人浴缸。
Tips:
·浴缸尺寸在允许的情况下尽可能选最大的,因为泡澡的时候身体越舒展,人会更加轻松惬意;

·当有两种方案时,尽可能选择方便推拉窗户的方位;

·有空间的话,尽量再多一个淋浴房,使用上更加方便;

·当空间实在不足,但是又想放置浴缸,最好的办法就是将卫生间面积扩大。

三、浴缸的施工注意事项:
1、浴缸的放置形式有两种:独立式与嵌入式。

独立式即把浴缸直接放置在地面上,施工较为简单,检修也比较方便。而施工的重点在于进出水口的位置、排水口位置、插座位置的预留和确定。

之前就有业主硬装完成了才去买浴缸,结果没有特别合适的,最后还得重新改水电点位。所以,解决这个问题的关键就是在水电施工前,就确定好浴缸的型号,并且向卖家索要水电点位的预留位置,这样后期安装基本上也就不会出什么问题。
2、嵌入式浴缸是将缸体全部嵌入在基座中,施工较为复杂。施工的重点在除了水电位置的预留和确定,还有就是要做好防水,并预留检修口。嵌入的方式有两种:
①根据浴缸形状用红砖砌筑好基座,粉刷后用浴室同款墙砖饰面铺贴。

②第二种就是用钢架作为基础框架,然后安装浴缸,最后再干挂石材或者瓷砖。

3、不能忽视的问题:购买浴缸前一定要考虑门洞的宽度。

这种情况是经常发生的,卫生间的面积一般比较小,转弯可能不方便,如果不考虑门洞的尺寸,很可能造成浴缸无法进入卫生间的情况发生。有的时候就是差了装门套的那几公分,裸门洞能进,装了门套就不行,市场上的“退货缸”基本上就是这么来的。
4、安装注意事项
如果是网购亚克力浴缸,质量比较轻,可以找个师傅或者自己也能安装。但如果是钢板、铸铁或者人造石浴缸,重量大约300斤,还是找几个工人一起安装吧,一个人是搞不定的。

如果是嵌入式的浴缸,那安装就更加复杂了,需要注意以下事项:

①一定要提前砌筑或者焊接好基座,并按照产品要求预留好水电点位;
②矮墙要有足够的支撑力,底部不要用砖或者其它硬物支撑,避免釉面遭到损坏;
③溢流管和排水管接头处要连接紧密,并且安装完后要测试一下是否漏水;
④下水管呈倒S型,可以有效防止发臭;
⑤浴缸底部和四周挂边都要全面接触且受力均匀;
⑥嵌入式浴缸一定要预留检修口,方便出问题时可以快速检修处理。