设计大咖秀 | 无电视客厅设计,51㎡小户型装出大效果
梵客家装专注老房装修
2022-06-13
设计师卞晓鑫是一位非常资深的室内设计师,擅长小户型改造、空间规划,以及现代简约、北欧、原木、轻奢、新中式等多种风格。今天为大家推荐的是她的一个小户型老房改造案例。51平米四口之家,却依然有各自的独立空间,彼此生活不被打扰,却又能相互融合、体现浓浓家庭爱意。
这是一个四口之家(一对双胞胎女宝宝)。为了孩子上学方便,准备进行二次装修。
原房型为全西南向老房,一层。男主建议有全家能一起其乐融融相聚、放松的大空间;女主爱好书法,想有一个能安静写字的地方。小朋友要求有独立生活空间及活动空间,所以户型改动比较大。
整体设计为简约原木风,浅色系,令空间看上去更为明亮通透,还能体现温馨的居家氛围。
建筑面积:64平
使用面积:51平
原户型:2室1厨1卫
改造后:3室2厅1厨1卫
风格:简约原木风
居住人口:四口之家
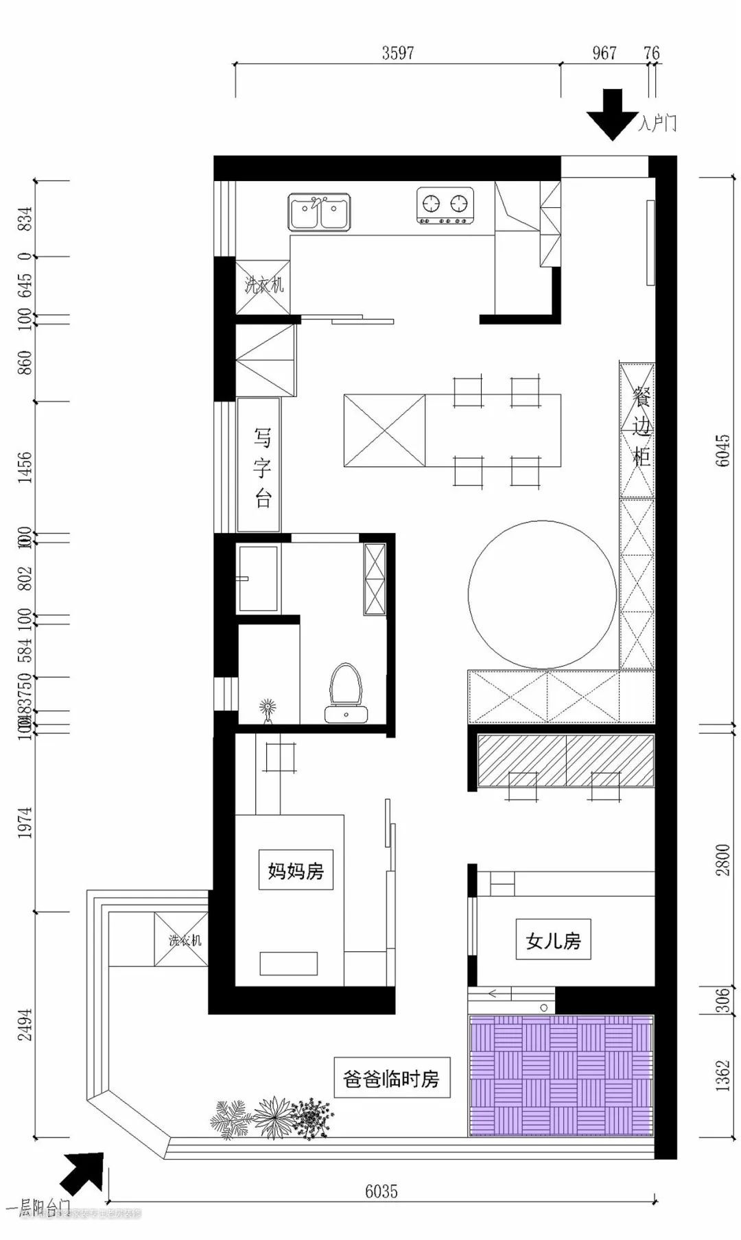
格局改造:
- 原次卧+过道,改为开放式客餐厅+阅读区
- 原主卧,改为妈妈房+孩子房
- 原阳台,改为爸爸的榻榻米+阳光房
- 洗手间,狭长型改为方形
具体更改,从以下对比图即可看出 ↓

客厅,餐厅,阅读区,玩耍区
经过设计师的妙手改造,新家呈现出完全不一样的风貌。每个空间似乎独立存在,又相互融为一体。
改造前,原房型以每个小空间为单位。改造后,呈现出客厅+餐厅+阅读区一体化大格局,空间更通透明亮,通风透气性更佳,满足业主全家人一起互动的心愿。

客餐厅与厨房之间,以黑色极窄的长虹双推拉移门区分。打开门,即是一个客餐厨一体化开间;关上门,也不影响采光和通透度。

定制的大餐桌,能容纳一家四口及亲朋好友来家聚餐,小边柜还有足够多的收纳格,可以放餐厅用品。倚墙而设的餐边柜同样满足了生活用品、餐饮用品等的收纳,美观又实用。


和餐边柜相邻的是书架及陈列柜,双饰面的材质做了跳色,增加了时尚感。这里可以摆装饰品、放书籍。铺上地毯,就是孩子玩耍的小天地,小朋友可以坐在地毯上看书、聊天,营造了快乐的居家氛围。
为了给孩子创造更好的学习环境,家里没有电视。客餐厅,变成了全家的活动中心,也是平日最热闹的地方。父母看着孩子在这里学习、玩耍,幸福感油然而生。


妈妈房
空间虽小,但是对生活不能将就。女主渴望一个私人独享区域,方便在家办公,也要在这安安静静练习书法。
面积有限,平开门难以打开,就设计了推拉门,长虹玻璃,保证了室内采光。书桌书架一体化设计,既满足功能需求,也更加节约空间。


儿童房
和妈妈房正对的是小朋友的房间,这两个区域都由原来的主卧改成。因为是双胞胎女儿,所以特别设计了上下铺,保证两个孩子独立的睡眠空间,彼此互不影响。


爸爸房,阳光房
爸爸房则由原房型中的阳台改成,因为空间受限,榻榻米就非常适合,贴合墙体周边量身定制,每一寸空间都不浪费,下面还有大大的储物箱,能放不少东西。做足收纳,让小家变得井井有条。
榻榻米的另一边就是阳台,也是阳光房,小朋友平日可以在这晒太阳、玩耍,多了一个娱乐小空间。
此外,拐角处还专门为孩子安装了儿童洗衣机,来自父母的爱,大人、小孩分开洗衣,更卫生。


厨房
厨房格局没有变,U字型橱柜,利用两个拐角打造收纳柜,地柜与吊柜设计,大大提升了物品存储能力。墙上定制挂钩,挂铲勺,丰富了墙面收纳。柜体下方嵌入了洗衣机,这样规划更加整体统一。吊柜下方特别安装了灯带,在操作台工作时不再受避光的困扰。石英石的台面,硬度高,不怕划伤,还能耐酸碱油污。


卫浴间
为了一家四口能更舒适的使用卫生间,格局也做了调整,由原来的狭长型改为方形。
卫浴间以米白色为主基调,清新洁净,无形中扩大了视觉空间。壁龛收纳更节约空间。镜面柜有双重功能,柜子内部可以放洗漱及日用品;镜面反射还会给人一种“空间变大了”的感觉。大大的台下盆,不仅使用方便,打理起来也更省事。


一个优秀的设计师,能让“小家变大家”,化腐朽为神奇。如果你也喜欢这套作品或有同样的装修需求,就快快报名预约设计师吧,为您量身定制装修方案,打造美好舒适的家。
