120㎡侘寂风:裸装生活 · 慢也是一门学问
成都东易日盛春熙店
2022-06-16

新婚夫妻,客餐厅的格局想要从竖厅变成横厅。客厅的电视需要100寸的投屏。格局的改变考验着设计师的规划能力。
侘寂风格装修目前来说还不算是大众化的设计风格,但是其裸色的设计配色和对于自然的遵从是越来越多的业主选择的原因。
楼盘名称:保利中央公园
案例面积:120㎡
案例户型:平层
装修风格:侘寂风格
装修模式:原创模式
装修预算:24W(基装+主材)
设 计 师:罗桢
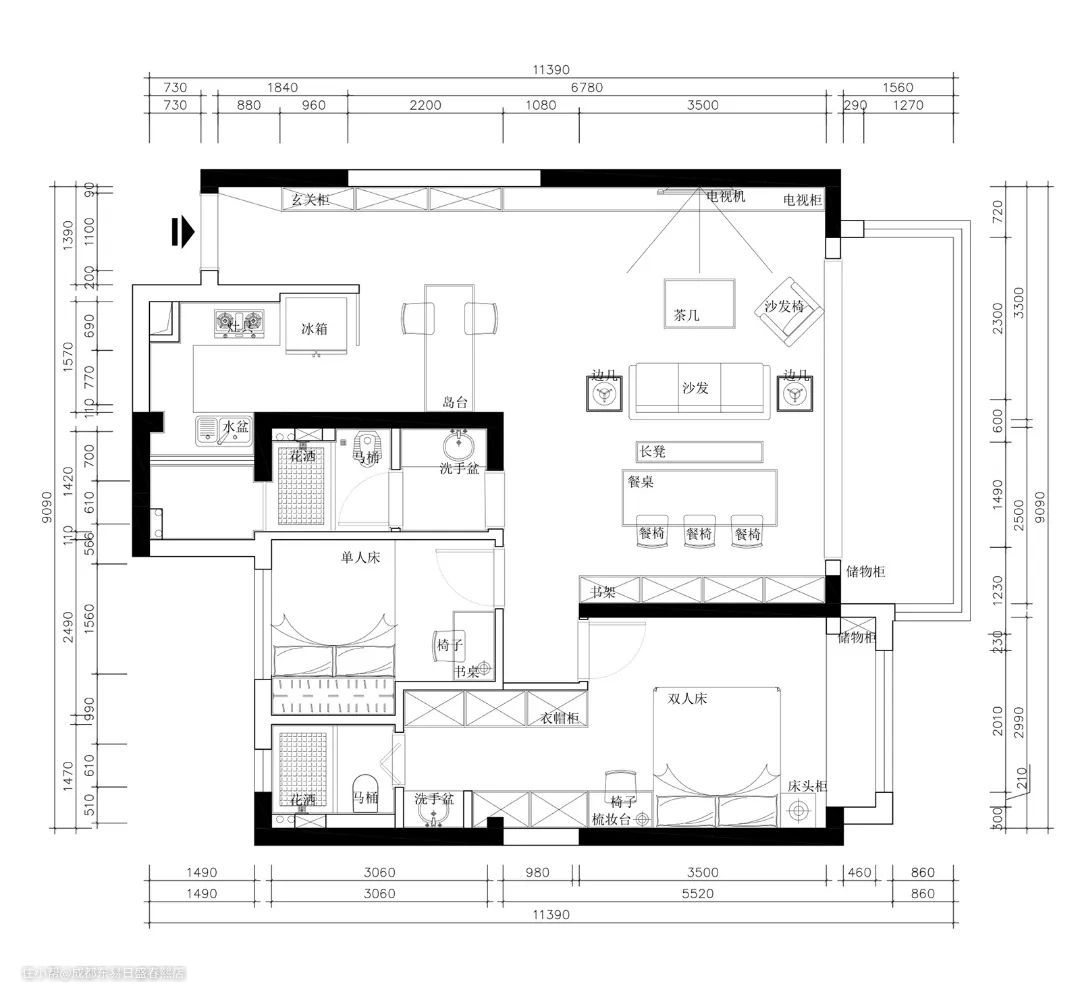
HOUSE TYPE PLANNING
户型规划

❍平面规划图
•
01
LIVING ROOM
客厅
-
圆润的线条配合矜持色调
粗狂的外表下一颗柔软细腻的心
随手拥住一个抱枕
天南地北、中外古今
皆可尽兴相谈
简洁的吊顶用直线勾勒出空间的维度
水泥灰的色泽更是打造出做旧的质感

•
02
GARAGE
客餐厅
-
充足的阳光透过薄纱衬出氛围
光芒强调严谨作派
原木包裹细腻皮质
展现大气风格
光影之间,徐徐绽放一片温柔的坚定

•
03
CHILDREN'S ROOM
儿童房
-
独立学习及活动兼顾的设计
为孩子未来的生活打下轻松坚实的基础
榻榻米的设计下层可以更好的储物
并且靠窗的设计可以更好的节约空间
结合了学习的书房设计
可以容纳两个人的办公和学习
不管是你和孩子的1V1辅导
夫妻两人的双人办公
都可以统统满足

•
04
TOILET
卫生间
-
色调干净明亮,布局使用高效使用
干湿分离设计保证科学分区
搭配灰色的瓷砖耐脏显高级
悬浮厕所和洗手池
让我们的打扫变得轻而易举
干净明亮
是检验一个卫生间合格的基本标准

•
05
BEDROOM
卧室
-
“梦里不知身是客,偏要等烟花三月”
简单舒适的格调营造了一个舒适的空间
米色的空间没有纯白色的刺眼
有着更为温润的环境氛围
加入了木作的门窗、床头柜
一股做旧的、自然的朴素味道

侘寂风
让你独享属于自己的安静时刻
心灵得到沉淀升华
让生活方式返璞归真
就是侘寂风的魅力
HOUSE TYPE
设计师介绍
