180平现代轻奢风,楼梯上展现视觉张力,黑色踢脚线还能这样用
华浔品味装饰集团
2022-06-29
这款案例是一个以现代轻奢风格为设计主线的典型案例,面积不大的建筑结构,但是在设计师手中展现出非常大气的效果。整体客厅公共活动区域采用浅灰色作为基础色调,再添加一些金属线条进行搭配,奠定时尚的设计基调,这种装饰方法值得广大业主借鉴使用。
基础信息
设计面积:180平方米
设计风格:现代轻奢风
所用材料:硬包、金属装饰条、玻璃柜门、轻奢挂画、大理石地砖等
01平面布置图
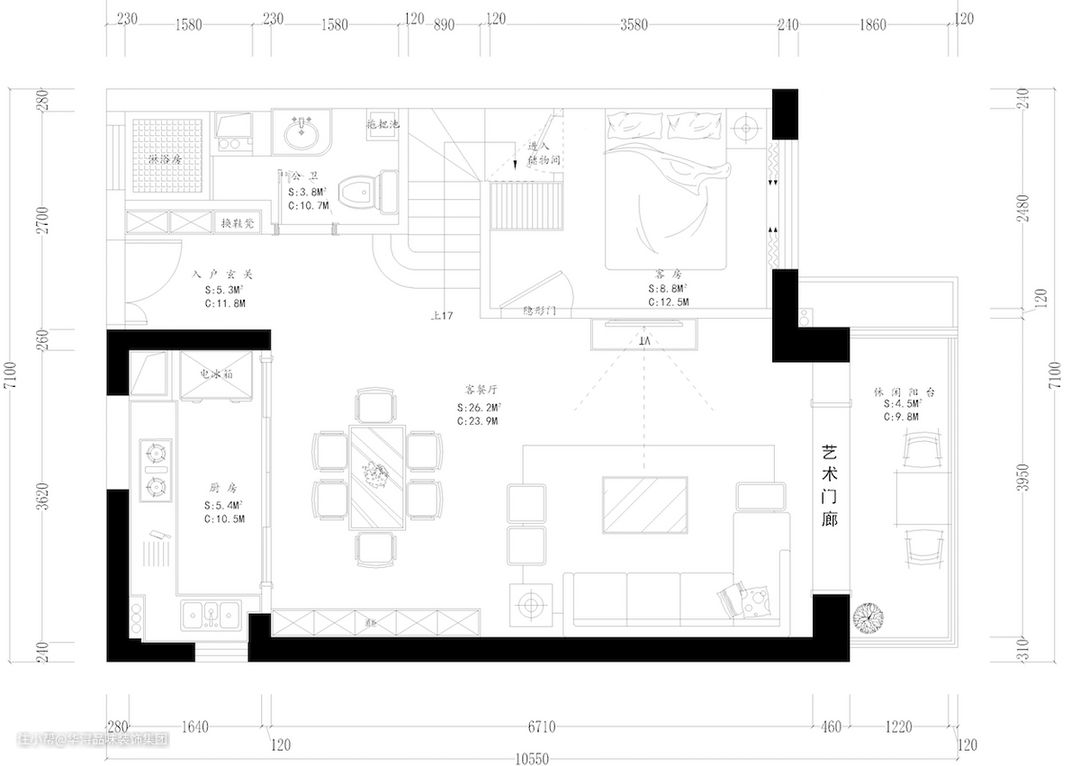
一层平面布置图

客餐厅两大功能区占据了房间内部较大的面积,从而使得公共活动区域增大,室内宽敞而又明亮。
向阳一侧打造成为休闲阳台,提供给孩子玩耍的地方,并且,在阳台与客厅的连接处,隔断被设计成为一处艺术门廊,为室内增添了浓厚的艺术气息。
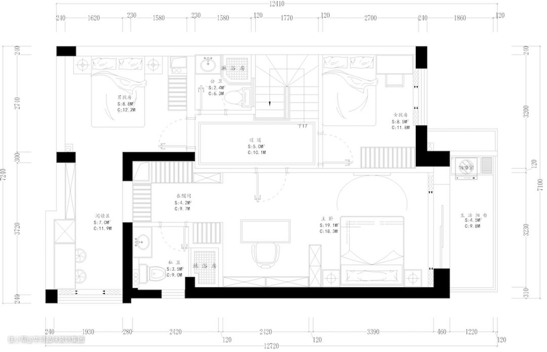
二层平面布置图

一楼作为休闲阳台,二楼的阳台则是作为生活阳台,二楼能够享受更好的日光,衣物晾晒更为方便。
男孩房内部配有一处阅读区,整体的面积还不是太小,这也是为了满足业主对于孩子读书学习的需求,毕竟一个好的阅读环境还是非常关键的。
02客厅

无主灯的客厅设计使得公共活动区域收获了非常通透的视觉效果。
浅灰色大理石地砖通铺而成的地砖看上去没有任何的瑕疵,“一泻千里”的大气感扑面而来,这可比带有波导线的装饰好看多了!
一款能够让人“头晕目眩”的现代轻奢装饰画尺寸刚刚要比背景墙上装饰条勾画出的区域稍大一些,呈现出一种视觉上的张力,仿佛呼之欲出一般。

磨砂灰色调的沙发看上去非常时尚,主沙发还在尺寸上做了加长,正好符合墙体的尺寸,两侧没有过多的空间,并且使沙发座区还得到加长,更显大气一些,这是非常值得借鉴的软装经验。

一款上下两层圆形大理石样式的茶几显得很是活泼,在全灰色的大环境下非常亮眼,而且与传统的样式相比去除了边边角角,更为圆润和活泼。
沙发背景墙采用灰色的墙布铺贴而成,在此基础上有增加了一些竖向的科技黑色调金属装饰条,将整面背景墙划分成一块又一块的区域,看起来更有条理。


为了增加一些不同的色彩元素,向阳阳台配备了水晶蓝和砖红色的窗帘,就像是天边的一抹余霞,色系非常好看。角落里的绿植也同时为室内增添着绿色和生机。
前后背景墙,在不同材质与线条的搭配组合中,传递着平衡互补的艺术美感。
03餐厅

客厅和餐厅两大功能区紧紧相连,并没有做明显的区分。上方的吊顶同时也是打造成为一体,使得空间更宽广。这种吊顶的手法也是小户型可以借鉴的方式。
餐厅靠墙一侧打造成为满墙的酒柜,酒柜全部采用大玻璃柜门,看上去样式新颖而又大气。
04楼梯

楼梯处的一大设计亮点便是使用了黑色的踢脚线将整个楼梯勾勒起来,踢脚线在设计师手里就像是画家手中的画笔一样,将向外微微延伸的张力表现出来,充当踏步的前奏,非常好看。
从楼上往下俯视,能够拥有非常好的视角,这得益于钢化玻璃楼梯扶手的打造。透明玻璃材质能够起到不阻挡视线的作用,并且看起来颜值高,减轻配重的同时还能保证安全性能,也是非常棒的设计。

洁白无瑕的墙壁中间悬挂了一幅“日出东方”的海景图。画面上采用几种不同的色调渲染出太阳初升的模样,将一种朝气蓬勃的力量传递到整体室内环境中来。
所以说,在室内装修设计上,有时候不能小觑装饰画的力量,一幅好的图画就能够大大提升装修效果的颜值和境界。
05主卧

主卧的设计则是回归到清清爽爽的主线上来。一款淡淡的蓝色色调作为床头背景墙的主色调,渲染出一种通透干爽的感觉。
床体和床头柜都是采用棕色的色调,这种色彩的选择能够增加一种沉稳感,有助于睡眠休息。