405㎡两层轻奢别墅:大套房设计,一眼就心动了!
佳鸿饰界装饰
2022-07-06

通过白灰色系给予空间理性简约的基调,精致的线条搭配上舒适的软装,开阔的空间为整个设计带来自由闲适的感觉;光影与质感的结合,每件物品在被光洒下的那一刻,就像加了柔光滤镜般的美,是独属于轻奢风的优雅设计感。
项目信息:
地址:塘厦自建别墅
风格:现代轻奢
户型:客餐厅+3套房+1书房
面积:405㎡

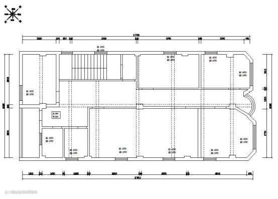
一楼原始结构图

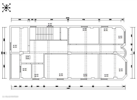
二楼原始结构图
该项目位于东莞塘厦,建筑面积405㎡,户型为3+1室两厅一厨设计。
主卧虽然面积比较大,但是与公共区域的动线连接不够明晰,空间有些浪费。紧邻主卧的房间面积较小,作为独立卧室的空间不足。
屋主需求:
1.目前常住三人,需要三个卧室+衣帽间+书房。
2.客餐厅空间希望开阔通透,阳台封窗+设计茶案区。
3.风格上整体简洁有层次感,不喜欢太过复杂。

一楼设计方案图

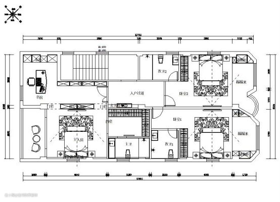
二楼设计方案图
改造重点:
1.保证客餐厅的开阔性,拆除客厅与阳台间的移门,与客厅打通,使得客厅整体更加开阔通透。
2.二楼设计3个套间加1个书房,其中书房与主卧相邻相通,每个卧室又自带卫生间,保证独立和私密性的同时使一家人的日常生活更加便利。
一楼效果:
入户

黑色线条理性而克制,大理石材热烈明艳,暖黄灯带温情柔和。这套别墅就像一个外表静默淡然,内里热情跳跃的人,既适应了现代都市的生活方式,又拥有优雅舒适的意蕴。
客餐厅


一层客厅大面积的无主灯设计尽显开阔,胡桃木、饰面板、木格栅和大理石的层叠沙发背景,营造出一种经典的轻奢格调。岁月更迭时光流连,在当下的生活中尽情享受。现代奶油风的布艺沙发和玻璃茶几,静静地守候着一家人欢乐的时光。

大理石的背景,电视以内嵌的形式放入,配以木饰面密拼和氛围条形灯,空间质感瞬间提升。

在布局上整个阳台则被打通,设计成为茶案区,让自然光线得以蔓延,也让空间更为通透。


餐厅采用了完全开放式的布局,设计师用白色、灰色、黑色和部分棕色系的点缀来呈现一种轻松的就餐氛围。方形独特纹路的餐桌既满足了就餐需求,又给家庭生活带来了一丝仪式感。

餐厅侧边的墙面,还做了一组几何柜体,用于摆放潮玩刚刚好,保持了整体的简洁性,也增加了空间的时尚与艺术感。
厨房

中西厨结合完美贴合空间主人爱好及生活习惯,一应俱全的电器让生活更加便利,也开启了智能家居的时代。同时,U型的操作台带来宽敞明快的空间感,家人之间的互动变得紧密。
阳台

设计师也在之中熟稔地规划空间配比,洗衣机烘干机叠放嵌入,以玄色的上下收纳柜,消弭量体压迫感,结合窗外,又是一幅迷人背墙框景。
公卫


干区,大理石纹路砖的运用使得空间充满了宁静感,深灰色大理石台面强化质感,配合简洁利落的大面积镜面,整体高级而内敛。
楼梯

循步向前,低奢质感恣意涌现。一楼通往二楼的通道以灰纹阶梯敞开大方气度,明亮光线映上胡桃木的扶手,轻盈多姿。
二楼效果:
过道

金属摆件以及香槟色饰面板等细节的融入,强化空间气质,突出轻奢时尚的质感。
在过道的两侧,设计师打造了书房和起居室,它不似客厅的庄重和仪式感,更多的是一种惬意的相处。
书房



一张双人长桌,连接半开放式的展示柜书柜,搭配两把轻奢蜗牛单人沙发椅,借着自然光与室内光线的交织,生出诸多的趣味。不论是工作、观影还是精致的护理,不需要刻意装饰,都能呈现出最简单的生活本质。
主卧


主卧运用更加简约的处理方式,以床为中心,左右各放置床头柜,干净利落地营造出舒适的休憩空间。拼色的床头背景墙中嵌入铜条,复古的装饰手法彰显了不俗的品味。

在整体白色的空间内,选择了木纹地板,定制柜体橙色玻璃柜面,活力热情,像极了女主人的生活态度。

大理石、木材、玻璃等材质的碰撞使空间更具层次感,在配色上则更添一份稳重。
次卧

次卧依旧做了套房设计,涵盖睡眠区、洗浴区、阅读区,各个区域相对独立但在设计上仍旧保持统一。


床头背景墙依旧层次感非常丰富,硬包、金属线条的搭配极具个性,拒绝雷同。奶咖色的家具与部分湖绿色的床头背景,营造出温暖、积极的氛围,同时运用橙色的床品去表达空间的温度。
女儿房



女儿房,以白色、粉色和木色为主,整体显得高级又有颜值。墙面利用简单的石膏线作装饰,既简约又精致;在其中通过壁灯和色块点缀,带来跃动而富有生命力的视觉焦点,展现出现代时尚感。
次卫


次卫采光极佳,设计师运用菱形玻璃门隔断也起到使空间通透的作用。延续整体的高级感,黑白灰的配色加以大理石纹路的穿插,打造轻奢高端的空间格调。