130m²轻奢新中式,从客厅美到卧室!
上海禧鑫装饰
2022-07-09
【导语】业主一家非常好客,经常约上三五朋友到家里玩,所以客餐厅的互动性非常重要,根据业主的喜好,设计师在轻奢之中还加了一丝中式的点缀。


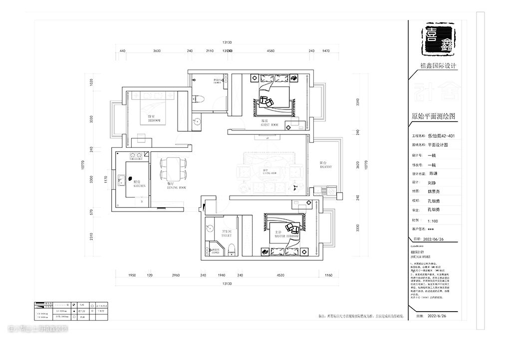
▲平面图


【客厅】客厅使用带着一丝中式风的浅灰色实木家具,整体都是浅色,白色的软包搭配绿棕色的跳色抱枕。电视背景墙选择护墙板和硬包,落地式的电视柜,方便收纳小物件。


【餐厅】餐厅与厨房相邻,双开移门的设计,简约通透,采光极佳。四人座的餐厅,在一侧放置了半高的餐边柜,优雅的摆件搭配六边古风挂画,顶上是圆形中式风吸顶灯。

【厨房】厨房作为家里的重要战场,必须拥有足够的阳光和空间,才能让女主人大显身手,延续客厅的色调,浅咖色的面板和白色的台面搭配,加入少许黑色作为点缀,干净利落。


【主卧】主卧是业主夫妻住的,浅灰色的床背非常饱满舒适,米黄色的窗帘精致优雅,金属边框的台灯,精致实用。连衣柜门都带了金属元素,房间更有轻奢质感。

【次卧】次卧是父母房,优雅的兰花是业主自己画的,简约的台灯带来温馨的灯光,顶天立地的衣柜根据老人家的习惯设计,柜体上方的空间用来收纳被子等大物件。

【过道】玄关在左侧,入户第一眼看到的是过道,男业主喜欢养鱼,避免入户看到太多门,过于杂乱,所以一个具有收纳功能的浴缸,既能满足爱好,又能具有装饰作用。