128㎡现代轻法惊喜上线,奶油风超仙气,90后高质量家居范本
圣都整装上海店
2022-07-10

不喜欢千篇一律的简约风,又拒绝过度的奢靡与冗杂,或许只有雅致尊贵的现代轻法,才能入得了这届年轻人的眼。


本案以奶油色系slay全场,多元化定制精致空间,让温柔缱绻与舒雅格调,纷至沓来。
户型丨4室2厅1厨2卫
面积丨128平方米
风格丨现代轻法
全包费用丨24.5万
房子承载了我们对生活的情感,才能成为舒适的家。我们给本案取名《天鹅湖》:在浪漫的星月夜下,天鹅在波光粼粼的湖面上翩翩起舞。希望能给予温柔恬静、梦幻唯美的家居氛围。


本案作为一家三口的住处,在设计时需要考虑到每一位家庭成员的生活习惯。女主人是一位设计师,品位不凡,对于家的模样,希望拥有现代法式的高级感和古典美。
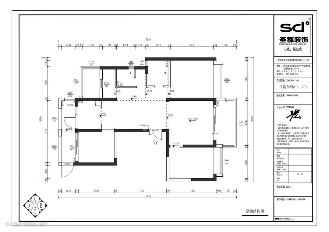
户型图

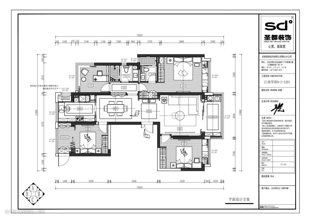
设计图

设计亮点↓↓↓
①入户处设计了玄关端景墙,避免了开门正对卫生间的尴尬。
②次卧的房门设计成隐形门,与客厅的电视背景墙融为一体,浑然天成。
③LDKB的开放式布局既能保证空间的舒朗开阔,又实现了互动型家居氛围。
玄关

推开门,入目是一个创意端景,白雪公主水晶石背景静默如水,定制的水晶小提琴摆件优雅淡然,共同赋予归家的人儿静谧安然的心境,一秒便能卸下在外一天的疲累。
客厅

步入客厅,就被扑面而来的古典雅韵与浪漫气息所折服,乍见欢喜,久处亦怦然。

磨砂真皮沙发与毛绒单人椅隐匿着一股尊贵与奢华,营造的法式浪漫在不经意间流淌;水晶吊灯梦幻唯美,摇曳出温润如琥珀般的蜜色光华;精致小巧的日照灯划出一道美丽的弧,投射下暖橘的光,让绿植愈加迸发出盎然生机。


都说电视背景墙是客厅的门面担当,此言果然不虚:以大理石为底,嵌入电视,打造轻薄视觉效果;靠近阳台一侧预设了雾化壁炉,既能美化空间,又能起到加湿的作用;次卧的房门与背景墙融为一体,更显简约美。
餐厅

餐厅承接了整体典雅、矜贵的风格,呈现出一个童话般纯净的雪域王国。大理石餐桌自带贵气,上悬一簇金叶灯,加强了空间的轻奢属性;长虹玻璃花瓶空灵澄澈,放置几枝兰叶,流泻出翩然的仙气。

定制餐边柜以双面玻璃为底,空灵澄澈,又镶嵌了金属框架,强调了质感与时尚,不仅能起到储藏和装饰的作用,还是功能区的软隔断,颜值与功能并存。
厨房

人间烟火气,最抚凡人心。白色定制橱柜收纳力满满,搭配雅黑家电,配色简洁而高级,实现功能与颜值的双重升级。
主卧


平和温润的空间,用色彩与材质描摹雍容气度,于静默空间里彰显不凡品位。

奶油色系里交织着温柔的天鹅绒床品,简练线条的护墙板上镶嵌着典雅的壁灯,乳白衣柜上点缀着精致的蝴蝶拉手,无一不显示了艺术与生活的高度融合。
书房

书房临窗而设,光线优越;亚克力书架极具设计感,青葱绿的颜色又活跃了空间氛围;妈妈的怀抱椅坐感舒适,简洁轻盈样式迸发出独特的时尚感与精致感。