44㎡一居改造,这样设计后,房屋变大了!
四川惠天下装饰
2022-07-10
方案说明:95后房主购买了44平方米的房子。 为了让房主在紧凑的空间更加轻松的活动,设计师提出了一个极好的方案
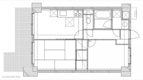
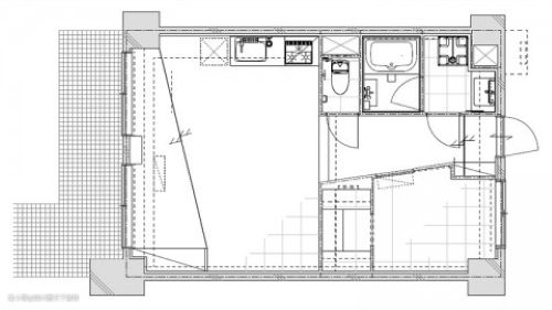
户型图

装修前户型图

装修后户型图
客厅

这是一个将客厅分隔成“对角线”的设计,家居也按照一定位置进行摆放,视角上显得空间更大,空间利用率更高。整体采用黑、灰色色调,去掉复杂的电视墙电视柜,用一个的“木架”代替。方便又美观

走廊和吧台颜色统一,展现整体性。吧台上安装厨灶,而且独立于厨房之外,方便随时加热食品

沙发倾斜的放置在规划的线条上,采用无主灯设计,照亮更多空间。感官上好像房间变大了,也显出主人独特的品味

这个地方规划了一个办公区域,摆上办公桌、房主可在此享受自己的安静阅读时光

走廊天花板设计的比客厅低一些,在天花板上方安装灯具,从玄关走向客厅越来越明亮,视野慢慢开阔,美观大方

玄关处设计了一个凹槽,定制鞋柜,台面上面可以放置房主喜爱的室内配件,钥匙等物件