深圳|77㎡的浪漫复式家,简约风打造极品颜值
金地新家整装总部
2022-07-15


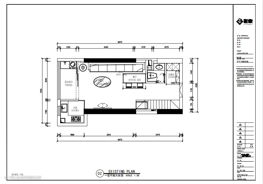
复式房型在设计初期,更多考虑的是空间整体的协调性。楼梯的处理方式和空间利用很重要。比如,一楼没有独立的客餐厅,就利用整体背景墙造型做错位区分。
小区:深圳 博林天瑞
户型:2室2厅1厨2卫
风格:现代简约
面积:77平


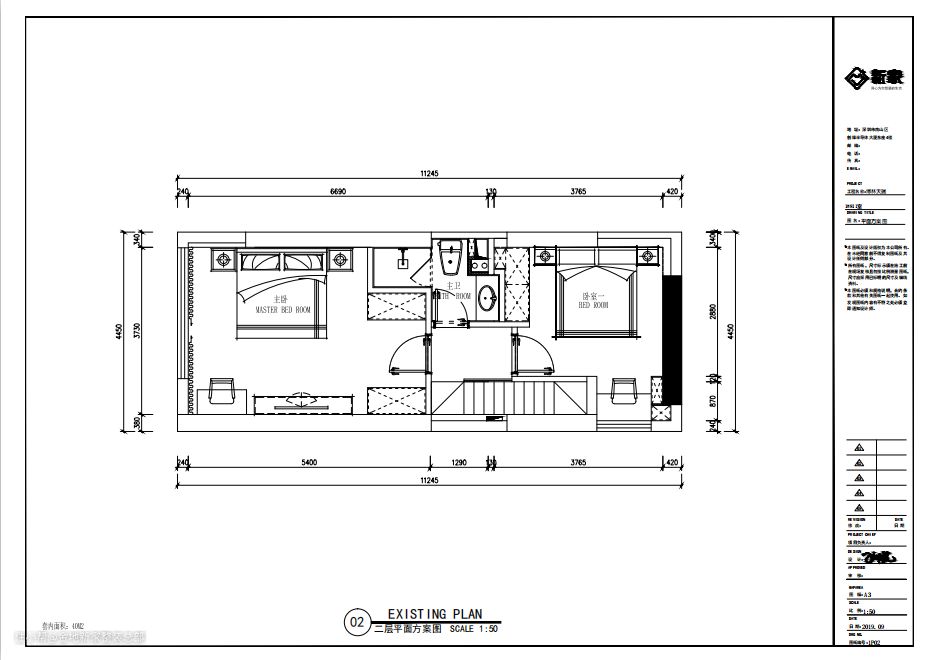
平面布置图
客厅

房子的主色调以浅色为主,原木色与大理石色系背景墙,错位区分空间区域,协调整体空间。


素色沙发、双色茶几,塑造平和淡雅空间。地面铺设柔光砖,温馨防滑更增添整体空间质感。
厨房&阳台

厨房门采用L型透明玻璃门,弱化原户型外机位置造成的抑压感。橱柜与洗碗机最大化利用空间,花点时间在这儿,做饭也会变得轻松有趣。

玄关&楼梯


玄关设立于门右方,明亮白色瞬间减少局促感,也给过道留出更多自由空间。
充分利用复式户型的楼梯空间,整体储物柜预留冰箱位置,木色柜体与同色系冰箱完美融合。低调中凸显细节用心。

楼梯位置偏窄,踏步做加宽处理,增加上下通行的空间,让楼梯行走更宽敞舒适。透明玻璃扶栏,在保证安全的前提下,也让空间更加通透。
卧室

07

莫兰迪色系背景墙,打破过于寂静的氛围,质感中带着丝丝神秘,提升着空间的轻奢感受。

独特造型灯饰,给沉稳优雅的空间带来年轻的质感,增添别样情怀。
卫生间


卫生间
墙面铺贴浅色瓷砖,让小空间卫生间有一种柔和的温暖感。简单,随性,自在,没有什么比这种状态更让人放松。