现代风格的二层别墅,厨房的设计有亮点
临沂华浔品味装饰
2022-07-14
本期将给大家带来的是一套现代风格的二层别墅装修案例。业主是一位时尚界的成功人士,对生活品质有很高的追求。为了给家人和自己提供更好的居住环境,特意在豪宅区购买了这套二层的别墅作为一家人的新家。
业主喜欢自然的感觉,这套二层别墅有大量的室外空间,可以做成私人花园,这也是业主选择这套别墅的重要原因。另外,业主有很深的时尚造诣,对现代风格推崇备至,指定我们用现代风格对他的新家进行装修。对于这套别墅,业主希望我们在做出现代感的同时,更要营造出自然温馨的氛围,打造出一个既现代又温馨的居住空间。
基本信息
建筑形式:别墅
装修风格:现代风格
在设计工作开始之前的沟通环节中,业主对我们提出了很多具体的要求,我们将这些要求进行整理,罗列在下方,作为我们设计工作的指导。
1.家里有老人和孩子,分别给老人和孩子预留一间卧室。
2.偶尔会来客人,需要一间客房。
3.一定要设计一间衣帽间。
4.室外空间设计成花园,作为一家人的休闲空间。
5.如果还有空间的话,再设计一间书房。
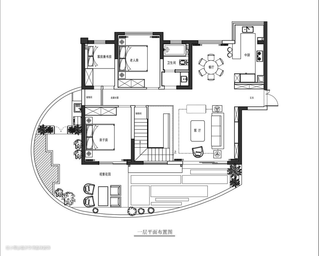
01户型图


我们在经过实地测量,获得了房屋最精确的户型图之后,对房屋的平面布局进行了设计。
1.一层、二层的室外空间布置成观景花园,在花园中放置桌椅,作为室外的休闲区域。
2.老人上了年纪,行动不便,因此将老人房放在一层,免去了老人上下楼梯的麻烦。
3.二层的室内空间大部分划为业主的卧室,在右上角的空间单独设计一整个衣帽间,满足业主的搭配需求。
4在平面布置大致完成之后,仅有一层最靠里面的小空间剩余,在这里布置书桌和折叠床,平时折叠床收起,可以当书房使用。来客人时放下折叠床,当客房使用。
02客厅

整个客厅使用白色墙体和亮面地砖做搭配,简洁时尚现代感强烈。电视背景墙使用一整块深色花纹大理石制成,这样大体量的大理石非常有气势,放在客厅中,凸显了别墅的大宅气质。

客厅使用落地窗,室内采光充足,给人豁达明亮的感觉。落地窗选用波纹玻璃,透光的同时,还能阻挡视线,保护隐私,让整个房间的私密性更好。长条状沙发造型简洁,材质松软,使用了大量的现代工艺,给客厅带来强烈的现代感。在沙发后面设计有红酒柜,暗棕色色调稳重大气,增加了空间重量感的同时利用红酒给客厅空间引入了浪漫元素。
03餐厅

餐厅沿用了客厅深棕色元素,并使用这种元素在墙壁上做出条纹护墙板造型,统一了整个房间的风格。在竖条灯带的烘托下,现代气息强烈。同时凹凸有致的造型增强了餐厅空间的层次感。在家具的选择上,无论是石材与金属拼接的餐桌还是简洁造型的餐椅,无不透露出现代风格特点。另外,选用了几把带有橘红色椅背的餐椅,让餐厅看上去更加温暖,更符合用餐环境的要求。

在餐厅背景墙上悬挂了现代风格特别强烈的挂画,造型十分吸睛,色彩由冷到暖,冲击力极强。挂画内容、灯带、深棕色护墙板,这些元素造型都十分规律,而中间的大理石花纹,自然洒脱无拘无束,更有动态美,这样动静结合,给餐厅乃至整个房屋增加了极强的艺术氛围。
04主卧

主卧空间作为业主的睡眠空间,在沿用深棕色条纹元素,保证了空间风格统一的基础上,更注重营造温暖感,保证业主的睡眠质量。地面使用木质地板,给卧室定下温和自然的空间基调。毛茸茸的地毯,脚感十分舒适,能在触觉上给人更加放松的感受。在床品的选择上,使用了纯棉材质的床单被罩,和皮肤接触时,更加温暖亲肤,能十分有效的提高业主的睡眠质量。
05女儿房

业主的女儿年龄很小,因此在设计这间房间时必须要照顾到儿童的心理喜好。在征得业主同意之后,女儿房的设计可以不沿用房屋的主体风格。女儿房设计色彩更加活泼,床头背景墙使用了奶黄色,色彩明亮艳丽,给人阳光的感觉。背景墙正中间安装了小房子造型的置物架,并在置物架和房间的其他位置装饰了很多的卡通玩偶,给孩子营造出一个卡通的童话世界。
06楼梯

在一层和二层之间的楼梯空间使用了白墙和亮面地砖做搭配,简单干净,使这个空间在视觉上更完整。正对楼梯的墙壁,使用圆环造型的灯带和球状饰品打造出了一个简洁又不缺乏现代艺术氛围的背景墙,背景墙正下方的桌子上摆放现代艺术饰品,这些做法既营造了房屋的艺术氛围,同时又强化了空间的现代气息。
07厨房

厨房使用了开放式的手法进行设计,使用从厨房延伸出的一段吧台作为厨房和餐厅的分界线。最外面使用了棕色条纹造型这一设计元素,将厨房空间融入整体空间之中。在配色方面,选用深棕色地柜门和白色吊柜门搭配,显得厨房沉稳大气。侧面高柜区留出了一段空间,将冰箱包裹其中,使得厨房在视觉上更为规整。
结语
现代风格是最有时尚感现代感的一种风格,所以受到了很多时尚人士的喜爱。如果您也正在装修,希望把自己的新家打造成时尚的潮流空间,那么我建议您一定要试一试现代风格的装修设计,相信它一定会给您想要的效果。