户型改造 · 异形空间这样设计更实用!
广州九艺装饰
2022-07-22
方案说明
这套165平的三房二厅,除了两个卧室格局较为方正,客餐厅和其它空间都有不规则的边角。
业主希望设计师能将这个异形户型改造得端正些,同时调整占地过多的入户空间,提高空间的利用率。
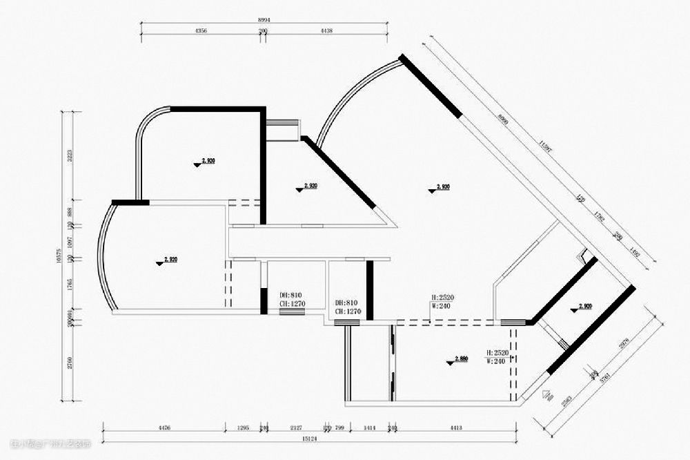
户型图

(原始建筑结构图)

- 设计师将整个空间重新规划,按照入户驻足、客餐厅交流、多功能洗晒区、卧室休息的秩序,依次对空间进行规整的块状划分。
- 拐角形入户空间的一部分和厨房的尖角部分整合成长方形入户玄关,另一部分做成多功能区隐藏在海鱼缸后;
- 储藏室扩大后成为方正的封闭式中厨;
- 厨房并入餐厅做成了开放式西厨。
- 小卧室用衣柜和储藏室修正了尖锐的屋角。
客厅

因为业主一家特别喜欢深海鱼,设计师将4米多的深海鱼缸设置在客餐厅中间区域。

室内空间以淡雅的黑白灰作为背景色,沉稳的暖褐色家具作为主色。



墙面背景用深浅瓷砖做对称处理,细金属装饰条增强材质质感。

墙面细部以玫瑰金不锈钢勾边修饰体现精致感。

家具选用真皮、石材和玻璃等高光材质,打造华丽和轻奢感觉。

利用隔断和窥景手法,让漂亮的鱼缸成为玄关、多功能房、客厅和餐厅都可以欣赏的公共区美景。

沙发背景墙和电视背墙采用同样材料砖面。

业主最爱的4米长的海鱼缸,包括珊瑚、水族箱、生物过滤系统、底砂及其过滤、照明等设备,因为放满水时重量超重,在动工前对地面重新做了力学加固。

鱼缸的上下设备部分用浅色柜体围蔽,透过鱼缸清浅的水色,能看到后面的多功能房。

天花做了分区,地面用两圈波打线来强化地面,增加层次感。

转角鱼缸成为客餐厅共享的美景。
餐厅

玻璃餐桌配满恒温酒柜,海鱼缸成为就餐美食,营造美味空间。

餐厅使用了圆顶造型,和圆形餐桌对应。

餐桌的一侧的高柜既是储藏柜,也是非常方便的水吧。
玄关

改造后,入门处呈出了一个大气方正的独立门厅,左边是多功能区,右边是客厅,黑色线条勾勒出各区域边界。

入户玄关转入客厅,墙面除了装饰画,设计师巧妙在墙体透出些海鱼缸的景色。

玄关处的三角区域被处理成平整的收纳柜。
书房

多功能房是业主最喜欢的地方,榻榻米一侧靠着海鱼缸,休息的时候可以安静地欣赏海鱼。

多功能房书桌加榻榻米的配置,在学习工作之余还可以小憩。

夹丝玻璃推拉门,形成半通透空间,增加自然采光。
功能区

通往卧室的走廊,设置了孔雀装饰画。

走廊与客厅的夹角被设成置壁龛柜。
卫生间

卫生间采用沉稳低调的灰色墙砖,搭配白色洁具,营造干净整洁印象。
卧室

主卧使用了素灰色加几何条纹的墙纸,既文雅有富于层次。

客卧采用深灰色调,营造沉静的睡眠区域。
厨房

直线形的厨房,白加灰的色调,干净明亮。