“性冷淡风”三世同堂之家,也可以极简不寡!
致美优家全案家具软装
2022-08-04

家是安全感的来源,也是自由的表达。有些人喜欢家的[满],热衷填充与装点;而有的人喜欢给家做减法,用最简单的线条描勒家的造型,这也是一种自由的表达。
比如本期来自富国上邦的一套户型,三世同堂的房型结构,它不似人们习惯印象中的烟火气模样,反而格外的极简,颇有几分“性冷淡”风,而当深入去解析它的设计背景时,便觉一切冷淡立马豁然开朗,有了“乍然生动”的意趣。

Analysis
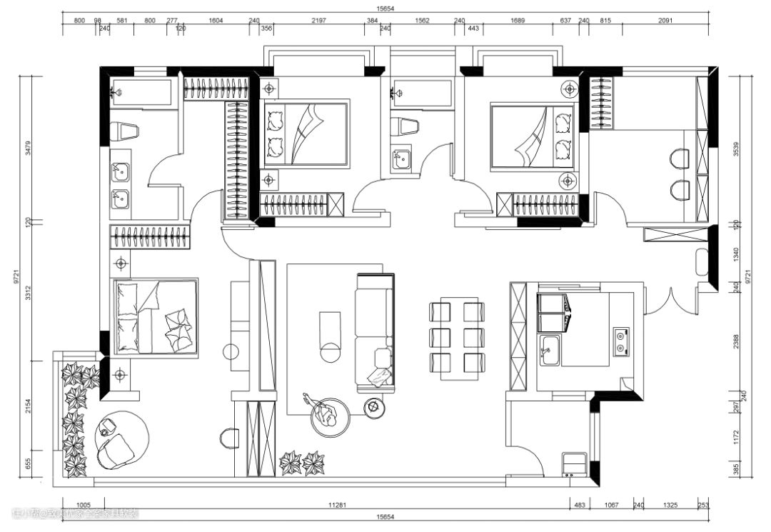
「户型分析」
楼盘名称:富国上邦
房屋面积:146m²
房屋结构:3室2厅2卫
房屋类型:精装房
装修类型:软装设计+柜体定制+硬装局改

#优势&劣势
1.整体户型的结构方正,动线合理,但客厅开间偏窄
2.独立入户门厅设计,生活居住有仪式感
3.阳台尺寸大,视线观景效果好,但与生活阳台同空间,因此功能规划不能施展,影响三世同堂的居住实用性。

#拆改方案
1.改掉客厅原本的回字形吊顶,以悬浮吊顶取代,视觉上扩显客厅空间的开阔
2.拆除阳台推拉门,阳台与生活阳台之间增加玻璃门和收纳柜做分隔,实现空间功能区划分
3.主卧背景墙更换,全屋风格统一和谐
Demand
「设计背景」
本案业主孙先生是一位律师,爱人从事于科技领域,夫妻俩都有着冷静、理性的相同气质,因此对房屋设计的爱好一致,偏爱于极简风。
“我们喜欢极简设计,就是因为它的留白,留白很容易创造各种可能性,而且极简也是最包容的风格,可以让家居有很多发挥空间,家的定义其实就该这样,越简单,越有舒展的自由。”孙先生如是说。
由于之后会接老人和小孩来蓉同住,夫妻二人希望本次改造可以在延展极简风格的同时,为家融入一些温暖的元素,同时家的收纳需求、舒适性也是两人着重考虑的点。基于此,设计师从家的美观性与实用性方向出发,遵循极简主题,造化为工,赋予这套三世同堂之家新的生命力。
Design
「设计方案」

方圆空间,极简不寡,自有暖意
作为三世同堂之家,客厅是家人进行情感交流的最重要纽带,也是居住者得以放松身心的一个空间,因此,它承载着舒适与温情的定义。
原始户型由于阳台推拉门和回字形吊顶的设计,导致整体空间在视觉上显得十分逼仄,故此设计师大刀阔斧,拆除原有吊顶,以悬浮吊顶取代,其线条走势更为简洁流利,让天花板区域更为延长开阔。同时拆除阳台推拉门,客厅连通阳台,光线便再毫无顾忌撒进客厅,整个空间更有明朗之意。


△原始客厅vs改造后客厅
视觉氛围上,为营造极简的风格意境,客厅环境不做过多装饰点缀,只选用黑灰色系、线条感极强的地垫去呼应大理石地板,避免后者喧宾夺主,更展示空间的线条美学。

米色系沙发,简约雅致,给人以温暖柔软之意。圆形大理石茶几,巧妙融入空间,恰好中和户型的方正结构带来的硬朗感,方圆相得益彰。
同时,孙先生家是典型的客餐厅一体,左右格局展开,区域分明。

餐厅虽空间小,但处处皆显设计,白色大理石桌面,下方是折叠式透明玻璃桌架,极具格调,同时选用绿色混搭菱格的餐椅,作为跳色中和整个客餐厅的简白,令左右两个空间极简而不寡,层次感十足。
微小区域,细节见设计,家居魅力展露无遗。


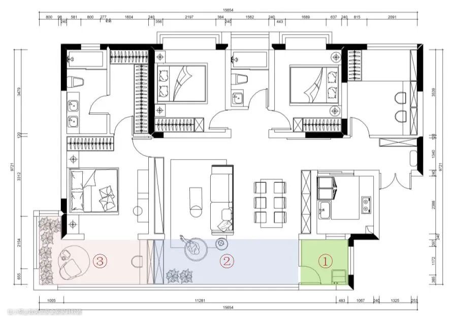
阳台天地,一分为三,空间分明
一个人的天地,可以遵循散漫之意,设计只随心意,而三世同堂之家,除了美观,实用性更占据重要地位。
孙先生的家有一个超大阳台,原本利好,但由于空间规划不合理,阳台与生活阳台成一体,反而导致空间浪费,大大降低居家的实用性。

△设计师改造阳台方案
设计师最初拆除阳台推拉门后,一并增加隐形玻璃门和样板,将阳台一一分为三,厨房、客厅、主卧各占一席之地,规划分明。
其中,左边阳台部分纳入厨房领域,将作为生活晾晒区,放置洗衣机、烘干机等家用电器;

中间阳台纳入客餐厅,是为休闲放松的角落,若要放置其他陈列亦有空间。

剩下的阳台部分则纳入旁边主卧,并用白色收纳柜巧妙做隔离,完美提升家的收纳功能。整个家的功能区域划分得当,空间利用可谓满分。
美学主卧,升级套房,舒心睡眠
除了客厅,孙先生家的主卧是改动最大的区域。
第一处,便是规划进主卧的阳台空间,不仅保证主卧的私密性,也为卧室引入更开阔的采光,同时将阳台空间设计为独立书房,打造舒适的阅读工作区域,主卧成功升级为衣帽间+书房的套房。


设计师还利用隔离墙面打造墙体悬空收纳柜,一面做家居收纳,一面做书架,利用率百分百。并将原本卧室的衣柜移至衣帽间,留下更多空间给睡眠区域。
回归主卧中心,为营造安静舒适的睡眠环境,便整体更换背景墙,选用低饱和度的绿色,与白色相间,层次感分明。

与客厅多采用直线条设计不同,主卧更强调柔软舒适,米色系的窗帘简约宜人,夜晚更显温馨视感,软装上也多选用造型圆润别致的单品。


比如曲线不规则画面的墙画、如夜空星辰的白色镀金吊灯、蓝白叠加的双圆形台灯,以及浅色波点地毯等,每个单品组合一起,完美复刻出小复古风卧室。
夜幕降临,暖辉撒下,氛围直接拉满。
家本来就是千变万化,有千万种模样。但唯一不变的,是人们心中对于它的情感寄托与居住思考。
再是极简的家,也会因为屋主赋予它非凡的意义,而变得生动起来,绿植亦说满故事。

Designer
「设计,让家充满巧思」
全案规划师:张梓夏

“理性的思维,做感性的设计”
ꔷ 擅长风格:极简、混搭、意式
ꔷ 设计案例:蔚蓝卡地亚、人居九林语、西派澜岸、世茂城
INTERACTIVE
留|言|互|动
你还想看哪个楼盘的设计方案?
欢迎下方留言分享你的想法~