东湖雅居116平欧式风格案例
大成致美装饰
2022-08-17
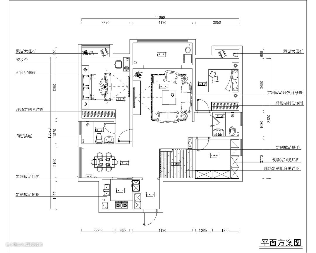
小区;东湖雅居 户型116㎡ 装修预算:半包7万,主材加软装25万
设计风格:欧式

客户需求:三口之家,上班族,女儿上学,温馨的一家三口,不求太过奢华,不需要太大的改动,常规布局,温馨即可



为了打造符合业主的需求,从整体到布局,功能性强并且造型优美,不论是空间结构还是家居配饰的运用,都是精益求精


大面积使用浅咖素花色强制配以浅色家具,摆上样式雅致的摆件,又能展示整体唯美精致
大成致美装饰
2022-08-17
小区;东湖雅居 户型116㎡ 装修预算:半包7万,主材加软装25万
设计风格:欧式

客户需求:三口之家,上班族,女儿上学,温馨的一家三口,不求太过奢华,不需要太大的改动,常规布局,温馨即可



为了打造符合业主的需求,从整体到布局,功能性强并且造型优美,不论是空间结构还是家居配饰的运用,都是精益求精


大面积使用浅咖素花色强制配以浅色家具,摆上样式雅致的摆件,又能展示整体唯美精致