一人居暗黑风,47㎡的家居然也能在餐厅加个中岛台!
上海东易日盛装饰
2022-08-23
项目地址:中建锦绣天地
案例面积:47㎡
案例风格:暗黑系
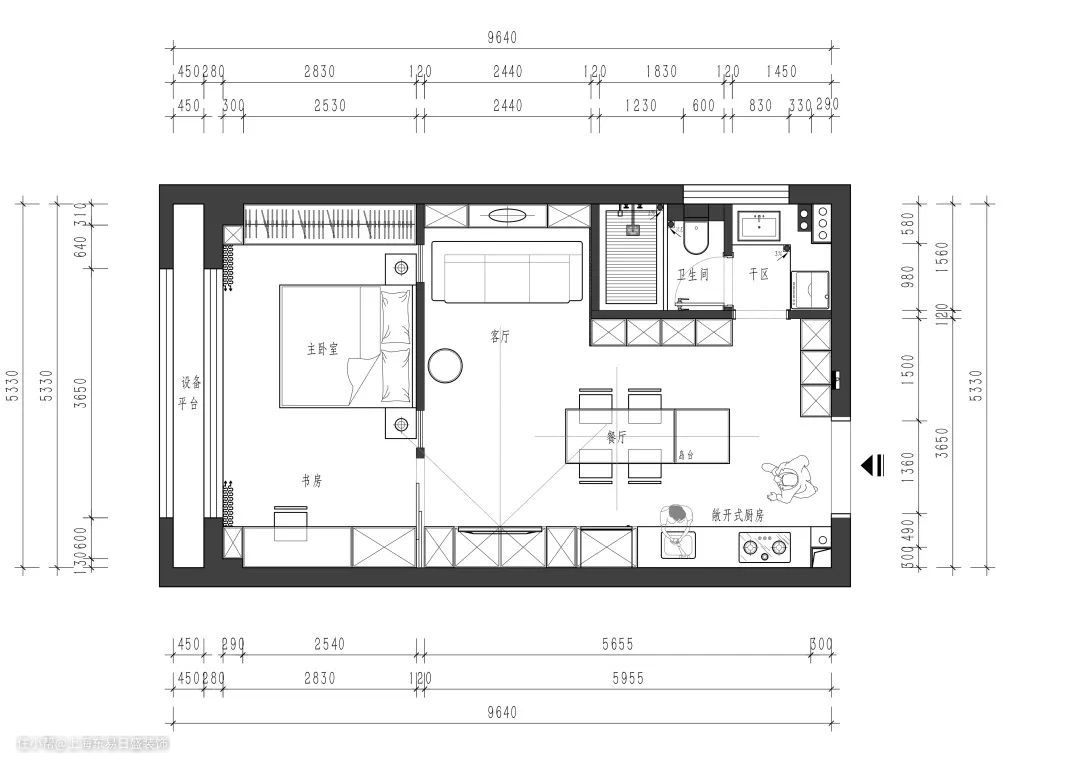
- 平面布局图

本案例是47㎡的空间,平时只有男业主一人居住,结合业主的生活习惯,打造了一个专属的生活空间:
1、全开放式客餐厅厨,最大化延展视觉空间,保证动线舒适流畅;
2.卫生间做干湿分离,洗手台外置,提升空间利用率;
3.卧室和客厅使用推拉门,搭配百叶窗,保证采光和通风;
4.全屋做了多个储物柜子,电视背景墙、餐厅侧边柜、侧玄关柜都适用隐藏式柜体处理,增加储物空间。
- 餐厅

进门就是餐厨空间,一字型的开放式厨房和操作台,搭配一体化餐桌和岛台,下厨用餐动线舒适流畅。进门右手边做了侧玄关柜的处理,中间和底部掏空做了添加内嵌式灯带,兼具美观与实用功能。

餐厅选用了精致的枝形灯,雅致的形状搭配黑色透光玻璃,让整个空间呈现出独到的质感和神秘感。业主偶尔会邀请好友来家做客,所以特别布置了四人座的餐桌,方便随时举行家庭聚会。

- 客厅

客厅和餐厅做了开放式的空间布局,动线更加舒适流畅。沙发背景墙做了通顶橱柜的处理,方便也业主放置喜欢的书籍和小摆件,搭配内嵌式灯带,视觉上更加通透大气。

- 卧室

主卧与客厅之间使用了吊轨门,平时敞开卧室门,能够保证客餐厅最大限度的采光。床头背景墙使用了质感极强的黑色木材,既能够凸显业主独到的生活调性,也完全不失材料上的温润雅致。

侧墙做了一条化书柜,悬挂式的写字台搭配开放式隔板,保证了舒适的办公/阅读体验。整体橱柜采用了开放式和隐藏式柜体相结合的设计,让业主的小摆件、书籍以及衣服都能够统统收纳起来。

另一侧墙面也做了整体衣柜,黑色的材质搭配透光玻璃和利落的线性灯带,视觉上更加简洁大气。上层储物空间,中间做挂衣区,随时取放衣服都非常方便。
