玄关设计|颜值与功能并存,还能解决消毒问题,90%家庭适用
汪工YGF設計
2022-08-26

玄关起源
玄关,起源于中国,旧时又称门厅,指建筑物入门处到正厅之间的一段转折空间。
在中国传统的建筑中,玄关有着悠久的历史,其前身为影壁,是院内与院外的隔断,可防煞、防泄、遮掩以及美化住宅的作用。
发展至今,影壁演变成了如今的玄关,它是客厅与出、入口处的缓冲地带,是我们外出购物、下班回家,脱衣换鞋放包包钥匙等的集纳地,也是居家给人"第一印象"的制造点。

在现代的玄关中,设计师会把收纳储物功能融入到设计中,追求功能性和美观度并重。但经过这次疫情,我们不能只注重玄关的收纳储物功能,还要考虑到消毒功能。
在空间允许的条件下,玄关处设洗手台,放消毒物品,方便回家后第一时间进行消毒工作,有效防止病毒进入室内。

根据户型的不同,玄关的设计也各有不同,一起来看看。
1.走廊型玄关
Corridor Type Entrance
进门处有一段小走廊,这是常见的户型,也是所谓的走廊型玄关。
这种玄关的设计思路很简单,就是根据空间大小,充分利用两侧或单侧。

走廊式玄关通常会在单侧/两侧设置组合玄关柜,充分利用入口处的空间,采用一柜到顶,最大化玄关收纳储物功能。

如果空间允许,可以采用储藏间结合消毒区的方式,在过道两侧设计,一边是储物间,一边是消毒区,两者互不干扰。回家脱衣、换鞋、放包、消毒,一步到位。

2.拐角型玄关
Corner Entryway
进门就是拐角,这类型玄关在设计上可以定制多功能L型柜子,把侧墙的空间利用起来,扩充收纳机能,柜子可以内嵌、通顶,尽可能榨干每一平米,注意不要影响室内采光。

3.隔断型玄关
Partition Type Entrance
遇到没有玄关的户型,进门正对客餐厅或厨房,可以自己打造玄关。

比如在入户区域做一个隔断,选用镂空或屏风、格栅、置物架等做半隔断,若隐若现的状态,既能保护居住者的隐私,又不影响空间采光。

亦或是在入门正对面设置隔断,入门另一侧,垂直于门的位置打造通顶柜、矮柜等,增加收纳空间。
4.双动线玄关
Double Moving Line Entrance
双动线玄关的设计主要是为了将不同使用对象进行动线区分,并设置不同的功能空间。

一条动线由玄关进入客厅/起居室,连通室内,为客用动线;另一条由玄关进入储藏室/厨房/家政间,连通收纳和烹饪/清洁区域,为家用动线。

双动线的设计能够适配不同的生活场景,比如待客、买菜购物、遛狗清洁等,动线清晰,互不打扰,不会手忙脚乱,适合大户型,比如别墅、大平层。
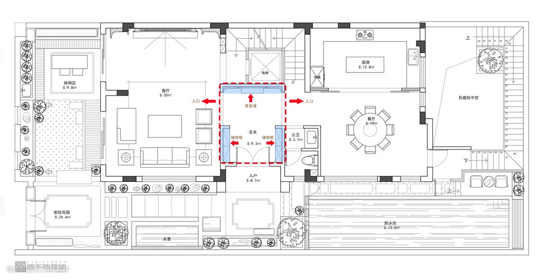
5.对景式玄关
View-style Porch
从中国传统文化上来说,对景式玄关讲究含蓄内敛,意在“深藏不露”,有一种“藏”的精神。
它借鉴了中国传统建筑中的“照壁”的做法,进入玄关后面对一面景观墙,既能起到装饰作用,又能保护室内隐私,室内的精彩被掩藏起来。

这种设计兼具仪式感和功能性。正面玄关柜是仪式玄关,采用对景、框景、端景等造景手法,入口两侧作为功能性玄关,可以定制衣帽柜鞋柜,负责收纳储藏。

无论是功能性玄关、隔断型玄关、双动线玄关还是对景式玄关的布局形态,都要根据户型及家庭需求运用到设计中,不能完全依赖于面积,也不能以牺牲舒适度来换取。
(部分素材来自网络,如有侵权请联系删除)