访问APP

津铁惠苑92㎡现代简约风~

佳艺空间装饰

2022-08-29

【设计师】:刘珂珂

【平米数】:92㎡

【施工地址】:津铁惠苑

【设计风格】:现代简约风~

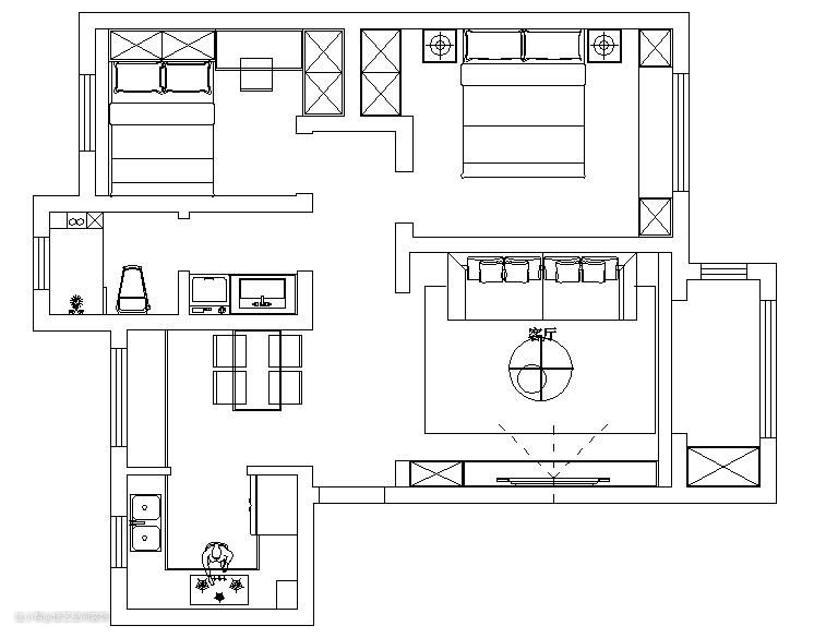
【户型图】:

//平面布局图

//客厅

//餐厅

//主卧

//次卧

//厨房

//卫生间