看完这些二手房改造,业主们都直呼太香了!
恒彩家装集团
2022-09-08
最近真的有太多人问我关于二手房改造的建议了,无论是风格还是其他,所以这期我就来做一期关于二手房的出圈合辑,大家可以根据喜好自行存图呀!
话不多说,开干!

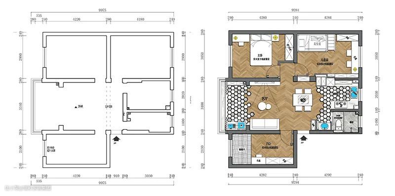
No.1景芳四区
79㎡原木北欧 全包14w
本案住着一家四口,爸爸妈妈和两个可爱的小朋友。女主人非常喜欢拍照,经常给两个孩子拍照,做成了厚厚的影集,记录孩子成长的点点滴滴~
设计改造

设计亮点:
1.拆除厨房与卫生间的部分墙面,增强空间感;
2.开放式厨房环节小户型拥挤感,卫生间干湿分离设计更合理;
3.改变原本的主次卧开门朝向,“u”字型保留私密性。
对比效果


客厅户型方正,基本保留原户型格局。客厅本身空间不大,不过好在阳台空间挺大。客厅阳台直接包进客厅,没有进行隔断,看上去空间感更足一些。

餐厅空间原卫生间和厨房的墙敲掉之后更显宽敞,餐厅紧靠厨房,空间动线合理。

厨房因为大量易反光的材质运用,整个空间的无论光感或是通透度都提升了不少。

卧室以蓝色主卫主背景墙,黄铜色吊灯和原木色家具对对比明显,明暗错落有致。

卫生间做干湿分离处理,原本T字形墙体拆除,干区做开放式,空间瞬间大了很多。
No.2南肖埠
套内68㎡现代 半包7w
业主一家三口原本住在爷爷奶奶家里,后来为了能有一个独立的空间,特意在爷爷奶奶边上买了一套小户型,离家近一点,也是为了家里的宝贝上学。因为买的是二手房,又是老小区,房子拿到手的时候就是名副其实的“老破小”。
设计改造

设计亮点:
1.客餐厅空间位置对调,餐厅靠近厨房,布局更合理。舍弃客厅,转而以单人沙发椅代替沙发,多功能娱乐区代替客厅,空间感更足;
2.厨房阳台打通,做进厨房空间,厨房空间瞬间扩大一倍;
3.没有了晾晒区,在厨房配置洗衣机和干衣机,解决晾晒问题。
对比效果

改造前东西摆放凌乱,不美观,还容易碰到掉下来。改造后定制整面玄关柜,最大程度利用空间。

在改造前的布局中,客厅带沙发,过道就显得很拥挤,空间比较压抑。改造后调整空间动线后,将原客厅位置改成了餐厅。

改造前厨房空间狭小,厨房储物空间不够。改造后将阳台的墙打掉,将厨房空间拓宽了一倍,空间瞬间就敞亮了。

改造前装修风格老旧以外,收纳空间主要集中在衣柜和阳台柜。改造后利用柜体做成飘窗,上面可以作为休闲区,下面柜子可以用来收纳。

改造前大床往房中间一放,边上哪个位置都挤!改造后将床的位置靠墙放,这样留出的过道空间就很宽裕,靠墙做一排柜子,也不会显得拥挤。

改造前淋浴房空间比较小,改造后将洗衣区踢掉放到厨房阳台位置,淋浴房改大方形淋浴房。
No.3都市阳光乐苑
57㎡现代 全包11.5w
本案屋主是一对年轻的小夫妻,一起走过了无数个春夏秋冬,终于在这座充满美好憧憬的城市里有了一个属于自己的小家。
设计改造

设计改造:
1.户型大格局基本不动,只将厨房稍微往外扩了一点,增加厨房空间;
2.客餐厅空间有限,餐厅采用吧台设计,节省空间;
3.空间隔断多使用玻璃移门增加空间感,家具选择上尽量“以小衬大”。
对比效果

改造前本身就是小户型的缘故,空间显得有些压抑。改造后以一面白色玄关柜作为玄关门厅位置的设计,底部镂空设计方便放鞋等。

餐厅采用卡座的设计,可以最大程度节省空间,小百叶窗,阳光浅浅洒进来,身旁有常绿的绿植,两个人一起共进午餐,也不失浪漫。

厨房一改破旧、落伍的设计,换上焕然一新的白色小方砖,黑色美缝边修饰的恰到好处,干净清爽。白色台面搭配深色橱柜,错落有致,井然有序。

主卧以浅色作为背景色,搭配白色家具,看上去更加清爽舒适。

主卧阳台墙整个敲掉,增加空间感的同时,也不浪费阳台空间。阳台包进来,摆上一张小书桌,就是一个小书房。

次卧与厨房之间利用长虹玻璃进行隔断,既不显空间压抑感,也能起到隔断作用。

卫生间空间较小,要在一个空间内放下淋浴房、马桶、台盆,既要方便使用,又要美观清爽。
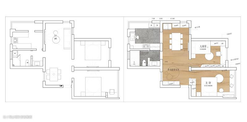
No.4都市水乡
86㎡现代 总投入28w
本案屋主是一对90后新晋小夫妻,新婚不久,买的婚房也总算装修完毕。房子买的是二手房,从买房到装修,一路走来,像捣鼓一件心爱的玩意儿满怀期待、兴致勃勃。
设计改造

设计亮点:
1.拆掉空间中的部分隔断,两个卧室房门内推,增加客厅空间,空间动线更加简便;
2.厨房墙打掉,直接做开放式,餐厅和厨房在一个区域,餐厨一区,空间看上去更加开阔明朗。
对比效果


原户型中次卧推进去的空间,靠墙做一排柜子,增加储物空间。客厅空间拓宽之后,在这个位置放一个小茶几,一张单人椅,客厅的活动空间大了很多。

餐厅位于厨房间,简化做饭-吃饭的空间动线,更加方便,同时开放式的设计是小户型必备。

主卧保留原户型格局,床边靠墙做移门衣柜,浅灰色主背景墙,搭配橙色装饰画,冷暖交替,对比鲜明。
No.5西城年华
60㎡北欧 全包15w
本案是一个小户型的二手房改造,在改造过程中,充分利用有限的空间,功能性齐全。在风格上,选择简单清新的北欧风,利用浅色系的色彩+原木元素的大量修饰,巧妙地利用卡座、小吧台等设计手法,将当下流行元素与实用性结合,打造出简单清爽又实用的北欧风家居环境。
设计改造

因为考虑到日后生娃的需求,所以在书房做了榻榻米的设计,方便日后长辈的居住。客厅面积不大,由于阳台开口位置,对于客厅的采光没有太大的益处,采光全凭落地的玻璃窗。此外因为属于狭长的空间,横向的距离偏短,为了保证充足的动线空间,所以在客厅的设计上,选择了卡座,一来卡座的入座面积较小,不会太占地,二来卡座下面能有充足的收纳之所,空间看起来更加干净。
对比效果

客厅空间用浅色打底,白色空间简单干净清爽。

餐厅空间在厨房空间外设了一个小吧台,充分利用厨房与过道之间的空间,多了一个小型用餐区。
厨房空间刚好了利用了用餐区形成半开放式厨房。原木色与白色的简单搭配,让空间干净明朗。

书房空间采用全屋榻榻米设计,搭配收纳柜设计,充分解决了收纳问题。


卫生间空间选用浅色打底,在视觉上形成空间膨胀感。
No.6大关东三苑
73㎡轻奢混搭 硬装14w
本案是老房翻新,对原户型的一些缺点进行改善。除原有装修风格不符合年轻人的喜好之外,原户型采光差,空间布局各种硬隔断较多。整个空间看上去非常拥挤,收纳功能严重不足,显得家里杂乱无章。

对比效果

用简单的吊顶+石膏线的做法,简化空间,让空间更清爽开阔。

餐厅空间封闭了原先门的位置,选择四人小餐桌椅,金色的金属元素搭配墨绿色,跳色分明。

卧室空间整个配色十分和谐舒适。大面积天蓝色渲染,讲究整体搭配的色彩延伸,都让整个空间极具诱惑力。

次卧空间采用榻榻米设计,最大程度增加了收纳功能。

小U型厨房空间利用浅色作为主要背景色,可以起到放大空间的视觉效果。浅木灰色的橱柜搭配浅灰色地砖,配色十分统一。

卫生间空间选用大理石灰色地砖,搭配湖绿色玻璃移门,极具质感。