深圳装修:734m²现代风别墅装修开放式布局,全屋无可挑剔!
深圳东易日盛福田店
2022-09-08
【写在前面】
- 楼盘名称:星河丹堤
- 建筑面积:734㎡
- 设计风格:现代风格
- 设计师:董鑫
- 居住成员:5口人
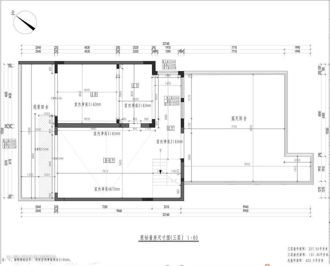
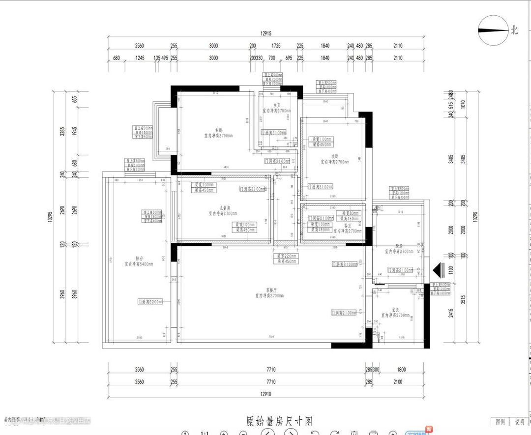
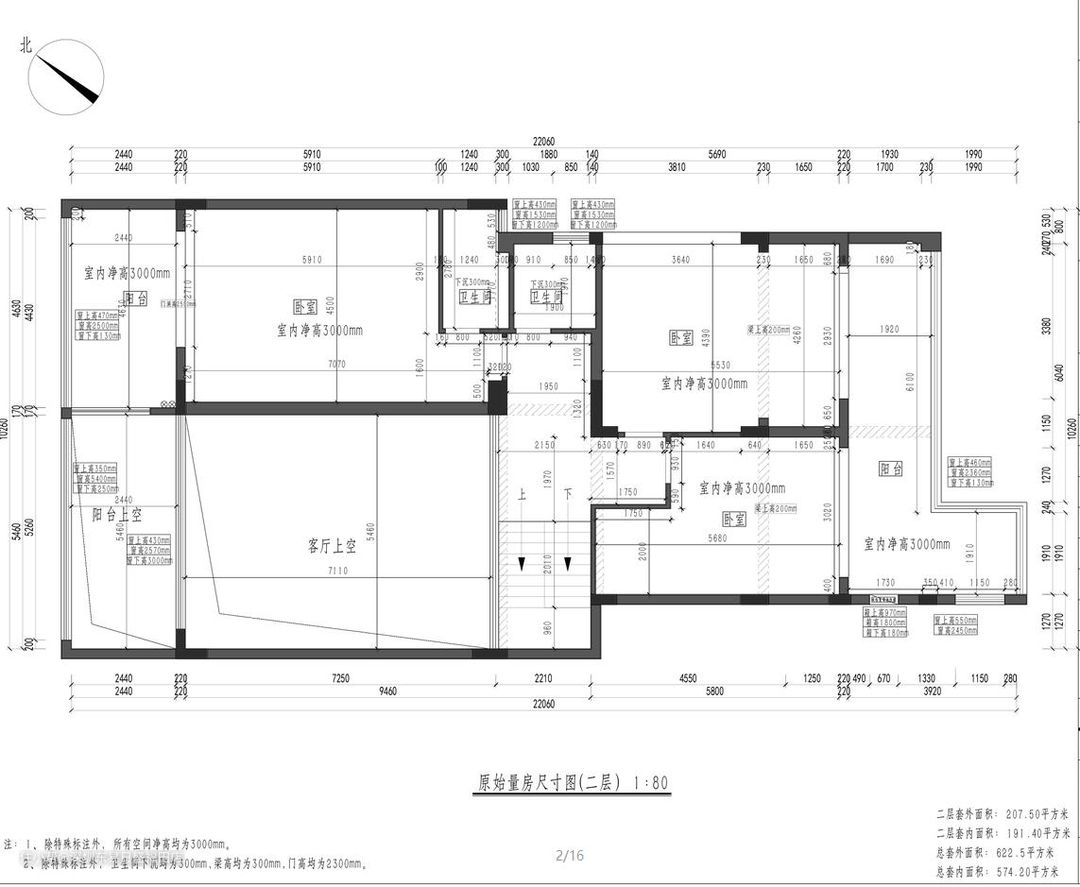
- 空间格局:入户玄关、餐厅、中西厨、水吧区、主厅、会客厅、休闲阳台、公卫一、二楼起居厅、女主房、女主房休闲阳台、女主房卫生间、爷爷房、爷爷房休闲阳台、奶奶房、小孩房、公卫二、影视厅、主卧、主卧休闲阳台、主卫、露台、天台花园。

起居厅
起居厅主要给到家庭成员使用,设立在楼梯右侧,中间设立一道屏风既起遮掩性也不挡采光,右侧起整排内嵌装饰书柜,内藏led灯带,提高家庭温馨感,正对面墙体放置挂画,且右侧墙垛齐平奶奶房,设立到顶书柜,提高隐私性。

会客区
一层会客区域把上面二层地面打通,使一层客厅空间非常开阔大气,客厅背景选用了一大片大理石和木饰面与线条的结合,中间装饰画的颜色和空间互相对应,造就了舒适、雅致的空间。

餐厅
原本空旷的客厅区域以挑空位分隔为主厅与会客厅两个接待区域,增加人数容纳率及会客区域点。

客厅:
客厅空间也呈现出一幅暖色,天花采用无主灯设计的悬浮顶,四周的反光灯带营造轻盈温馨氛围,电视背景墙用石材做凹陷造型来彰显空间的层次感,加上木格栅让空间更附有纵深线条的美感。

女主人房:
女主房做成套房式的,休闲阳台、女主卫生间、衣帽间、就寝区四个隔间,开门左侧整排装饰高柜,右侧卫生间,床头对面摆设书桌,左侧为梳妆台。

老人房:
老人房无主灯设计,将灯光收纳于吊顶内,使室内显得更为柔和安适。

男主人房:
主卧是非常大的一个套房,在设计上,为了营造空间通透的感觉,我们延主卧背景墙做了展示柜+硬包背景墙的设计

户型优点:此户型为四层复式楼,层高较高,空间空旷采光通风较好。
户型结构缺点:
- 动限不合理,开门见柱,且柱子过多露角,需要设计修饰。
- 空间分隔不合理,造成空间浪费,过道比例失调,过于空旷。
外立面设计说明:
- 依据住宅建设四个基本要素
- 即适用性、安全性、舒适性和健康性进行外立面改造。
户型调整及设计思路:







