134㎡轻奢四居室,糅合精致元素,华而不俗!
成都生活家装饰旗舰店
2022-09-09
- 案例面积:134㎡
- 案例户型:四居室
- 案例风格:轻奢
轻奢风格以高品质和简约为基础,设计简洁大方,时尚,前卫,优雅;在装饰上讲现代元素与古典元素结合在一起,使整体感觉很时尚、豪华、具有品味。
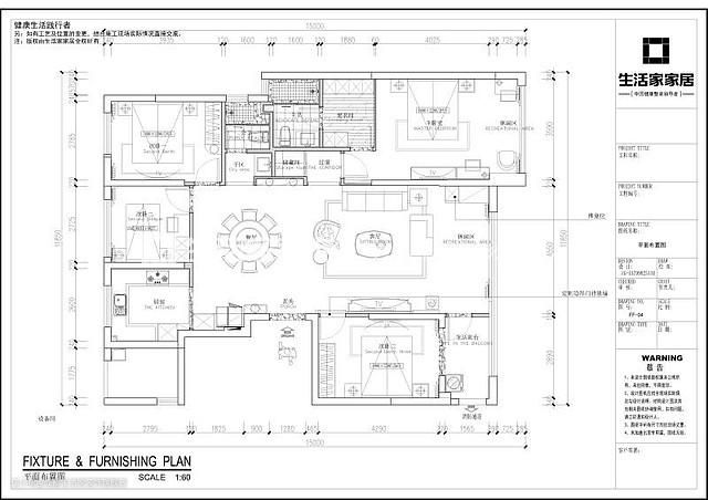
户型图
轻奢风四居室,做了四个房间,充分的利用了每个空间,以高级灰,高级黑为表现,给空间一种利落的感觉,再加上明度比较高的驼色、象牙白,为居室呈现出一种温馨大气、时尚高雅的范儿。


客厅
客厅处用白色、米驼来装饰背景墙,呈现出一种优雅大气的空间格调,再加上石膏线以及金属的搭配,使整体空间简洁又不失奢华。 沙发、地毯和窗帘等软装配饰都是以中性色为主进行设计,再配上暖色的灯光,使空间在低调、高雅的同时更具有温暖。


餐厅
餐厅在客厅的另一侧,餐厅的背景墙也是用了白色、米驼进行搭配,再搭配石膏线进行设计,和客厅进行呼应,在餐桌、餐椅上加上金属的材质的酒柜,使空间产生一种高级的高级的感觉。整个餐厅运用大量的灰白色,显得空间简洁,大气,再加上金属的材质,给空间增添一丝精致。


卧室
卧室选用百叶窗+遮光窗帘,浪漫氛围和实用性都拿捏住了。

好设计,让家更懂你!欢迎在评论区参与互动,发表您对本套案例的看法,获取更多风格案例可点击左下方【问专家】按钮咨询客服!