弧形长虹玻璃,撞色背景墙,这个黑白灰的家真的太cool了!
昆明生活家装饰旗舰店
2022-09-22
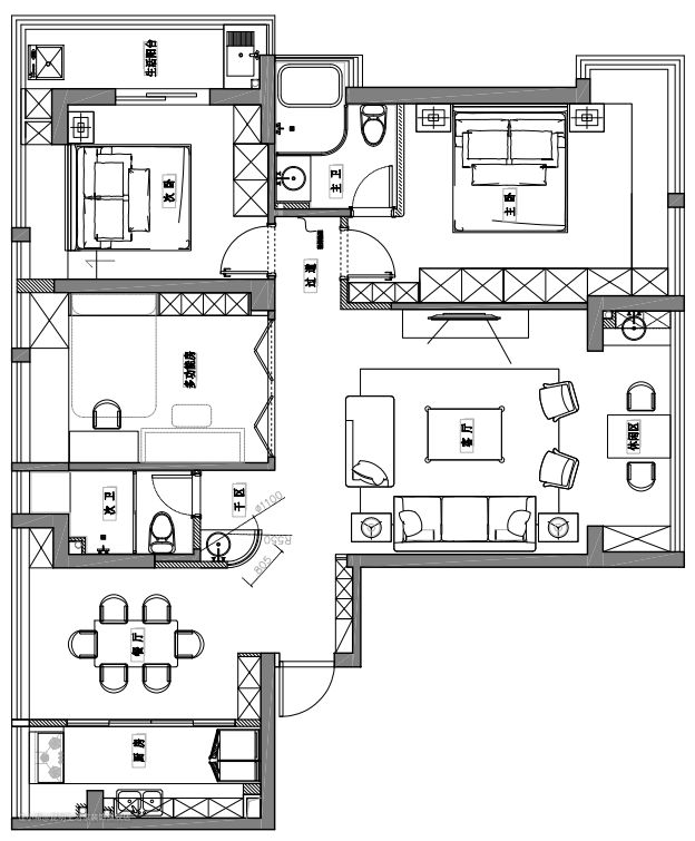
户型图

▼改造后

家装流行风格,往往是一阵一阵地刮,北欧极简,法式复古,又或是现在正流行的奶油风……从众多风格中,找到自己家个性的一面,离不开艺术家式的洞察和勇气。
今天这套案例让人耳目一新,它的业主有自己独到的审美品位,和设计师大胆、丰富的创想一拍即合,各种色彩、材质以及让人不由得“哇哦”的小细节,都满满置于空间,承载起居住者关于生活的无限想象。
客厅
无惧混搭
喜欢的一切都可以装进家里
混搭是这个家的特色之一,客厅则将这一点诠释得淋漓尽致。

色彩方面,大面积的黑白灰,定下了客厅大气的基调,橙色的巧妙加入,则提亮了空间,增加了年轻跳脱的时尚感。
材质的叠加使用,也增加了客厅的丰富度。木格栅的沙发背景墙,搭一面橙棕色木质墙体,彼此有高差,层次十足,和阳台的灰白色柜门也形成了更有趣的混搭。


沙发墙的“硬”与皮质的沙发的“软”对撞,木格栅的“直线条”也与墙饰黑胶唱片的“圆弧”对撞,而墙饰的亮面材质,又和茶几、电视柜和谐成套。

在足够丰富的元素下,电视墙选择了简约的黑色护墙板,实现繁复的平衡,但同时,设计师又在一旁做了石膏线装饰,精致感立刻上线。


一旁走廊也做了相应的拱门设计,不仅具有复古感,也和对侧的弧形吊顶灯弧线设计形成对应。
旁边休闲空间的门选用白色的折叠门,满满法式风情,也让客厅更加清爽通透。
卫生间
次卫在客厅左侧,又与餐厅相邻,因此在满足实用性的同时,对美感也有了更高的要求。
设计师对次卫采用干湿三分离设计,在干区打造弧形隔断,应用白色长虹玻璃,让这里既有隐蔽感,又不会沉闷。

餐厅
在吧台聊聊天
橙色餐椅让用餐更有滋味
原来弧形的布局里,餐厅空间相对较小,设计师让厨房呈一字型,动线简洁,更易使用,也给餐厅留够了更加充足的空间。

于是,餐厅有了落地窗前的吧台。在这里闲坐谈天,喝喝咖啡,品一品酒,再惬意不过。

而餐厅本身则更加简洁,墙面的装饰巧妙消融了顶面梁带来的分割感,更显层次。
简约的黑色餐桌和橙色的餐椅,也和全屋的风格搭配。

壁灯温暖,和橙色餐椅一起,使得用餐的氛围更加温馨。
卧室
恣意跳脱
大飘窗实用又美观
黑白灰与橙色的搭配,延续到了卧室。

这种强烈的风格,并没有让卧室减少舒适感。木地板凸显休息空间的柔软,床也选用了灰色的布质,带来舒适的睡眠体验。

床头采用灰色石膏线+橙色的背景墙,与同为灰色+橙色的窗帘形成立体与平面的对照美。
再加上一些小饰物,整个卧室的设计,便显得更加丰富活泼。

除此之外,一旁L形地台的设计,也更增加了空间层次,为业主提供了一处可坐可卧,可以尽情享受窗外阳光的居心之所。

好设计,让家更懂你!欢迎在评论区参与互动,发表您对本套案例的看法,获取更多风格案例可点击左下方【问专家】按钮咨询客服!