300平大平层,让我不再羡慕别墅了
海南好来居装饰
2022-09-24
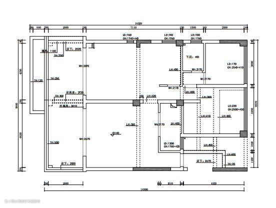
海口观澜湖九里三期的一个大平层的原始户型图,300平。可拆墙体比较多,原来的户型也比较杂乱,没有大平层的舒适大气。

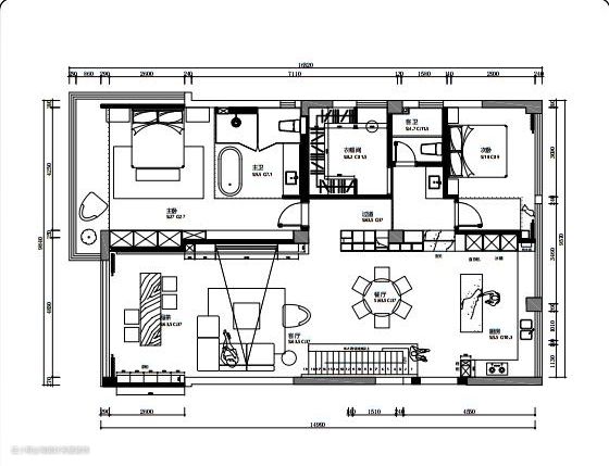
调整后的平面方案布局规整,拥有大的卧室和足够的衣帽间收纳空间外,还有开放式厨房,导台,延伸视觉。

因为这个户型在顶楼,业主希望有一个楼梯可以直达楼顶。就结合客餐厅的布局,做了非常符合现代风格的悬浮楼梯。

橱柜+导台都是定制的,所以冰箱、烤箱、洗碗机、冰箱等尺寸都需要提前看好,预留好尺寸才能达到最佳效果。

现代灰色调的客厅,整体看起来舒服且有质感。


灰色高级感+暖色调灯光搭配的干湿分离大卫浴间,色彩里,暗色系是最耐看耐脏的,还能彰显高级质感。

厨房的设计和整体搭配的风格同色调。金属线条的的元素点缀增加了轻奢的质感。有些点缀不用太多,一点即惊艳。

这是每个女生都梦想的衣帽间和浴缸。在沉浸式泡澡轻松的氛围里,静静的感受岁月静好。
