不看不知道,原来“上床下柜”这么坑!
重庆俏业家装饰
2022-10-08
如何让一个狭小的卧室,满足充裕的收纳功能,是大多数小户型业主关心的问题。“上床下柜”的卧室装修布置应势而生,受到不少人追捧。不过,上床下柜的设计究竟好不好用,今天小编给大家讲解一下。

一、什么是上床下柜?
顾名思义,“上床下柜”就是将床铺和柜子重叠起来,上面是床铺,下面是柜子。让空间功能变得立体化,最大限度地提高使用范围。
这种做法经常在学校宿舍中使用,下面的可以是衣柜、储物柜、或者是书桌等等,可以根据实际需求灵活组合。

二、鉴定网络热门“上床下柜”的装修视频:
“上床下柜”被网上吹得天花乱坠,实际情况到底是怎么样的,我们今天通过网络热门视频来具体分析。
先来看这套点赞很高的设计:靠窗一侧,先将床架提升做高床铺,床铺下是半高的L型衣柜,剩下的空间设置了小沙发和投影用来观影;床尾是踏步型抽屉和吊柜。

靠门一侧,紧邻床尾的吊柜设置办公区,床头布置梳妆台。

咋一看麻雀虽小五脏俱全,直接装出了豪华大套间的感觉。实际情况并非如此:
①该案例指出踏步上方空高2m,踏步总高0.8m。由于床铺与踏步之间存在落差,初步估算床上与床下的高度均为1.4m,也就是说正常的成年人是无法在床上或床下站直的,活动起来稍不注意就会碰到头,非常难受。

(房间侧视图)
②图片中可以看到衣柜高度与踏步齐平,整体呈L型0.8m高,大概就是家庭餐桌的高度,所以储物空间其实非常有限,而高度也不能满足长裤、大衣的挂置功能。

③床下布置的观影区,属实多余了点,先不谈观影距离不足容易影响视力,就说这个软塌,床下空间狭窄,用起来才会发现坐不好、靠不住、躺不下。

④书桌和化妆桌的存在虽然让整个房间的功能更加丰富,但宽度0.6m,长度1m,只能说是在给自己找罪受,完全伸展不开。

⑤床铺与衣柜将窗子卡得很紧,开窗通风是个大难题,平时打扫也很费劲,到处都是死角,时间一长积灰还有蜘蛛网。

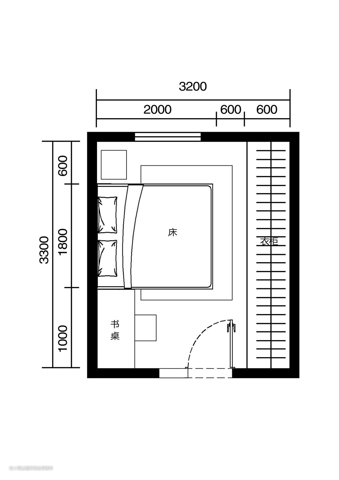
原本上床下柜就是为了解决卧室空间小的问题,但根据这个案例的布局算下来可一点都不小,长宽在3.3*3.2m,层高按建筑标准算是2.8m。所以,普通布局就能满足卧室基本的功能,活动起来也不受限,室内还会更加通透。

(房间侧视图)
三、小卧室的推荐布局:
对于刚需的小户型来说,卧室一定是以满足基本功能需求为主,除了睡眠和储物,一些花里胡哨的东西真的可以省略掉。

我们可以适当将床铺抬高,在床下做抽拉型的储物柜,也就是带有储物功能的榻榻米;或者是利用床头和床尾的空间,与床铺相连制作一体型的吊柜或落地柜,如果还有富余的空间再来考虑书桌、床头柜等等。


综上,上床下柜是个大坑。所以,装修一定要根据自己家的实际情况进行设计,千万不能盲目跟风,不然只能追悔莫及。