玥湖园460㎡ | 精致简约,舒适与质感并存的高级住宅
布尔设计
2022-10-09
本案是一套5层的联排别墅,自带一个超大的景观花园。设计时给墙体做减法,采光做加法,大量使用通透的大玻璃滑门+落地窗,3面采光 ,整个空间通透又明亮。
在这套460㎡的现代简约风格装修案例中,整个空间的色调统一,不同层次的浅色系叠加简约百搭又高级。融汇当代简约的艺术与现实功能,自在随心,为生活留白。
| 基本信息 |
项目 :玥湖园
面积 : 460㎡
户型 : 联排别墅
风格 :现代简约
硬装设计 :布尔设计
软装设计 :觅舍软装
城市包罗万象
总有一隅心之安处在时间的罅隙里
在帘幔的光影中看太阳东升西落
.
.
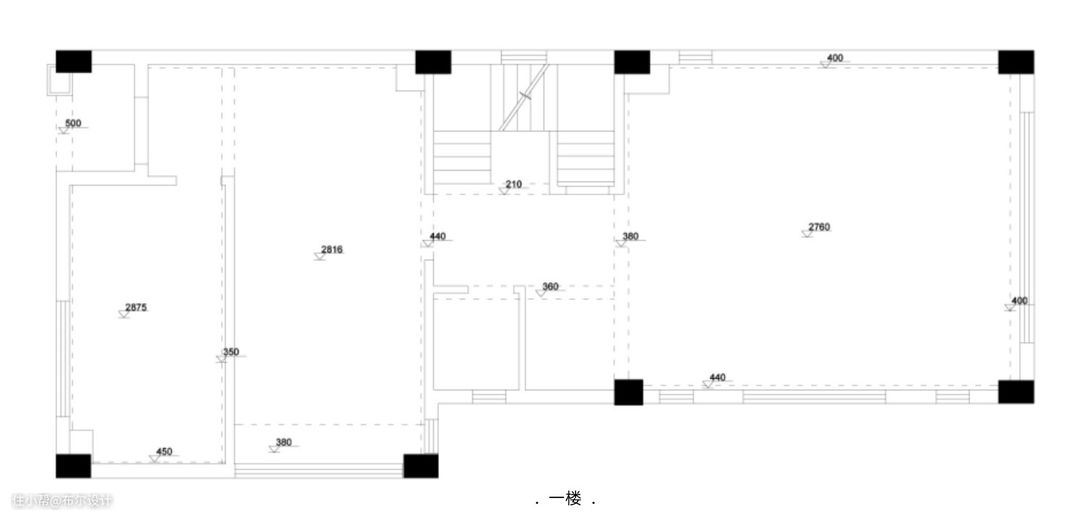
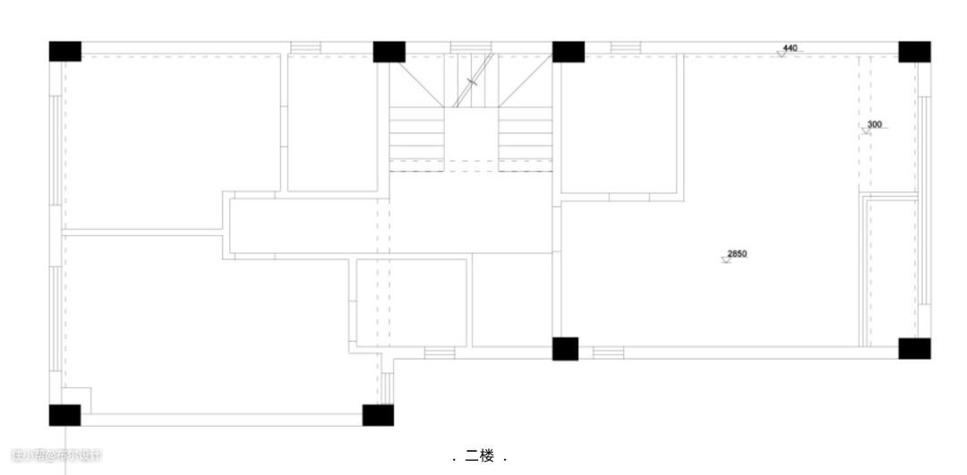
| 户型图 |




. 原始户型图 .
.
.






. 改造后户型图 .
-
-
| 设计改动 |
在原始常规的划分中,缺少了功能属性与动线转折;设计师根据居者的需求与生活选择,调整空间结构与布局优化,开启生活新的气象: -
.1楼
① 在餐厅右侧增加一个小开口大落地面积的下沉式花园,保证负一、负二楼的通风采光;
② 采光井右侧墙体外移,增加一个室内卫生间,动线便捷;
③ 打通1楼室内非承重墙体,做开放式设计,与门厅、花园联通,视线通透,空间更加的开阔大气。
.2楼
① 拆除过道左侧部分楼板,做一个挑空造型,与1楼空间联通,使视野更加通透,营造出高端大气的气质;
② 拆除左侧空间的部分墙体,把三个小空间联通,动线便捷;
③ 次卧原始小阳台纳入室内,重新划分空间,增加衣帽间提高舒适度。
.3楼
3楼划分为主卧室,打通室内空间所有非承重墙体,做开放式设计,增加一个步入式衣帽间,卫生间。
.负一楼
整层作为休闲区,空间做开放式设计,在右侧新建部分墙体,划分出书房、储物间、卫生间等区域。
.负二楼
新建墙体,增加门厅、展示厅,与车库相通又有分界。
本案设计时以现代简约的手法
给墙体做减法
采光做加法
大量使用通透的大玻璃滑门+落地窗
3面采光
整个空间通透又明亮
-
-
-
客厅
-
-
本案属于联排别墅,自带一个超大的景观花园。设计时给墙体做减法,采光做加法,大量使用通透的大玻璃滑门+落地窗。
搭配梦幻白纱帘+木百叶,把花园的阳光与清风引入室内。一下子照亮了整个空间,一扫沉闷视觉效果,更显大气扩张感。




开放式的设计,把门厅、餐厅、客厅、花园四个区域联通,把采光、视野最大化,也让空间整体更加的开阔大气,让共享空间模糊区域边界构建出更多元的体验场景。
以简白为基调,低饱和度色调独有的质感高级大方,让整个空间显得纯粹而唯美。搭配浅色系的软装家居轻盈温柔,营造出舒适干净的治愈氛围。




黑色摆件、咖色木饰面点缀式的加入空间之中,增加空间的立体层次感和流动感。搭配整屋通铺浅色系哑光砖,素净又温柔,有一种细水长流的吸引力。
在空间布局的时候,摈弃了传统的电视墙概念。采用可极简的BO智能电视,让空间更随性灵活,实木材质+扣线造型,未使用时也可充当艺术品。



无主灯设计搭配悬浮吊顶,达到1+1>2的效果在视觉上拉升空间层高,让空间更为立体。辅以环绕灯带+轨道灯+筒灯局部分散照明,增强空间感的同时,还让客厅更有层次感与格调。
没有繁杂的装饰避免空间压抑,借助多面采光的设计,将开放空间做到最大化,实现通透的大空间。打造一个尽晨光熹微、四季流转的居家环境,从简单舒适中,体现生活的精致。



低饱和度的色彩营造优雅氛围,多种材质的碰撞让空间的质感更为饱满,凸显简约内涵,不着痕迹地透露出对于非凡的精致生活。也给空间添了一份静谧和惬意,任意角度都能绘制出温馨舒适的场景。
在简明的线条里,利用光影、材质、色彩的平衡,营造精致而不造作的画面。加入独特的摆件、家居点缀细节,凸显当代的个性艺术,而留白的位置或许还有更多值得填充并意义深远的内容。



-
-
-
餐厅
-
-
餐厨房位于客厅的右侧,开放式的设计,把空间打开与客厅空间融为一体。不仅能得到视觉上的延伸,也使得光源更加充足,打造出一个更为自然的空间。
摒弃繁杂的装饰,以平稳、简洁的布局,把控每一处细节倾注对美好生活的向往。极富设计感的黄铜大理石餐桌为功能区域注入呼吸感,纯粹的简白色基调让空间看起来赏心悦目,营造出自然舒适的生活仪式感。


拆除右侧原始墙体,做整面落地推拉玻璃门,把室外花园连接到屋内,营造无边界视觉效果。给空间带来绝佳的通透视觉和采光功能,让空间变得更加明朗与清新。
顶墙同色的设计手法,从客厅一路延伸到餐厅,糅合出自由舒适的用餐氛围的同时,也让空间整体质感统一,更加和谐大气,提高了整体空间的视觉体验。



厨房空间位于餐厅后方,整体以灰白为基调。沉稳的浅灰色地柜+温雅的白色岩板,是对生活美学的深刻传达,温和中带静谧,展现出温雅从容的比例美感。
开放式的设计,加强了家人之间的互动。中间以极窄边框的动滑门轻巧分界,保证空间通畅的同时,也去除了烟火空间常见的“油腻感”,让就餐时刻更加轻松。



-
-
-
过道
-
-
在餐厅与客厅的过道处,增加一处中岛台,既可以充当人多的辅助餐桌,又能作为聚会的台面一举多得。想象一下与朋友们一起围坐在中岛台边,或是做饭备餐、或是喝酒聊天,日子过得好不自然。
开放式的设计,与客厅、餐厅两个功能区域通联,不仅能放大空间视觉效果,还能让动线更流畅、交流更便捷,呈现舒适大气的统一风格。让空间显得更加简雅大气、干净纯粹,给人带来更多发自内心的舒适感。



简洁的流线造型+中空的设计,更好的符合空间形态。温润的木白色作为主体色,与地面、墙面形成顺色的同时又有所区别,展现稳定而轻松、纯粹而淡雅的空间氛围感。
拆除导台上方顶墙部分楼板,做一个挑空造型与2楼空间联通。增加了空间之间的互动感和交互性,给人以豁然开朗的感觉,营造出高端大气的气质。搭配超大落地窗,让视野更加通透房间通透感十足。



本次的分享到这里就结束了,非常感谢您的阅读,如果您有装修需要,也欢迎您在后台留言,或者直接通过关注页面的联系我们。