【户型爆改方案】4室2厅三口之家,异形卫浴间的妙用~
成都生活家装饰旗舰店
2022-10-18
一、业主需求
业主是一个三口之家,对储物功能要求较高,希望进门有大鞋柜,要有中西厨、独立书房、大衣帽间、浴缸。喜欢简约风格和暖色调。
二、设计师说
这套户型方正没有浪费,楼上楼下都有阳台,采光充足。不足之处在于门厅与内部连通性较弱,厨房偏小,客餐厅进深短,所以改造重点在于门厅处的空间感优化以及厨房、餐厅和客厅之间关系的调整。
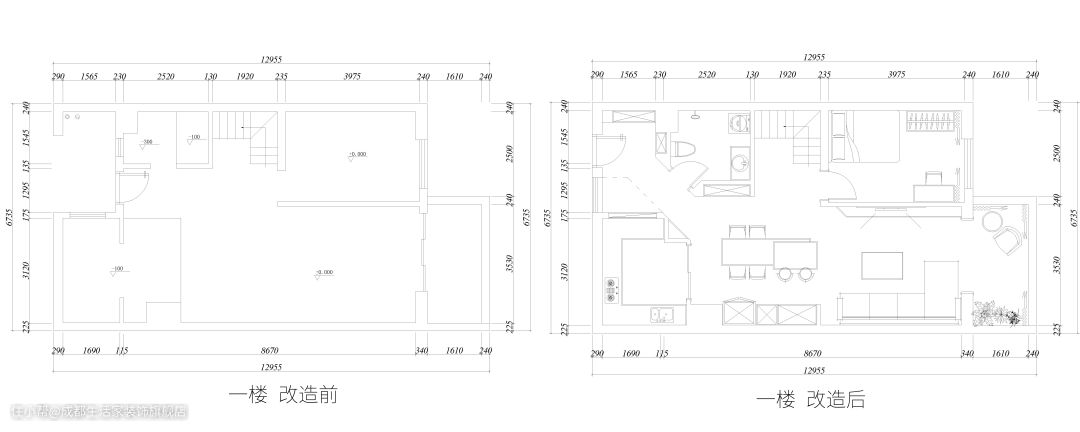
三、改造前VS改造后

△一楼改造前后对比

△二楼改造前后对比
四、设计亮点
- 门厅/打造独立入户
入户门外是一处开放空间,而入户门被设置在主卫旁,这导致进门后过道狭窄,而且没有独立的门厅,同时入户门正对一楼卧室门,不利于保护隐私。

△门厅改造前。
于是设计师在“2”处建起墙面,同时打掉原“1”处的入户门,并在“3”处建起了新的入户门。

△门厅改造后。
最终,一个独立且宽敞的门厅被开辟了出来,过道也扩大了许多,满足了业主对大鞋柜的需求,还让一楼卧室的私密性得到了保障。

△门厅效果图。
门厅利用拐角设计了一隅景观区,为了保证自然采光,还在这里加入了特别的窗户设计。
将回家的仪式感做足,好比是在进门处设置了一道心灵净化器,让忙碌一天的疲惫在进门一瞬便得到安放。
- 主卫/大胆改变空间形状
一楼的主卫面积比较小,而且考虑到后面厨房改造后,主卫的门将正对餐厅,于是设计师大胆将主卫改为了“钻石形”。

△主卫改造前。
先是敲掉上图红框处的墙体,将主卫空间外延,在入户门移开后,把入户过道改成了45度斜向,这在解决了主卫门正对餐厅问题的同时,更进一步遮挡了进门看向卧室的视线。

△主卫改造后。
- 餐厨/扩大两倍不是梦
原来的餐厨空间(见红框处)很小,尤其厨房更显逼仄,完全无法满足中西厨结合的需求。

△改造前的餐厨空间。
于是设计师做了这样的改造:

△中式厨房改造后。
首先,设计师敲掉上图中“1”处墙体,同时在“2”新建墙体,围出一个新的中厨空间。
这样一来,中厨面积大大增加,更实现宽敞的U形操作台。

△餐厨空间改造后。
同时,设计师还将餐厅移到了上图“2”处,由于空间足够大,设计师给业主设计了一体式西厨吧台餐桌。
靠墙的“1”处则利用原管井设计整排的电器柜,加上“3”处的中厨,全新的中西厨结构不仅视觉上大气,功能上更是划分清晰。

△餐厅效果图。
- 卫浴/卫生间的N种可能性
因为家中常住三口人,同时二楼的三个卧室只需保留两个(另一个卧室按业主要求用作书房),所以二楼并不需要配置两个卫生间。

△主卧改造前。

△主卧改造后。
为满足业主的需求,设计师将二楼的主卫改为了衣帽间,同时在主卧内增设了飘窗(位置“1”),让生活更有情调。

△次卫改造前。

△次卫改造后。
次卫面积太小,设计师通过对以上三个墙体的改造,将次卧的阳台纳入卫生间作为沐浴区,放一个大浴缸也绰绰有余,原次卫则仅保留了如厕功能。
这样,不仅大大扩宽了卫生间面积,更实现了三分离,提高了使用率。
- 楼梯间/大好的收纳场所
楼梯间的利用方式多种多样,养宠之家可以把这里打造成宠物窝,宽敞一点的楼梯间还能铺下床垫做一个居心地,当然最常见的利用方式是充分发挥这里的收纳功能。

△楼梯间效果图。
总结一些来自本套案例的改造经验:
- 牺牲一点空间的方正,可解决许多棘手问题。设计师对一楼主卫的改造比较大胆,通过一定程度上牺牲空间的方正性,解决了保护隐私、扩大主卫面积、卫生间门正对餐厅等问题,让入户部分的动线和实用性都得到了改善。
- 将主卫改成衣帽间。因为常住三口之家,家里保留两个卫生间便足够了,于是主卫可以改造成更为实用的衣帽间。
- 合理扩大次卫面积,实现三分离。三分离是将卫生间实用性最大化的做法,但前提是要有足够的空间支持。
- 因此,在卫生间面积较小的情况下,设计师通常都会想办法借用相邻空间。这个案例中,设计师便通过将次卧阳台纳入次卫的方式扩大面积,打造了一个宽敞的三分离卫生间。
- 餐厨空间重新规划。原先的餐厅厨房都很小,别说满足业主中西厨的需求了,想打造一个实用的U形操作台都比较费劲,因此厨房改造成为本案的又一个重点。
- 设计师扩大原先厨房,将其设置为中厨,配入实用的U形操作台;外面的餐厅放置一体式岛台餐桌,并利用原来的管井增设了整排电器柜。
- 中厨使用了通透的推拉门,岛台餐桌紧邻客厅,一个功能完整且互动性极强的LDK布局完美呈现。
好设计,让家更懂你!欢迎在评论区参与互动,发表您对本套案例的看法,获取更多风格案例可点击左下方【问专家】按钮咨询客服!