98平简约两居室,打造50平顶天立地柜超能装
喜迎门乐家装饰20年
2022-11-04

地址|Project address:越秀南路
面积|Square Meters:98m²
风格|Style:现代简约
户型|Apartment:两居室
设计|Designer:丁华
管家|Foreman:曹小武
装修|decorate:全案(半包+主材+定制)
// 前 言 //
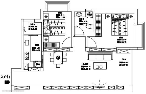
本次案例由M小姐委托改造设计,常住人口两夫妇,虽然只有两个人居住,但对于收纳的需求特别高,经过考虑,决定把房子重新改造,全屋做定制柜增加收纳!// 户 型 图 //
设计需求:(1)常住人口:2成人。(2)储物空间要超级多。


改造亮点:1.因为是两人居住不需要考虑隔音问题,所以把墙体拆除改成柜子,增加了储物功能。2.阳台并入客厅,扩大客餐厅空间进深,增加了客厅的休闲功能。
// 玄 关 //
进门处,右侧则打掉与厨房之间的隔墙,安装同款嵌入式收纳柜。底部留空,可以收纳家居拖鞋,随穿随脱方便自在。收纳柜下上方收纳一些不常用的家居用品,中部预留两个抽屉也是方便拿取常用的工具。


左侧做嵌入式鞋柜,放置日常穿的鞋子。鞋柜中部留空,平时放置钥匙包包和外出的随手物品,十分方便。

// 餐 厅 //
餐厅选用岩版餐桌,简约大方;暖橙色的4人位餐椅,给餐厅空间增添了温馨亮眼。

右侧利用了餐厅与次卧之间的墙设计了一组嵌入式餐边柜,中部留空,可以收纳一些水果,酒与酒具。饭前小酌一杯,饭后水果的生活让人感到惬意。

餐边柜中部增加镜面设计,增加了空间的延展性,家里看上去敞亮了许多,起到放大空间、提亮氛围的效果。

餐厅右侧做了同系列的餐边柜,同样的预留了展示柜,各类酒、酒具和茶具都安排上,既是收纳也是展示,生活的点点滴滴若隐若现。



// 客 厅 //
客厅把原阳台打通纳入客厅,做封窗处理,增加客厅进深空间。清晨的阳光穿过窗与窗纱洒在地面上,洒在沙发上,明亮而温暖。

一字式的电视柜在延续餐边柜镶嵌,经典黑色的极简设计,大尺寸的电视机悬挂在中间,两侧摆上心仪的装饰,同系列的茶几摆放着整齐的杯具和遥控器。


舒适的暖橙色组合皮质沙发,给予沉稳的空间温馨感又增添了一份活泼感

// 厨 房 //
一字型橱柜足够满足洗切炒的日常需求,选用珐琅白的橱柜门搭配25mm石英石台面,简洁干净。

厨房侧面预留冰箱位后做一组收纳柜,可以收纳一些厨具,中部留空摆放上微波炉,平时加热饭菜方便又好用。



经过厨房出来的生活小阳台改造成一个新的淋浴间,晾晒淋浴一举两得。

// 卧 室 //
11平米的卧室里,安装了五米大衣柜。拆除卧室与客厅之间的隔墙,改做一组3米满墙衣柜,满足春夏秋冬的衣物及大件收纳。床边则安装一组2米的满墙衣柜,收纳当季的常穿的衣物等,方便整理。


每天的清晨,阳光透过2米的大飘窗,温暖又舒适,每天起床都是元气满满的一天。



// 次 卧 //
给空间做减负,给睡眠空间营造轻松舒适的氛围,保持了卧室空间的基础三件套:床、衣柜、床头柜,到顶的大衣柜满足日常收纳需求。



// 卫生间 //
1米7的大浴室柜内嵌洗烘一体机,做镜柜设计,隐藏式收纳让空间保持干净整洁。



#装修#室内设计#室内装修#旧房翻新#广州装修#天河装修#荔湾装修#越秀装修#海珠装修#海珠装修#白云装修#番禺装修#南沙装修#二手房改造#二手房翻新#两房改三房#三房两厅#三居室#四房两厅#五房两厅#单卫改双卫#全屋定制#软装搭配#衣柜定制#橱柜定制#榻榻米#儿童房#广州室内设计#广州全屋装修#广州装修公司#装修灵感库#木地板#餐厅设计#厨房设计#吊顶设计#客厅设计#客厅装修#壁龛#背景墙设计#背景墙#开放式厨房#日式#衣帽间#干湿分离#顶天立地#现代#无主灯#榻榻米#吧台#推拉门#餐边柜#法式#原木风#小户型#榻榻米#书柜#阳台#硬装#半包#家装材料#防水施工#打拆#砌墙批荡#全屋挂网#植筋#蜈蚣脚收口#三层小砖打底#砌防水梁#水电施工#定墙位#定电位#厨卫改造#铺砖#地砖#墙砖#油漆扇灰#木工吊顶#水洗砂#日丰线管#保利水管#联塑排水管#德高腻子#马贝腻子#多乐士油漆#德国舒尔茨#徳国都芳漆#五金#窗帘#家具#电工#木工