访问APP

150m²超大储物空间的三居室 还得看我家这么设计

默弘空间大宅设计

2022-11-09

业主需求

1.喜欢现代简约风格,客餐厅空间希望开阔通透。

2.考虑三胎,希望能有足够多的收纳空间与储物区。

3.男业主想要一个工作区辅以自己学习与提升。

改造后

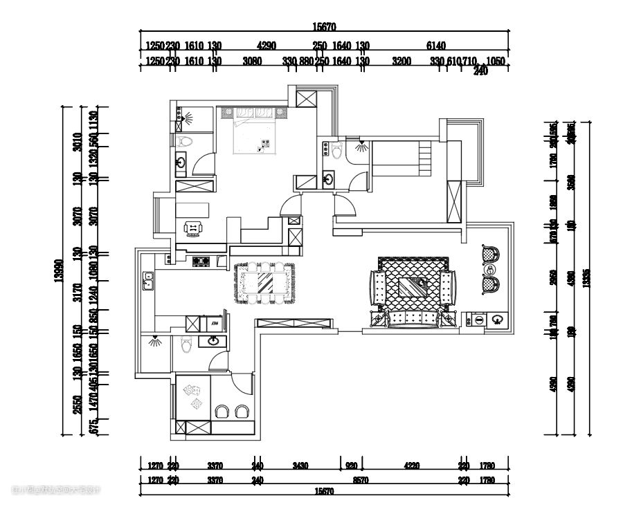
1.入户进门左手边是定制的实木玄关柜,打造整墙收纳柜,增添收纳空间。

2.通过两联动透明玻璃推拉门作为餐厨的隔断,优化整体采光条件。

3.南阳台打通,使得客厅空间更加开阔

4.主卧利用飘窗的位置以及柜体形式做出半开放式的书房空间,左侧超大的采光面保证了空间的通透性。

5.干区与淋浴房用玻璃做隔断,搭配悬空浴室柜,大幅度降低清理难度。

前后对比

玄关

入户进门左手边是定制的实木玄关柜,打造整墙收纳柜,增添收纳空间。中间镂空打造挂衣区,长700mm,进深350mm,高1350mm。同时辅以实木木格栅设计,美观耐看。

客厅

客厅开间4.5m,长5.3m,打通阳台纳入客厅当中,全屋通铺750*1500mm简一浅灰色大理石瓷砖,通透敞亮。

电视背景墙采用整幅连纹鱼肚白大理石岩板上墙,左侧一门到顶实木储物柜,搭配下面四方悬空柜,储物空间收纳充足。

原木色面+格栅搭配意式牛皮转角沙发,柔软细腻。

餐厅

餐厅开间3.4m,采用无主灯设计整个空间更加敞亮,餐厅中间放置一张1600*800*750mm岩板餐桌,搭配定制造型高亮橙餐桌椅,别致美观。

靠墙打造满墙餐边柜,右侧留空搭配层板,可以作为简易的操作台面使用,邻侧打造鎏金框灰玻面酒柜,展示收纳两不误

厨房

厨房橱柜跟全屋柜子都采用统一色调,雅白,珍珠白偏冷一些,台面也是白偏灰的大理石台面,整体统一之后更加美观耐看。

U型厨房的设计,搭配大量的储物柜,完美解决厨房收纳问题,冰箱做了嵌入式,同时也使空间更加美观整洁。

主卧

主卧共28m²,以藕粉、雅白为主色调,主卧床头背景墙由石膏线护墙板造型构成,石膏线宽4cm,同时床头配以两盏水晶壁挂灯,温馨舒适。

利用飘窗的位置以及柜体形式做出半开放式的书房空间,左侧飘窗的采光面保证了日间工作区域的通透性。

儿童房

为孩子打造专属儿童房,整屋涂刷天蓝色乳胶漆作为房间的主色调,实木定制衣柜由主体衣柜+侧边开放柜构成,推拉门衣柜更节省过道空间位置。

卫生间

卫生间共6m²,采用极简黑框玻璃做隔断,洗手盆、马桶、淋浴区合理规划。

预留700mm做悬空式浴室柜,柜内多做层板收纳,储存日常清洁用品以及卫生纸等用品,同时悬空式墙排浴室柜美观方便打扫卫生死角。