186㎡质感轻法,全屋收纳+高级配色,我实名推荐这套6口之家
合肥艺墅美宅设计
2022-11-18

项目地址 :黔南·河畔阳光
设计风格 :轻法风
实际建面 :186㎡
设计机构 :艺墅美宅设计
创意总监:漫妮老师
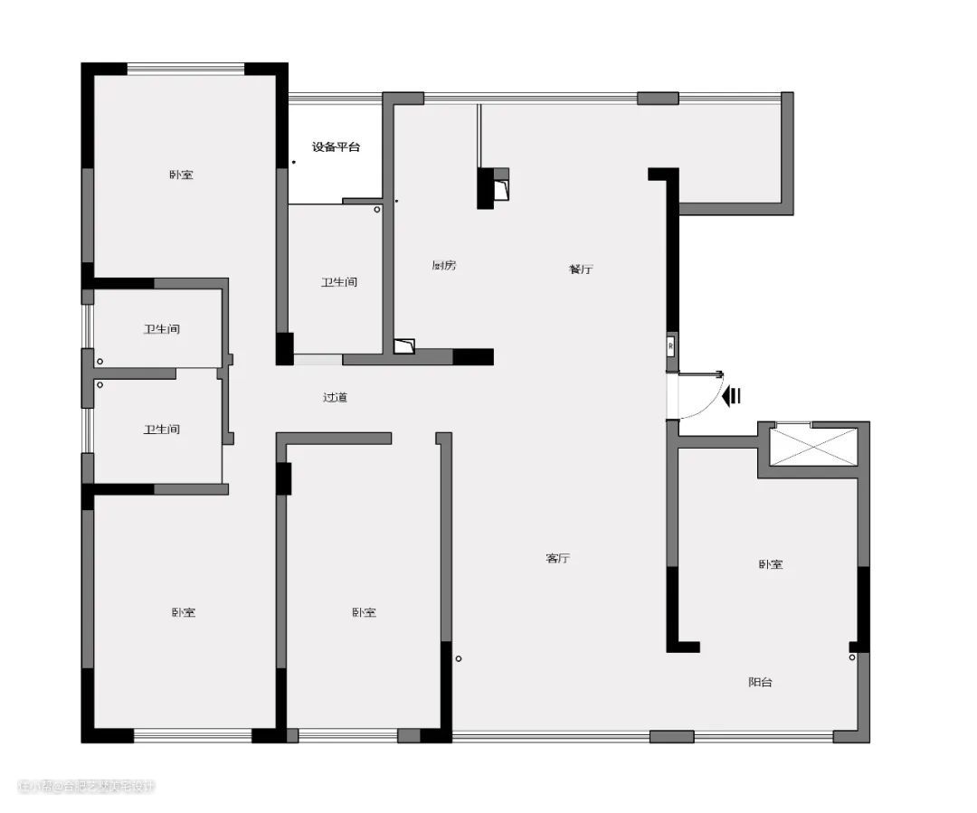
原始结构图

家的简介:
屋主是一位80后的女士,家中有四个孩子的前提下,希望打造心中理想家的同时,为孩子们创造良好的居住环境。最终定下法式风格的轻奢浪漫元素。
屋主需求:
❶南面中间卧室留给双胞胎女儿使用,创造足够宽敞的空间。
❷南北角卧室暂时给大女儿使用,后期改为书房。
❸主卧卫生间改为衣帽间使用。
方案设计图

设计亮点:
❶扩大入户门空间,鞋柜直接嵌入公共区使用,不占用室内空间。
❷客厅阳台打造一体空间,双层纱帘营造梦幻效果。
❸阳台拱形门洞后方连接独立书房,增设落地移门保护隐私的同时提供充足的采光。
❹餐厅做整面餐柜存储,增加日常饮水区和物品摆放区。
❺主卧拆除卫生间墙体,做双面收纳柜并结合窗下梳妆台。
测量现场

客厅 living room

入户门跟室内选择同色系搭配,立邦春雨,干净柔和的色调。法式门套、钢琴线条、石膏灯盘,浪漫空间感轻松营造。

阳台包进客厅,双层纱帘,一层透光透影,一层简单装饰。用拱形墙体简单过渡书房区域,透过阳光的间隙,感受岁月静好的气息。

鱼骨拼地面搭配水晶吊灯,石膏线条装饰电视背景。绒面沙发的暖,加入金属的冷质感,温柔坚定,更具力量感。

阳台空间做拱形顶装饰,一端造景,工艺摆件、艺术感花瓶,生活即使再忙碌,也要留有片刻的喘息。
餐厅 Dining room

除罗马装饰柱以外,将水管直接包入弧形墙体,相对而立毫不违和。餐边柜合理规划展示区+饮水区,可置放碗碟,也可收纳自己的藏品。

绒面餐椅和厨房空间的型材玻璃门隔断,皆用金属元素点缀,在保证美观性的同时,也避免了油烟的问题。高雅浪漫的视觉空间,是精致,也是享受。
主卧室 Master room

除必备收纳柜体以外,床头两侧增设矮柜做独立存储。珠帘吊灯+床头壁灯,给生活更多精致的选择。
女儿房 Children's room

双胞胎女儿的房间,选择温柔俏皮的皮粉色。两张单人床并排放置,半面软包墙体+灯带装饰,各自安排独立书桌+书架组合使用,让孩子自在享受。
男孩房 Children's room

男孩房选用更为低调的灰蓝色装饰,半高格栅+墙板组合,干净利落。考虑到孩子的身高,书架直接安排在下方,方便孩子拿取。
书房 Study room

墨菲床、展示书柜、收纳衣柜,用办公区完善家居空间的功能性。阳台安装型材门隔断保护隐私,任意切换开放封闭空间,提供更为私密的办公地点。