“非典型”的现代侘寂风装修设计,别具一格,让人眼前一亮!
明长虹
2022-11-19
当我第一眼看到她家的房屋装修,我的内心就被狠狠击中了!
本案是一对夫妻居住的复式,男主人对侘寂的装修情有独钟,也十分向往侘寂所表现的“无一物”的生活态度。而女主人在这点上与男人产生了分歧,她更向往温柔、时尚的现代风,于是这套“非典型”的现代侘寂风设计应运而生。
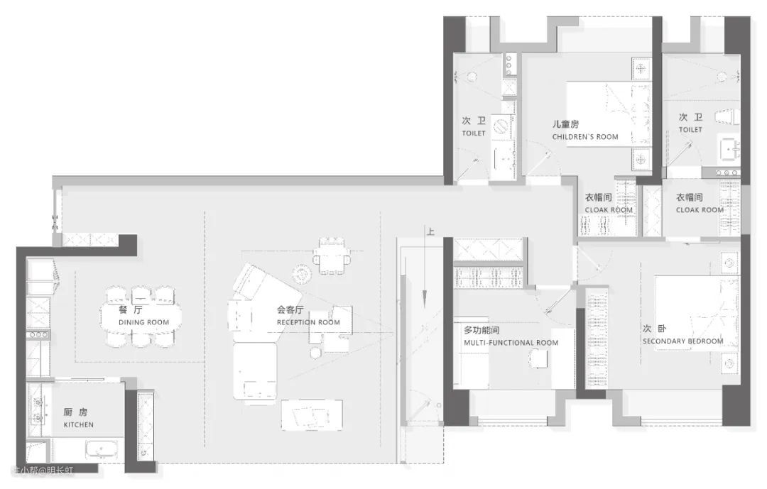
//原始户型//

▲原始户型图▲
主一家两口居住,未来会有子女,老人住的近不常来家里居住:
- ①原始户型客厅上挑高,可现浇一层作为业主夫妻的主要居住空间,需要做成套房的形式,能有更多的储物空间。且二楼需要洗衣机跟烘干机
- ② 业主喜欢吃川菜,烹饪时油烟也比较重。我们的设计师与业主夫妻协商后,还是采用了传统的封闭式厨房形式
- ③ 业主夫妻的都比较注重空间的功能性,希望各个卧室都有足够的储物空间
- ④ 次卫只需要蹲便即可,也需要安排一个洗衣机位
//设计亮点//


▲平面布局图▲
- ① 原始户型比较方正,不需要在原始结构上进行过多的改造,客厅沙发朝楼梯摆放,利用楼梯扶手做电视背景墙
- ②餐桌横向摆放,形成了新的环绕动线,视觉上显得更加的宽敞。餐厅墙边设计迷你水吧台连接高柜跟冰箱柜,空间利用率更高
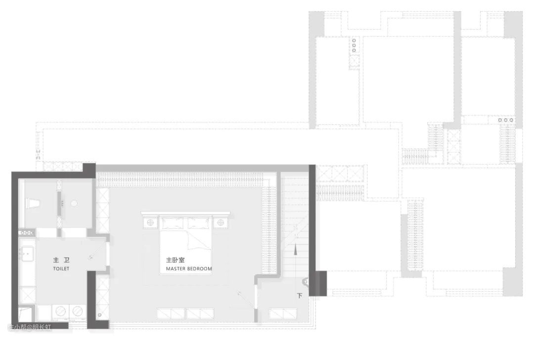
- ③利用客厅的挑高结构现浇二层,做成套房的形式,床不靠墙放,预留出柜子与过道空间后新建矮墙做床头,三边都布置了储物面积超大的衣柜,使储物空间高达30平以上,再多的东西都足以收纳
- ④ 二楼主卫生间是配备了洗衣机和烘干机,让夫妻二人能够拥有更加私密的空间
【客厅】
入门右手边就是一个顶天立地的鞋柜,鞋柜的颜色与客厅完美融合,不会显得突兀,鞋柜下方有两层悬空置物架,可以放一些当天或者次日需要穿的鞋,比较方便

客厅遵循了极简的设计原则,家具的布局均匀,视觉上不会有疲惫感
整个空间以奶白色作为主色调,地面则刷成灰色,让整个客厅多了一丝沉稳的气息

客厅的窗户选择了全落景大窗,窗帘则选择全自动的白色窗帘,阳光透进来时,照射在相对的奶黄墙面上,给整个区域增添温馨的氛围

将阳台纳入客厅后,室内活动面积更显宽敞。超大的落地窗,不仅捕获了阳光,还有穿行的轻风,流动的空气,滋养每一寸空间

电视墙依旧做的是留白处理,电线、插座都做了隐藏,视觉上更加整洁,墙面背面则是通往二楼的楼梯,有利地运用了空间

放眼望去,客厅装饰并不冗杂,去繁留简后,更突出了侘寂风经得起时间考验的美。目之所及是纯粹干净的气息,看似“无一物”实则“有一物”灯光与软装滋生出微妙的化学变化。删繁就简的风格,进一步迸发出空间的温度与质感

白色双人沙发、圆柱型茶几、黑色玻璃水果台、透明玻璃小凳子,每一个家具的设计都选得恰如其分,特别是一台超长落地灯,是整个客厅的点睛之

【餐厅】
餐厅规划在进门右手边的地方,木质方桌搭配奶咖色餐椅,视觉上轻盈又不失格调,冰箱做了隐藏式处理,嵌入在墙面里


【厨房】
厨房做的是L型布局,操作台面颜色与柜面接近,颜色虽然简单,却又高级耐看

【卧室】
卧室的颜色也和客厅呼之欲出,定制了一面顶天立地的大柜子,按压式柜门,方便又实用,不会造成拥挤感

侘寂,是一种表达事物的不完美,未完成的美。那是一种维纳斯般的神审慎和谦逊之美,也是一种随性之美,是一种不对称的美

【儿童房】
儿童房则是采用的全白色系装修,搭配粉色墙面,整屋明亮清新,有助于孩子成

【多功能间】
屋主平时有居家办公的需求,于是便规划了一间工作间
- 落地桌上方,有四层悬浮式置物台面,可放一些办公物品和装饰物
- 房间内还安置了一个沙发,靠着窗台,疲惫之时,可以休憩片刻,温馨又舒适

【卫浴】
卫生间整体以灰色为主,外观上更显整洁干净
洗衣机放在卫生间,洗完澡后可直接洗衣,一气呵成


项目地址 | 华润·悦府
建筑面积 | 207㎡
户型特点 | 三室两厅南北通透
装修风格 | 侘寂风
居住背景 | 二人世界