现代简约风|家是温暖的港湾~
名匠家装(优选店)
2022-12-08
本套案例位于长沙的明晟壹城,屋主是一对恩爱的小夫妻,还有一个非常可爱的女儿。家里的老人偶尔会过来看看孩子,短住一段时间。屋主的诉求是需要一个儿童房和衣帽间。根据屋主的需求,有了一个具体的设计方向跟风格,整屋以现代简约的风格呈现。
对于一个穿衣时尚喜欢包包的屋主而言,独立衣帽间是必不可少的存在;通过墙面柜体的打破和重组,家居线条变得清晰合理,小空间的收纳能力也大幅度提升。
家,不仅是我们休息的地方,更是我们心灵停靠的港湾~
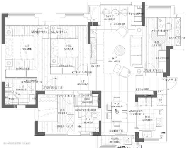
户型周正,西南角户型略缺。
坐落在长沙,户型居家性非常大,189平方的房子坐落了四室两厅一厨两卫,居家使用延伸性非常强,分布两个南北通透的大阳台,加强的客餐厅采光通风,入户匹配了一个较大的书房空间,并匹配了较好的采光搭配;一眼望去入户尽头可以看到主卧房门,房子的使用率有所减少,风水考虑的穿堂也有所欠缺,尤为影响到后期使用的隐私性;可圈可点之外,匹配的每个卧室都非常匀称,提供的非常优质的使用空间。

让我们看一看设计后的户型效果。入户互设计了一个1m的大鞋柜,将强弱电箱进行易位,储物区和收纳区的使用非常大,进入客餐厅将生活阳台规划到餐厅小阳台,客厅旁边的小房间改造为一个一个衣帽间,满足户主的一个小需求,在儿童房设置一个小书桌为小孩提供了一个学习区。次卧房门进行了调整易位,卧室不再从洗漱间进入,有效分离干区湿区。

玄关
入户的玄关采用了实木门,这点刚开始设计的时候是打算安装一个防盗门,但是屋主说防盗门太普遍了想要一个不一样的门,经过精心挑选采用了这款实木门。入户左侧的玄关柜下方采用了隔断处理,中间的背景色与门是相互呼应;进门时的物品和钥匙都可以随手放置在这里。上下两层玄关柜都是可以用来收纳的,放置一些杂物和鞋子之类的;柜下镂空设计,给家里的扫地机器人也安排了一个小小的“家”。

沙发背景墙,摒弃繁杂的墙面设计,运用纯色部分竖条纹理+同色系大理石花纹做点缀,让整个空间不会显得太单调。无主灯设计一定程度的简化了空间,取而代之的是筒灯和线条灯光的搭配照明,让空间充满简约、个性。采用2.2m*1.2m的L形沙发可坐可躺,体验感非常舒适,在装饰客厅空间优雅大气的同时提供了一个舒适轻松而大方优雅的坐席体验~

