星河传奇125m²现代风,简约高级,邻居看了都羡慕!
广东粤鼎装饰
2022-12-16
今天给大家分享的是一套125m²现代风装修案例,现代风是比较流行且最不容易过时的装修风格,它追求时尚与潮流,注重居室空间的布局与使用功能的完美结合,设计师将业主的要求与想法融入到房子的装修中,以沉稳内敛的色调,打造出温暖而舒适的空间。
案例分析| Case analysis
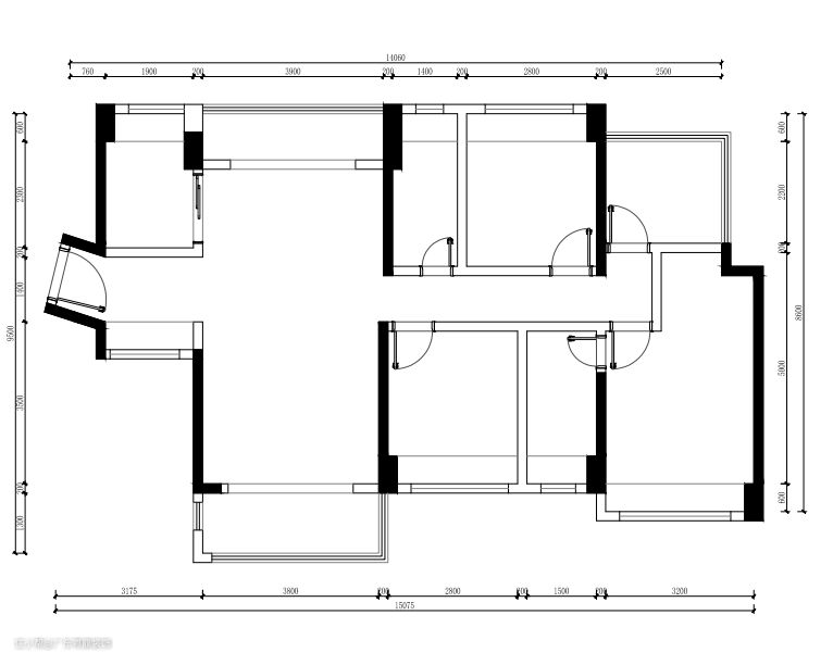
作品信息
项目地址:星河传奇
项目面积:125m²
设计风格:现代风
设计施工:粤鼎装饰
设计师:华老师


01
玄关
进到家门的第一眼便是玄关,玄关又称门厅,堪称家的门面担当,设计师在简约风中融入材质、色彩、造型的变化,使空间的内涵更加丰富,展现出高级宁静的格调。

02
厨房
厨房作为一日三餐主阵地,承载着一个家庭对于幸福生活的想象,厨房位于玄关侧面,是一个开放式厨房,墙面贴有白色的瓷砖,整体的感觉结合灯光,使得整个空间采光都非常光亮,而且空间也显得宽敞很多。

03
客厅
客厅和餐厅是一体化设计,将客厅两用,不仅节约空间,而且让两大功能区在视觉上看上去面积更大,也相当于拉伸了客厅的维度。

客厅空间整体以现代风的基调,加入筒灯与两道黑白相间的线条,使得整个空间更加时尚和高级。沙发墙采用的木饰面板作为背景,布置亮色皮沙发,结合圆形双拼茶几,显得充满高级时尚。

04
餐厅
餐厅的设计风格与客厅的设计风格保持一致,整体布局高级时尚、宽敞明亮。餐桌的旁边做了一个餐边柜,不仅功能丰富,在整个餐厅的装饰上也是让人眼前一亮。

05
影音室
影音室是一个休闲的空间,平时亲戚朋友聚会,可以看电影还是K歌,都能让人彻底的放松和愉悦身心。

06
主卧
整个卧室的装修以浅色系为主,融合现代风的温情,打造简单且精致,时尚又舒适的卧室居住空间。 卧室落地窗的设计,大大增强了采光。

07
次卧
次卧延续风格简洁,功能实用的布局原则,浅色的空间基调下,木质家具、原木地板为睡眠空间注入了一丝静谧。

08
客卫
客卫采用干湿分离,将洗漱区外置,同时考虑潮湿区的日常打扫,最大化使各角落视线可见。

设计团队
