现代极简风,客餐厨一体设计,90平的家舒适大方
华浔品味装饰集团
2023-01-06
业主是一对90后夫妻,新家虽然空间不是很大,但充满期待,因为这是属于他们自己的第一套房子。业主是三口之家,育有一个可爱的儿子,平时没有与长辈同住,所以可以对空间布局进行重新规划,提高居住品质。
业主比较倾向黑白灰的色调,然后希望设计师对空间布局进行优化,尽量提高空间的实用性,打破现有布局的局促感。另外就是房子比较小,需要有足够的收纳空间,不然东西凌乱起来,房子会显得更加拥挤。
设计师根据需求与喜好将本案定义为现代极简风格,优化空间细节,营造小巧、时尚、温馨的家居空间。

基本信息
建筑面积:90平
设计风格:现代极简
所在城市:广西柳州
设计师:杨柳郡
原建图

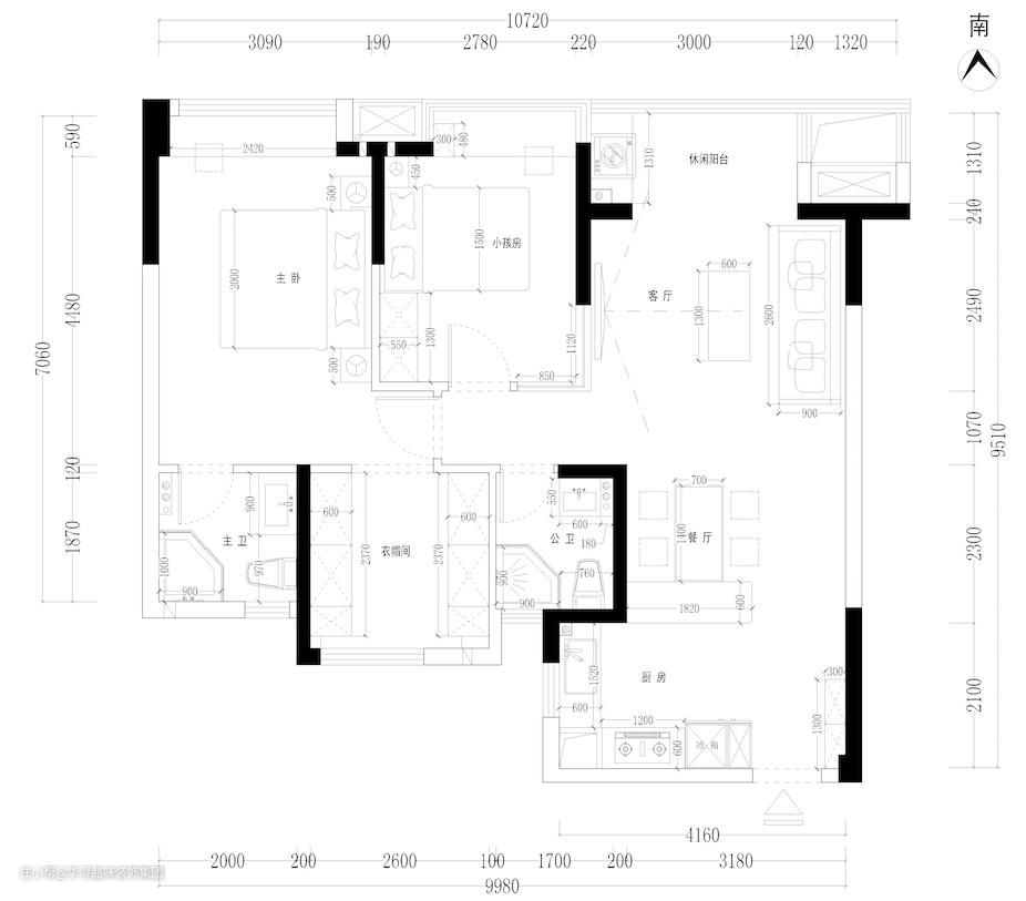
平面布置图

设计说明:
1. 入户左侧是厨房,正前方是餐厅和客厅,且客餐厅偏小,整体空间结构给人感觉狭小拥挤。设计师将厨房的墙体拆除,打造成一个大通间的效果,开放式的厨房、餐厅、客厅让空间显得更加宽敞。厨房与餐厅之间设计师还靠墙做了一个吧台桌,既可以储物,又将两个功能区进行了合理划分,同时还增贴了空间结构的趣味性。
2. 考虑到客厅空间有限,不适合做门厅,所以设计师在入户右侧的墙面做了一组壁柜,满足日常换鞋、放鞋的基本需求。
3. 业主是三口之家,有两间卧室即可,所以设计师将另一间卧室与主卧打通,同时改变门的朝向,做成了主卧内的衣帽间,宽敞的卧室空间大大提升了业主的生活品质。
4. 小孩还是学龄阶段,所以设计师利用卧室的飘窗做了一组定制书桌柜,为小朋友打造了一间集休息和学习于一体的独立空间。
入户

入户即客餐厅,设计师将整个空间打通做成一体式开放式的布局后非常时尚。为了提升空间的实用性,设计师在靠墙一侧做了一组底部悬空式的浅咖色烤漆面板壁柜,上层可以储物、下层可以放鞋,实用。

灰色的展格上摆放着时尚的工艺品、书、还有一个极具个性的纸巾盒,超级前卫时尚。
客厅
客厅的墙面选择了灰色的壁布,一张蓝灰色的时尚装饰画让空间多了几分艺术感。棕色的皮质沙发、黑色的皮质方凳,再加上各种可爱又清新的布艺抱枕,简单的布置却很时尚。

为了让客厅显得更加宽敞,设计师将阳台做了入户式处理,墙角摆放上各种大棵绿植盆景,非常温馨。

设计师大胆的将儿童房的部分墙体拆除改成黑色透明玻璃墙,玻璃墙后摆放上大棵的绿植盆景,丰富视觉享受,同时还让空间显得更加宽敞。
餐厅

厨房做了一体式定制橱柜,设计师在开放式的厨房与餐厅之间布置了吧台柜将空间进行区分。吧台旁边的餐桌搭配透明的和黑色的餐椅,空间合理实用。
主卧

卡其色的壁布、浅色的原木地板、白色的简约吊顶、棕色的皮质大床还有棕色的高脚床头柜,简约时尚又温馨。一盏简单又别致的银色落地灯靠墙摆着,刚好可以作为床头灯,别有一种质感。

遵循业主意见,主卧的飘窗改成了一个书桌,既能办公又能储物,非常实用。
儿童房

儿童房的墙面选择了同主卧一致的卡其色壁布,简单又温馨。因为没有独立的书房,所以设计师将原有的飘窗改造成了书桌,墙面还做了一体式的书柜,棕色的桌面搭配白色的抽屉柜,轻盈好看。

墙角的墙体改成黑色透明玻璃墙后,让空间结构多了一分趣味性。
卫生间

卡其色的地板砖上墙搭配灰色的洗漱台,滚筒洗衣机嵌入洗漱台下方,既节省空间又让空间显得更加整洁大方。