160平现代极简风,全开放式的大平层设计,舒适感拉满
华浔品味装饰集团
2023-01-11
业主不是本地人,因为不喜欢朝九晚六的上班族生活,所以辞职后来到广西南宁经营着一家民宿,这些年也积攒了一点积蓄,所以买下这套房子打算把家人接过来一起生活。
业主不论是空间结构还是颜色,都不喜欢太繁杂,喜欢简单大方的风格。颜色上希望有点烟火气,比较倾向于偏暖的色调。另外就是空间结构上,要体现出大户型的气派与沉稳,公共区域要尽可能的宽敞通透。
设计师结合大家的喜好和户型特点将本案定义为现代简约风,公共区域采用大平层的开放式设计,营造简单又时尚的家居空间。

基本信息
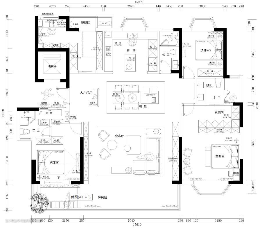
建筑面积:160平米
设计风格:现代简约风
户型:四室两厅三卫两阳台
所在城市:广西南宁
项目名称:大唐臻观
原建图

平面布置图

设计说明:
1. 入户直对餐厅区域,设计师在大门与餐厅之间设计屏风,起到遮的作用,提高室内生活的私密性。
2. 厨房是实用的U型开放设计,更宽敞与实用。
3. 客厅阳台入户处理,同时与卧室阳台打通,改造成休闲区,为居者创造更宽敞舒适的公共休闲空间。
4. 结合实际居者人口情况,设计师将小卧室改造成多功能房间,并且沿墙面做了一整面的壁柜,丰富收纳空间。平时如果有客人到访留宿,还可以将折叠沙发床打开,秒变客房。
玄关

两侧是花白色大理石石柱,中间用透明磨砂玻璃,同时还用棕色的岩板面做了一圈置物台,从地面直接延伸至天花板的固定屏风的设计,简单大气。
餐厅

屏风未做全遮挡,做到“行而通”,让几个功能区有机结合,空间开阔敞亮。
吧台搭配悬浮式餐桌的新颖,原木面板与地板相呼应,又凸显了白色吧台的时尚大气。
厨房

厨房与餐厅相连,U型厨房的设计,中间再用一个吧台桌进行点缀,空间显得既通透又有层次。
客厅

无主灯吊顶的设计,拉高了层高的视觉效果,空间显得更加的宽敞。
沙发背景墙做了一组壁柜,四周选用的米白色面板,中间则是内陷式的灰色展架,一深一浅,一平一凹,层次感非常强,做到美观实用。
一张灰色的布艺大沙发居中摆放在宽敞通透的客厅里,让人感觉非常放松。

电视背景墙与沙发背景墙相呼应,相同的材质相同的颜色,只是内陷式的展架改成了两侧对称式,简单大气。
休闲区

两个阳台打通后,公共区域的空间更加丰富了。次卧的阳台选择了下层式的设计,既是储物柜,又是坐凳,可以带着小孩在这里玩耍,非常有意思。而且这么多的储物柜,超能装,小孩的玩具也能进行统一收纳。
儿童房

儿童房紧邻休闲阳台,充足的阳光、宽敞的空间,推开门就是自己的玩乐小天地。
卧室

主卧选择了灰色调,浅灰色的护墙板、浅灰色的壁柜、深灰色的皮质大床,不同色度的搭配既有层次感又显时尚。
一体式定制设计,包含了衣柜、床头柜,既节省空间又非常实用。中间镂空层加入了磁性灯带的设计,到时可以摆放一些艺术照或者工艺小摆件,都非常的温馨。